5-к, Новочеремушкинская, 71/32 Показать на карте
Москва
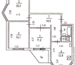
Предлагается к продаже 5-комнатная квартира в престижном жилом комплексе ''Дом Газпрома'' с огороженной территорией и круглосуточной охраной.Функциональная планировка:- все комнаты изолированные- 3 санузла- 2 гардеробные- отдельная постирочная- 2 лоджии- просторный холлКвартира требует ремонта, что является отличной возможностью реализовать индивидуальный дизайн-проект и создать интерьер полностью под себя.Высокие потолки, хорошая инсоляция и панорамные виды добавляют ощущение пространства и комфорта.Дом с презентабельной входной группой и подземным паркингом Номер в базе: J27280
245 м2
8 / 21 этаж
- Показать контакты
- Добавить в избранное
245 м2
8 / 21 этаж
85 000 000
346 656 /м2
