3-к, Южнобутовская, 69 Показать на карте
Бунинская аллея, 10 мин
Москва
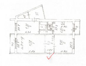
Свободная продажа от собственника (один взрослый), в квартире никто не прописан (и никогда не был), основание ДДУ 2000, полная сумма в договоре. В квартире произведен функциональный ремонт с привлечением дизайнерских ресурсов и профессиональных отделочников, в процессе отделки использовались дорогие импортные материалы и комплектующие, в процессе проживания постоянно производились освежающие косметические и специальные работы по поддержанию на высоком уровне состояния жилья и коммуникаций, на полу керамика и штучный дубовый паркет, подогрев в прихожей, обоих СУ, на кухне и в рабочей зоне в детской. На этаже всего три квартиры, в блоке две. Квартира состоит из прихожей, изолированных детской комнаты (в ней организовано рабочее место на площади одной из лоджий, на фото видно) и спальни (с просторной лоджией, гардеробной, кондиционером), зал-гостинная проходная, два СУ (основной и вспомогательный), кабинет без окна, при желании можно организовать еще одну гардеробную, изолированной кухни (см.план). Квартира полностью обставлена мебелью и оборудована всей эл.быт.техникой, при желании все остается в дар покупателю, а если это не нужно - все или часть (по согласованию) увезем, прошу учесть, наличие или отсутствие в продаваемой квартире мебели и техники не является предметом торга, продаем именно квартиру, пустую или обставленную - нам не критично. Дом монолитно-кирпичный, ЖК представляет собой каре жилых домов с закрытой общедомовой территорией, детскими, спортивными площадками, парковкой (квартире принадлежит одно персональное машиноместо, при желании легко можно оформить еще одно). Инфраструктура района давно и отлично развита, есть все под любую потребность, вкус и кошелек, экология достойная, транспортная доступность в плане общественного и личного транспорта великолепная. Милости просим на просмотры в любое удобное для Вас время по предварительному согласованию. ВСЕ формы покупки возможны и обговариваются.
118 м2
6 / 9 этаж
Кирпич
- Показать контакты
- Добавить в избранное
118 м2
6 / 9 этаж
Кирпич
34 700 000
294 068 /м2
