3-к, Красного Маяка, 11 корп. 3 Показать на карте
Пражская, 14 мин
Москва
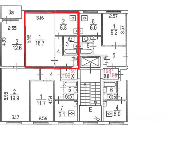
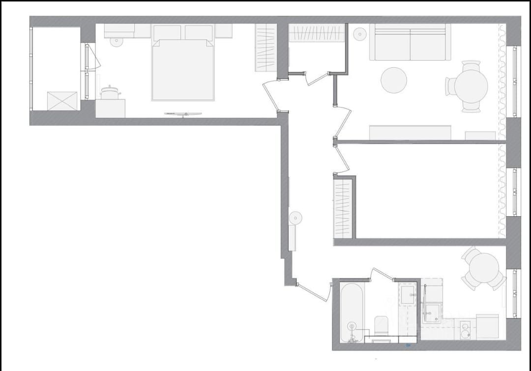
Продается уютная 3-комнатная квартира в районе метро ''Пражская''. Общая площадь составляет 62 кв. м, расположена на 8 этаже 9-этажного дома, построенного в 1971 году. Высота потолков — 2,64 метра. В пешей доступности от станции метро — всего 16 минут.Квартира с дизайнерским ремонтом, в квартире после ремонта никто не жил. Произведена замена всех труб в сантех шкафу (канализация, труба горячей воды и холодной воды) установлены счетчики, разводка в гребенке - трубы марки REHAU. Установлен проточный водонагреватель, что позволяет пользоваться горячей водой во время летнего отключения. Обстановка создает современную и стильную атмосферу. Вся мебель и техника остаётся новым жильцам. Просторные комнаты и функциональная планировка позволяют использовать пространство максимально эффективно. все комнаты изолированные, есть гардеробная, кухня площадью 6,5 кв. м оборудована всем необходимым (холодильник Индезит, посудомоечная машина, фильтры для питьевой воды, вытяжка и духовка. В квартире есть один отдельный санузел, со стиральной машинкой с сушкой. Для вашего комфорта предусмотрены подогрев пола на балконе и ванной комнате, Со всех окон можно наслаждаться шикарными видами, район утопает в зелени. Дом в хорошем состоянии, после ремонта, с наземной парковкой и пассажирским лифтом. Мусоропровод позволяет поддерживать чистоту и порядок. В районе развита инфраструктура: рядом находятся школы, детские сады и магазины, ТЦ Коламбус, в соседнем доме Пятёрочка и пункт Вайлдберриз, это делает это место удобным для семейной жизни. также рядом с домом прекрасная площадка для отдыха с альпийскими горками, качелями, и столиками для игры в шахматы, а также прекрасный променад. Условия сделки: продажа квартиры без обременений и задолженностей. Полная сумма в ДКП. Возможна ипотека. Все документы готовы к сделке, что позволяет быстро и без проблем оформить покупку.Приглашаем вас на просмотр! Звоните и записывайтесь на удобное время, чтобы оценить все преимущества этой замечательной квартиры. Риэлторам рады с реальными покупателями.
62 м2
8 / 9 этаж
- Показать контакты
- Добавить в избранное
62 м2
8 / 9 этаж
24 000 000
387 097 /м2
