3-к, Новокосинская, 14 корп. 4 Показать на карте
Новокосино, 11 мин
Москва
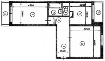
Прекрасный район для жизни, все рядом. Транспортная доступность, до метро 800 метров, не загруженная ветка. Район современный, новые школы и детские садики. ТЦ, фитнес, спортивные комплексы, магазины. Все в шаговой доступности. Во дворе много парковочных мест. В подъезде чисто и без запахов. Лифты новые. Дом во дворе, зеленый. Самая удачная планировка. Все комнаты изолированные, с/у раздельный, три лоджии. Все застеклены, одна большая утеплена, используется для хранения вещей. Кухня пропорциональная, кухонный гарнитур. Ремонт делали давно. Три взрослых собственника, легкая альтернатива, оперативный просмотр. Есть задолженность по коммуналке. Есть обременение по квартире ( задолженность по кредиту).
73 м2
8 / 17 этаж
Панель
- Показать контакты
- Добавить в избранное
73 м2
8 / 17 этаж
Панель
20 500 000
279 673 /м2
