Торговые площади
Павелецкий 3-й проезд, 3 Показать на карте
Павелецкий 3-й проезд, 3 Показать на карте
Москва
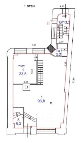
Лот 158874.Предлагается к покупке торговое помещение с арендатором, в ЖК бизнес класса ''Резиденция композиторов'', по адресу: Москва, ЮАО, р-н Даниловский, 3-й Павелецкий проезд, 3ЖК ''Резиденции композиторов'' это клубный квартал бизнес-класса, расположенный в историческом месте Даниловского района Москвы. Жилой комплекс с панорамными видами на Павелецкую набережную. Общая площадь комплекса: 133 510 кв.м. Наземная часть: 94 050 кв.м. Количество постоянного населения: более 2 500 чел. Жилой комплекс расположен в 4 минутах езды от Третьеготранспортного кольца и всего в 15 минутах от Манежной площади. Рядом расположены 2 Бизнес центра, общей площадью 25 000 кв.мБлижайшая станция метро Тульская - 15 минут пешком, Павелецкая - 7 минут транспортомТехнические характеристики:1 этаж. Площадь - 363.4 кв.м. 3 отдельных входа. Зальная планировка. Вытяжка под общепит. Витринное остекление. Размещение вывески на фасаде. Можно разделить на блоки. Паркинг напротив фасада. Рядом остановка общественного транспорта. Электрическая мощность: 100 кВт. Высота потолков: 4 м.Коммерческие условия:Стоимость: 218 040 000 рублей. Стоимость за кв.м: 700 000 рублей.
363 м2
- Показать контакты
- Добавить в избранное
363 м2
254 380 000
700 000 /м2
