Офисное помещение
Ямского Поля 3-я, 32 Показать на карте
Ямского Поля 3-я, 32 Показать на карте
Москва
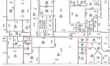
Аренда офиса 750 кв. м в бизнес-центре ''3-я улица Ямского Поля, 32'' (класс B+).Этаж: 7-8.Отделка - с отделкой . Идет ремонт заезд 01.07.26Тип планировки - кабинетная.Вход - общий со двораМокрые точки - даСан. узлы - на этажеНазначение: ОфисПолная ставка аренды - 36 600 руб. за кв. м/год. НДС включен, эксплуатация включенаКоммунальные расходы - Не ВключеныБизнес-центр ''3-я улица Ямского Поля, 32'' находится по адресу: Москва, 3-я улица Ямского Поля, 32.Год постройки здания: 2004Наличие паркинга: подземный, стоимость 14 000 руб. месяц (1 м/м)Вентиляция: Приточно-вытяжнаяБлижайшие станции метро: Белорусская (12 минут пешком)Юридический адрес: предоставляетсяПозвоните и мы ответим на все Ваши вопросы, направим презентацию с планировками и оперативно организуем показ. Наши услуги для Вас бесплатны!Для быстрого поиска объекта в СРМ назовите менеджеру ID данного помещения - 2112
750 м2
- Показать контакты
- Добавить в избранное
750 м2
2 135 003 /мес.
2 847 /м2
