Офисное помещение
Подкопаевский переулок, 4 Показать на карте
Подкопаевский переулок, 4 Показать на карте
Москва
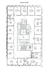
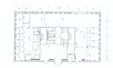
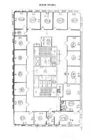
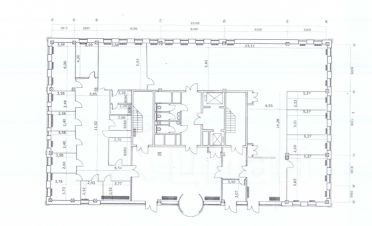
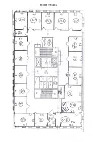
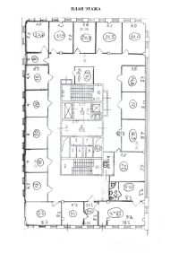
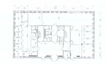
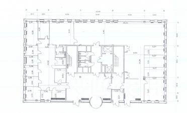
Экономьте время и деньги: отрисуем планировку под вас бесплатно, с любым количеством правок. Предлагаем в аренду Офис в бизнес-центре ''Ивановская горка'' по адресу: Москва, Подкопаевский переулок, 4.Рабочих мест: от 135 до 238*.Площадь: 1 075 м2.Планировка: смешанная.Состояние: готово к въезду.Ставка (включая эксплуатацию): 87 500 руб. за м2/год.Арендная плата: 7 838 542 руб./мес.Налог: включая НДС.Коммунальные расходы: оплачиваются по факту.Этаж: 1, 2 из 5.Тип аренды: Прямая аренда.Охрана: круглосуточная охрана здания.Метро рядом: м. Китай-город в 5 минутах пешком, м. Лубянка в 14 минутах пешком, м. Чкаловская в 15 минутах пешком. Этот адрес обслуживает налоговая 9. Парковка подземная.Системы здания:Вентиляция: приточно-вытяжная.Кондиционирование: центральное.Пожарная сигнализация: спринклерная система.Этот лот состоит из нескольких помещений: 217 кв. м., 212 кв. м. и 646 кв. м.>ID объекта - 029739.*Количество рабочих мест рассчитано автоматически: от 4,5 м2 на человека до 8 м2 на человека.Почему клиенты доверяют нам?1. 12000 объектов коммерческой недвижимости Москвы и Области, включая эксклюзивные и внерыночные.2. Работаем без комиссии и скрытых платежей. Вы заключаете договор напрямую с собственником.3. Профессиональное сопровождение: консультации на каждом этапе, помощь в подборе оптимального решения для вашего бизнеса.4. 17 лет опыта в коммерческой недвижимости.Не тратьте время, доверьте поиски нам! Позвоните, и мы оперативно организуем просмотр или подготовим подборку объектов.
1075 м2
- Показать контакты
- Добавить в избранное
1075 м2
7 838 542 /мес.
7 291 /м2
