Офисное помещение
Подкопаевский переулок, 4 Показать на карте
Подкопаевский переулок, 4 Показать на карте
Москва
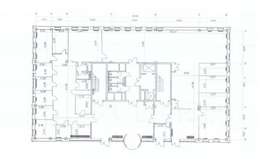
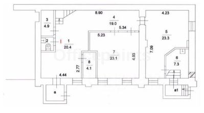
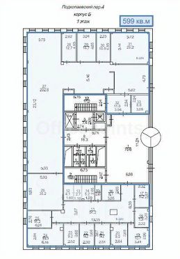
Сдается в аренду офисное помещение на 1 этаже в БЦ Ивановская Горка, А класса, который находится по адресу: Подкопаевский пер., д. 4. Без комиссии для Арендатора!ЛОКАЦИЯ:- Пешая доступность от станций метро Китай-город, Лубянка, Площадь Революции. - Удобный выезд на Садовое Кольцо.ПОМЕЩЕНИЕ:- В помещении выполнена высококачественная отделка, смешанная планировка.- Центральная система кондиционирования и приточно-вытяжная система вентиляции. - В наличии подземная парковка (36 000 руб. за м/место в месяц).- Арендные каникулы и ставка подлежат обсуждению.Звоните, отвечаем по будням с 09:00 до 18:00, а в другое время передадим Ваш контакт нашему менеджеру!
387 м2
- Показать контакты
- Добавить в избранное
387 м2
2 741 250 /мес.
7 083 /м2
