Офисное помещение
Новинский бульвар, 31 Показать на карте
Новинский бульвар, 31 Показать на карте
Москва
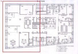
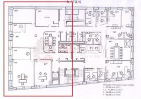
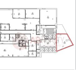
Сдается в аренду офисное помещение на 4 этаже в БЦ ВЭБ Центр, А класса, который находится по адресу: Новинский бульвар, д. 31.Пешая доступность от станций метро Баррикадная, Краснопресненская, Смоленская. Удобный выезд на ул. Красная Пресня, Садовое Кольцо и ТТК.В помещении выполнена стандартная офисная отделка, смешанная планировка. Центральная система кондиционирования и приточно-вытяжная система вентиляции. В наличии наземная парковка.Арендные каникулы и ставка подлежат обсуждению.
567 м2
- Показать контакты
- Добавить в избранное
567 м2
2 212 704 /мес.
3 902 /м2
