Офисное помещение
Наметкина, 12а Показать на карте
Наметкина, 12а Показать на карте
Москва
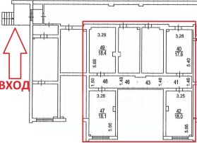
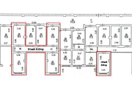
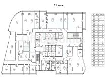
Сдается в аренду офисное помещение на 7 этаже в бизнес-центре Газойл Плаза, А класса, который расположен по адресу: ул. Намёткина, д. 12А. Без комиссии для Арендатора!ЛОКАЦИЯ: Пешая доступность от станций метро Новые Черемушки, Калужская, Воронцовская. Удобный выезд на ул. Профсоюзная, Обручева и Ленинский проспект.ПОМЕЩЕНИЕ: В помещении выполнена отделка, смешанная планировка. Приточно-вытяжная система вентиляции, центральное кондиционирование. В наличии подземный и наземный паркинги (18 000 и 15 000 руб. c НДС в месяц соответственно). Арендные каникулы и ставка подлежат обсуждению.Звоните, отвечаем по будням с 09:00 до 18:00, а в другое время передадим Ваш контакт нашему менеджеру!
1312 м2
- Показать контакты
- Добавить в избранное
1312 м2
3 828 795 /мес.
2 916 /м2
