Офисное помещение
Кисельный Нижн. переулок, 5/23 ст1 Показать на карте
Кисельный Нижн. переулок, 5/23 ст1 Показать на карте
Трубная, 5 мин
Москва
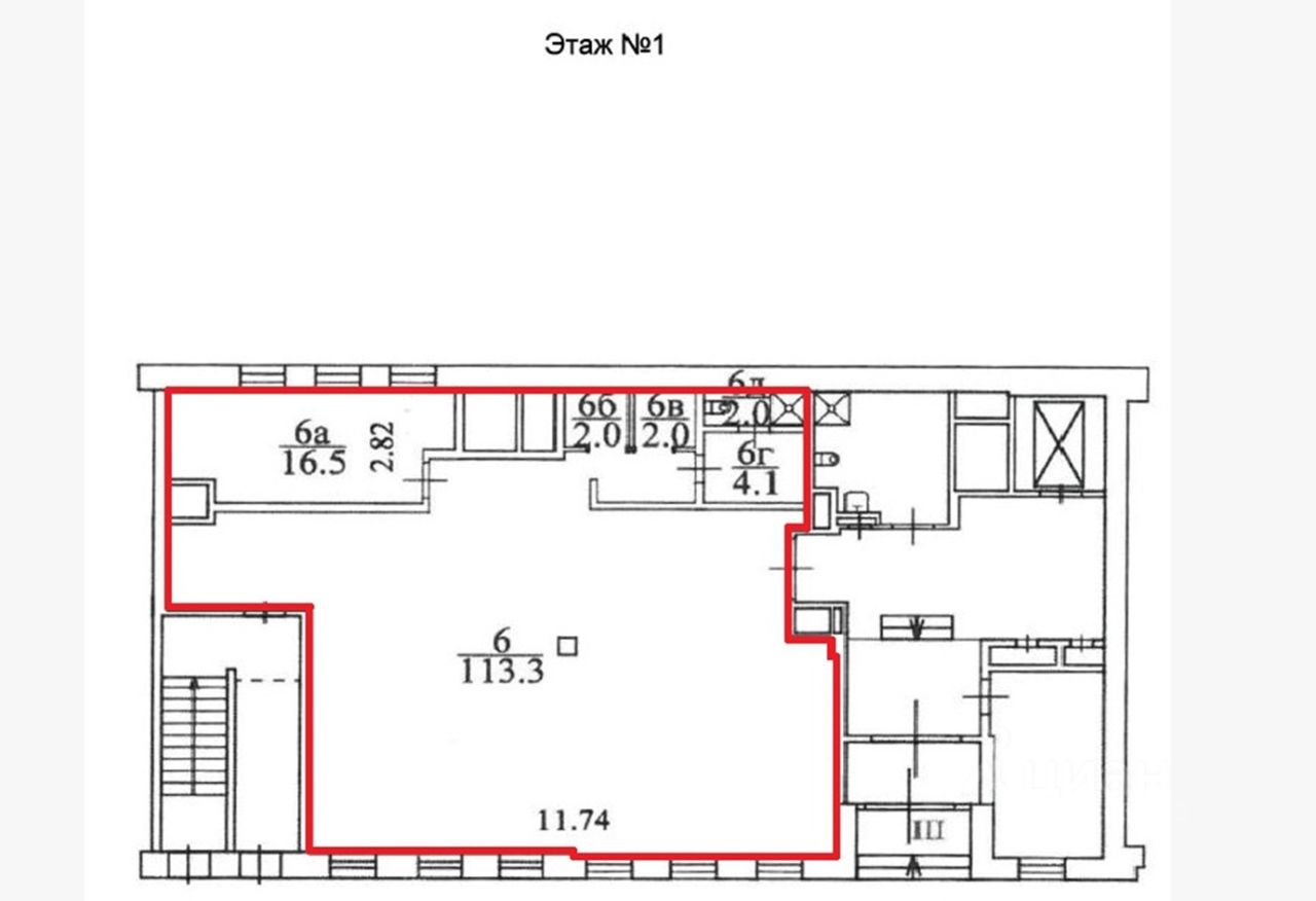
Предлагается офисный блок c отдельным входом на 1 этаже 9 кабинетов, кухня, сан/узлы, душевая . УСН 5 % входят в стоимость . Стандартная офисная отделка. Есть охрана. УСН, ВКЛЮЧЕНО все эксплуатационные расходы все коммунальные платежи, отдельно оплачивается интернет и клининг. В месяц 575 тыс. руб. 5 минут пешком от метро Цветной бульвар.
230 м2
- Показать контакты
- Добавить в избранное
230 м2
575 000 /мес.
2 500 /м2
