Офисное помещение
Пресненская набережная, 6 ст2 Показать на карте
Пресненская набережная, 6 ст2 Показать на карте
Москва
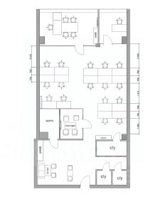
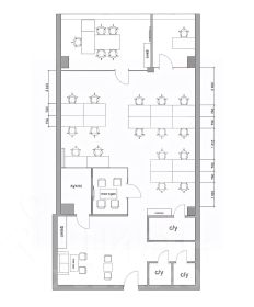
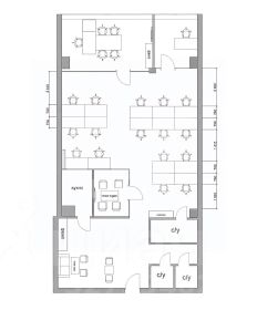
Продаём Офис в бизнес-центре ''Башня Империя'' по адресу: Москва, Пресненская набережная, 6с2. Рабочих мест: от 83 до 147*.Площадь: 663 м2.Планировка: смешанная.Состояние: готово к въезду.Цена за м2: 900 000 руб.Стоимость: 596 700 000 руб.Налог: УСН.Собственник: физ. лицо.Этаж: 47, 48 из 59.Охрана: круглосуточная охрана здания.Метро рядом: м. Москва-Сити в 2 минутах пешком, м. Деловой центр в 2 минутах пешком. Этот адрес обслуживает налоговая 3. Парковка наземная, подземная.Системы здания:Вентиляция: приточно-вытяжная.Кондиционирование: центральное.Пожарная сигнализация: спринклерная система.Этот лот состоит из нескольких помещений: 226 кв. м. и 437 кв. м.>ID объекта - 035686. Объявление актуально. Пришлём презентацию объекта и альтернатив (5-10 шт.).*Количество рабочих мест рассчитано автоматически: от 4,5 м2 на человека до 8 м2 на человека.Почему клиенты доверяют нам?1. 12000 объектов коммерческой недвижимости Москвы и Области, включая эксклюзивные и внерыночные.2. Работаем без комиссии и скрытых платежей. Вы заключаете договор напрямую с собственником.3. Профессиональное сопровождение: консультации на каждом этапе, помощь в подборе оптимального решения для вашего бизнеса.4. 17 лет опыта в коммерческой недвижимости.Не тратьте время, доверьте поиски нам! Позвоните, и мы оперативно организуем просмотр или подготовим подборку объектов.
663 м2
- Показать контакты
- Добавить в избранное
663 м2
596 700 000
900 000 /м2
