3-к, Ясеневая, 1 корп. 1 Показать на карте
Москва
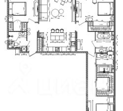
Стильный пентхаус 182м2 с премиальным наполнением, удобным зонированием пространства и выходом на террасу 118м2 в комплексе бизнес-класса Дубровка.Продуманная планировка разделяет пространство на общее и личное. Местом притяжения для всей семьи станет просторная кухня-гостиная 55м2 с удобным зонированием пространства : кухня столовая, кухня гостиная с домашним кинотеатром. В пентхаусе предусмотрена лестница для выхода на террасу 118м2. Есть проектная документация для постройки жилой квартиры 90м2 на террасе, что делает пентхаус уникальным. В пентхаусе удачно расположились: мастер-спальня, детская комната, две гардеробные, постирочная и ванна. Панорамное остекление в сочетании с высокими потолками 3,19 метра, наполняют все пространство естественным светом.В пентхаусе выполнена дизайнерская отделка с использованием премиальных материалов и качественного наполнения. В кухне-гостиной стены и пол выполнены из мрамора, столешница из Бразильского кварцита Roma Imperiale, Техника Neff, кожаный диван Kler с электроприводом, колонки WHARFEDALE из натурального шпона, кондиционеры Haier, розетки и выключатели Berker из нержавеющей стали, двери с итальянской фурнитурой. Спальня из массива дуба, прикроватные тумбы с мрамором, приятный фисташковый окрас стен - американская краска Richards. Роскошная ванная из литьевого марамора Salini, теплый пол, сантехника Hansgrohe, стены из мрамора, индивидуальный тепловой узел с возможностью регулировать отопление и горячую воду самостоятельно, без отключения городом.Продуманный пентхаус в комплексе бизнес-класса Дубровка, расположен в окружении парков и рек с оборудованными местами для отдыха у воды и прудом для рыбалки. Отличный современный, экологически чистый район Новой Москвы с развитой инфраструктурой и в шаговой доступности от станции метро Ольховая. Комплекс построен по стандартам европейского уровня комфорта и включает круглосуточную охрану, подземный паркинг, фитнес-центр с бассейном, магазины, кафе, рестораны, школу и детский сад. Большое разнообразие рекреационных зон. Идеальное место для тех, кто ценит тишину и комфорт и не хочет жертвовать доступностью городской жизни.Звоните, с радостью отвечу на все вопросы и покажу пентхаус, который точно стоит увидеть вживую.
182 м2
8 / 8 этаж
Монолит
- Показать контакты
- Добавить в избранное
182 м2
8 / 8 этаж
Монолит
54 990 000
302 143 /м2
