2-к, Парковая 13-я, 34 корп. 2 Показать на карте
Щелковская, 12 мин
Москва
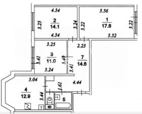
Свободная продажа видовой двухкомнатной квартиры в Северном Измайлово на 13 Парковой 34к2. Квартира в хорошем состоянии чистая, светлая, аккуратная. Ремонт косметический. Функциональная планировка: комнаты изолированные, СУР, удобная прихожая со встроенными шкафами, уютная кухня, застеклённый балкон. На полу паркет. Двухкамерные стеклопакеты, биметаллические радиаторы отопления. Из окон квартиры открывается шикарный вид на юго-запад городского массива.Блочный дом типовой серии II-18/12 1966 года постройки после капитального ремонта с заменой всех центральных коммуникаций. 2 пассажирских лифта. Мусоропровод. В подъезде идеально чисто без посторонних запахов. Своя управляющая компания. Благоустроенная придомовая территория с детской площадкой и вместительной парковкой. Дом расположен в глубине массива в стороне от пыли и шума очень тихо и уютно. 12-этажка утопает в зелени прилегающего тенистого сквера.Развитая социально-бытовая инфраструктура старого обжитого района Северное Измайлово всё необходимое для комфортной полноценной жизни буквально под рукой. В непосредственной близости находится детский садик 2200 и общеобразовательная школа 2033, а также главная рекреационная зона локации лесопарк Измайлово. Отличная транспортная доступность всего 10 минут пешком до станции метро Щёлковская.1 взрослый собственник. Основание права наследство по закону от матери к дочери более 3-х лет. Без ограничений и какого-либо обременения. Без перепланировок. Полная стоимость в ДКП. Рассмотрим ипотеку любого банка. К сделке готовы! Для предварительного ознакомления к объявлению прикреплён видеоролик (пожалуйста, внимательно смотрите в режиме онлайн). Показы вживую по записи и договорённости.
41 м2
11 / 12 этаж
Бетонные блоки
- Показать контакты
- Добавить в избранное
41 м2
11 / 12 этаж
Бетонные блоки
13 500 000
329 268 /м2
