3-к, Мира проспект, 74 ст1 Показать на карте
Москва
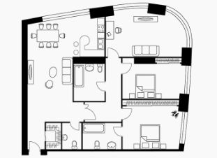
Продается просторная трехкомнатная квартира в кирпичном доме на седьмом этаже из девяти. Общая площадь составляет 107.8 кв. м, жилая — 67.6 кв. м, комнаты 17.2+19.4+31, а кухня радует площадью 14.9 кв. м. Высокие потолки в 3.3 метра добавляют ощущение простора и света. Дом расположен всего в четырех минутах пешком от метро ''Рижская''.В квартире выполнен качественный евроремонт. Интерьер стильный и современный, с продуманной планировкой, что позволяет комфортно разместить мебель и технику. Просторная кухня станет отличным местом для семейных обедов и встреч с друзьями. Санузел совмещенный, что удобно и практично. Окна выходят как на улицу, так и во двор, что обеспечивает хорошую инсоляцию. В квартире имеется чёрный ход, который является изюминкой квартиры. Дом 1958 года постройки, кирпичный, с двумя пассажирскими лифтами. Наземная парковка позволяет без труда найти место для автомобиля. Жильцы заботятся о чистоте и порядке, поэтому состояние подъезда и прилегающей территории на высоте.Район с развитой инфраструктурой: в шаговой доступности школы, детские сады, клиники и разнообразные магазины. Все необходимое для комфортной жизни находится рядом, поэтому можно сэкономить время на поездках. Отличная транспортная доступность, что позволяет быстро добраться до центра города как на общественном транспорте, так и на автомобиле.Документы готовы к сделке. Возможна покупка в ипотеку. Юридическая чистота сделки гарантировано. Простая сделка по полной стоимости. Звоните и записывайтесь на просмотр! Это предложение ограничено, не упустите шанс приобрести отличную квартиру в удобном районе.
107 м2
7 / 9 этаж
Кирпич
- Показать контакты
- Добавить в избранное
107 м2
7 / 9 этаж
Кирпич
44 000 000
408 163 /м2
