3-к, Менжинского, 23 корп. 1 Показать на карте
Москва
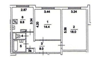
Продается просторная трехкомнатная квартира в Москве на улице Менжинского, 23к1. Общая площадь — 79 кв. м, жилая — 41 кв. м, кухня — 9 кв. м. Квартира расположена на 10 этаже 14-этажного дома. До станции метро ''Бабушкинская'' всего 3 минуты пешком, что очень удобно для ежедневных поездок.Квартира в хорошем состоянии, заменена электрика, батареи, установлены стеклопакеты, сделан косметический ремонт. Самая лучшая планировка, окна на две стороны. Две лоджии с выходом из комнат и один балкон на кухне, возможность увеличения кухни до 12 кв.м.В наличии отдельный санузел, кладовка, окно в коридоре.Дом находится в хорошем состоянии: есть пассажирский и грузовой лифты, мусоропровод, чистый ухоженный подъезд. Наземная парковка позволяет без труда найти место для вашего автомобиля. Инфраструктура района включает все необходимое для комфортной жизни: рядом расположены школы, детские сады, клиники и магазины.Квартира без обременений и готова к быстрому выходу на сделку. СВОБОДНАЯ продажа, 1 собственник, более 5 лет, полная стоимость в договоре. Никто не прописан. Возможна ипотека.Приглашаем вас на просмотр этой уютной и светлой квартиры. Записывайтесь на удобное для вас время и оцените все ее преимущества лично!
79 м2
10 / 14 этаж
Панель
- Показать контакты
- Добавить в избранное
79 м2
10 / 14 этаж
Панель
24 600 000
311 392 /м2
