1-к, Люблинская, 74 корп. 1 Показать на карте
Братиславская, 13 мин
Москва
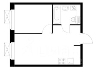
Продаётся 1-комн. квартира площадью 39,2 кв.м на 3 этаже 25 этажного дома (Корпус 12, Секция 5) проекта ПИК Люблинский парк. Светлый просторный подъезд на уровне земли, функциональная планировка, большие окна, c отделкой. Жилой квартал ''Люблинский парк'' расположен на юго-востоке Москвы, в шаговой доступности от станции ''Братиславская''. На метро до центра ехать всего 30 минут. Также недалеко станция МЦД ''Перерва'', от которой можно уехать в Москву или в область. В проекте 54 жилых корпуса, три школы, семь детских садов, поликлиника. В районе есть все условия для комфортной жизни: торговые центры, школы, детские сады, поликлиники и спортивные центры. Рядом находятся усадьба Люблино, скверы и парки. Различные магазины, кафе и другие сервисы откроются на первых этажах, а на подземных будут паркинги с удобной навигацией. В зелёных дворах без автомобилей мы построим детские площадки и места для отдыха. А ещё ''Люблинский парк'' стал третьим проектом ПИК с большой игровой площадкой ПлейХаб, которая уже открылась между 1-м и 2-м блоками на безопасном расстоянии от дороги. Новое детское пространство ''Остров'' воплощает идею бесконечной игры. Ландшафт площадки — это ещё и игровой элемент, который помогает детям придумывать множество самых разнообразных игр. Здесь интересно детям разного возраста — от малышей до подростков. Жителям квартала Люблинский парк и их друзьям доступен проект ПИКСПОРТ — это бесплатные занятия с профессиональными тренерами. Тренировки по разным направлениям, например йога, фитнес, бег, воркаут, проходят как в группе на улице рядом с домом, так и онлайн. Артикул 659728 (Застройщик ООО СЗ ''Люблино Девелопмент'')
39 м2
3 / 25 этаж
Панель
- Показать контакты
- Добавить в избранное
39 м2
3 / 25 этаж
Панель
19 019 840
485 200 /м2
Новостройка,
дом сдан
дом сдан
