3-к, Ленинский проспект, 23 Показать на карте
Москва
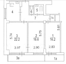
Вашему вниманию предлагается уютная, теплая и светлая 3- х комнатная квартира в Сталинском доме в одном из престижных районов Москвы. Отлично развитая социальная и транспортная инфраструктура. Отличный вариант для жизни или аренды.Дом кирпичный в отличном состоянии. Перекрытия железобетонные. Год назад в доме был сделан капремонт с заменой лифта и коммуникаций. Закрытая территория. Въезд машин только для жильцов дома и гостей. Во дворе дома имеется детская и спортивная площадка, беседка для отдыха. В шаговой доступности от дома детские сады, школы, кафе, рестораны, продуктовые магазины, отделение банков и т д. До метро Октябрьская или Ленинский проспект 5-7 минут транспортом или 15 минут пешком до метро Ленинский Проспект. В шаговой доступности автобусная остановка (50 метров). На лестничной площадке всего четыре квартиры. Все соседи тихие и доброжелательные, со всеми отличные отношения.. О самой квартире: Ранее был сделан хороший и качественный ремонт с заменой электропроводки. Благодаря тому, что дом удален от основной магистрали и окна выходят во двор в квартире очень тихо. Общий метраж 75, 2 кв. м , этаж 3, потолки 3,2, санузел раздельный. Комнаты все изолированы, очень удобная планировка. На полу ламинат, плитка в санузле, на стенах обои, натяжные потолки. Окна поменяны на стеклопакеты.По документам: 2 взрослых собственника. В собственности более 10 лет. все время было в одной семье. Обременений, залогов- нет.Альтернатива.Показ по выходным- суббота или воскресенье.Звоните и мы будем рады вам показать квартиру.
75 м2
3 / 8 этаж
Кирпич
- Показать контакты
- Добавить в избранное
75 м2
3 / 8 этаж
Кирпич
45 000 000
598 404 /м2
