3-к, Кулакова, 9 корп. 1 Показать на карте
Строгино, 11 мин
Москва
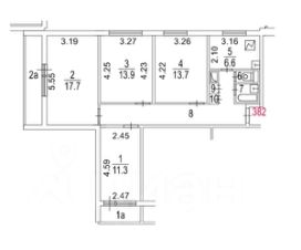
СВОБОДНАЯ ПРОДАЖА. Продается 3-х комнатная квартира с качественным ремонтом на 9-м этаже 16-ти этажного панельного дома серии П-44 1983 года постройки. Общая площадь квартиры 75,6 кв.м., комнаты изолированные 19, 14,7 и 11 кв.м., кухня 10,4 кв.м., просторный холл, санузел раздельный, большой застекленный балкон. Окна квартиры смотрят на две стороны - улицу и двор. В квартире выполнен качественный капитальный ремонт с заменой всех коммуникаций, электрики, выравниванием стен, стяжкой пола. Окна - стеклопакеты, установлены кондиционеры, теплые полы, видеодомофон. Квартира укомплектована кухонным гарнитуром со встроенной техникой, шкафами-купе.Дом ухоженный, чистый подъезд, домофон, видеонаблюдение. Строгино спокойный, зеленый район с прекрасной экологией, без промышленных предприятий. С двух сторон Строгино омывается Москва-рекой и Строгинской поймой. Близость большой воды дает возможность заниматься самыми различными водными видами спорта. Обилие парков располагает к пешим и велопрогулкам. Строгино идеальное место для людей, ведущих активный и здоровый образ жизни.Строгино - район с отлично развитой инфраструктурой, рядом все необходимое для комфортного проживания: сетевые магазины, Eurospar, ВкусВилл, школы, детские сады, поликлиники, аптеки, рестораны, салоны красоты, фитнес-клубы, Самбо-70, спорткомплекс ''Янтарь''. В 5 минутах езды Ашан, Лемана-Про, Твой Дом, ТЦ Вегас.До станции метро ''Строгино'' 8 минут пешком. Рядом с домом остановка общественного транспорта, до станции метро ''Щукинская'' 15 минут транспортом. Для автомобилистов удобный выезд на МКАД. Квартира в собственности более 5-ти лет, один взрослый собственник. Полная цена в договоре. Перепланировок нет. Ипотека возможна.
75 м2
9 / 16 этаж
Панель
- Показать контакты
- Добавить в избранное
75 м2
9 / 16 этаж
Панель
30 000 000
396 825 /м2
