3-к, Красногвардейский 1-й проезд, 21 ст2 Показать на карте
Москва
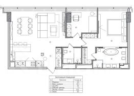
К продаже предлагается уникальный 3-х комнатный видовой апартамент от застройщика площадью 191,4 кв.м, расположенный на 69 этаже знакового небоскреба Око. Идеальный лот для семьи, а также для ценителей личного пространства и масштаба, полностью готов к проживанию, ключи передаются в день покупки. Обе спальные комнаты (29,3 кв.м и 29 кв.м) имеют собственные гардеробные и ванные. Отличительной особенностью данного апартамента является зона Мастер-спальня (главной спальни), органично отделенная от общественного пространства и имеющая собственную ванную комнату с панорамным окном площадью 18 кв. м, а также большую гардеробную, что создает приватность и комфорт проживания. В санузлах установлена премиальная сантехника Fantini. Высококачественные отделочные материалы с использованием природного камня, полы из натурального дерева. Залитая светом кухня-гостиная площадью 84 кв.м укомплектована итальянским кухонным гарнитуром Rifra и техникой Kuppersbusch. Из всех окон открываются завораживающие виды на башни Москва-Сити, набережную Москва-реки, Воробьевы горы, МГУ, Кутузовский проспект и парк Победы. Многофункциональный комплекс ОКО - это одно из самых технологичных воплощений высотных проектов в Москве и один из самых высоких жилых небоскребов России и Европы высотой 354 метра. В собственной инфраструктуре и окружении комплекса продумано и реализовано все, что необходимо для жизни: от концептуальных ресторанов, премиального фитнес-клуба, школ танцев на высоте до магазинов в одном из крупнейших в Москве торговом центре. Премиальный сервис 24/7: служба безопасности, ресепшен, консьерж-сервис, подземный паркинг.
191 м2
69 / 85 этаж
Монолит
- Показать контакты
- Добавить в избранное
191 м2
69 / 85 этаж
Монолит
146 119 005
763 422 /м2
Новостройка,
дом сдан
дом сдан
