4-к, Казарменный переулок, 3 Показать на карте
Москва
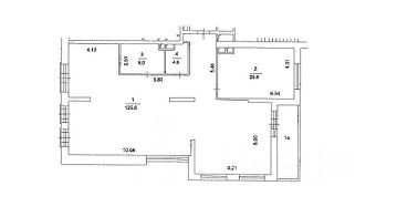
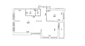
Квартира с четырьмя спальнями в комплексе ''Дом на Покровском бульваре'' недалеко от Чистых прудов. Квартира без отделки общей площадью 169 м² расположена на восьмом этаже. Планировка позволяет организовать пространство по своему усмотрению. Возможно спланировать кухня-гостиная, четыре спальни, санузел, гардеробную и балкон. Окна ориентированы на три стороны, открываются виды на благоустроенную территорию комплекса.Главное о доме. ''Дом на Покровском'' — квартал из 12 секций высотой 710 этажей в Басманном районе, спроектированный мастерской ''Группа АБВ''. Фасады играют в двух стилях: со стороны улицы — французская архитектура XVIIIXIX веков с колоннами, витражами и коваными деталями, со стороны двора — современная лаконика с геометрическим рисунком облицовки. Секции соединены стеклянными галереями и образуют три тихих двора. Внутри — озеленение с редкими деревьями, прогулочные дорожки, детский городок и зоны отдыха. На верхних уровнях расположены пентхаусы с террасами и эксплуатируемыми крышами с видами на Москву-Сити и Покровский бульвар.Главное о локации. Комплекс стоит в 100 метрах от Бульварного кольца, в шести минутах пешком от Чистых прудов. Утро можно начать с пробежки вдоль аллей Покровского бульвара или чашки кофе в ''Кофемании''. Днём удобно заглянуть в ''Азбуку вкуса'' или пройтись до ТЦ ''Атриум'', вечером — в театр ''Современник'' или на концерт в ''Гоголь-центр''. Для семей рядом сильные школы: ''Покровский квартал'', школа 661 и лицей ВШЭ. В шаговой доступности Милютинский сад и фитнес-клуб X-Fit с бассейном. До Кремля всего два километра, а выезд на Садовое кольцо занимает пару минут на машине.Комментарий эксперта. Меня зовут Егор Мясоедов — брокер компании Whitewill. Я отвечаю за продажу этого лота. Свяжитесь со мной, чтобы получить расширенную презентацию, больше фотографий или договориться о просмотре. Могу провести экскурсию по локации и познакомить вас с этим домом.ID 292 275.
169 м2
8 / 9 этаж
Кирпич - монолит
- Показать контакты
- Добавить в избранное
169 м2
8 / 9 этаж
Кирпич - монолит
190 131 500
1 125 038 /м2
