Офисное помещение
Ленинградский проспект, 37/8 Показать на карте
Ленинградский проспект, 37/8 Показать на карте
Аэропорт, 14 мин
Москва
Новый бизнес-центр класса PRIME на Ленинградском проспекте проспектеКомфортные условия сделки- беспроцентная рассрочка- скидка на акцииОкупаемость - 8-10 летДоходность - от 18%Офис для своей компании или для бизнесаИнфраструктура комплекса PRIME PARK- смешанная планировка- потолок 3.7- VIP- окна в пол- максимальная инсоляция- возможность проветривания- центральное кондиционирование- вентиляция с рекуперацией- паркинг подземный- полная инфраструктура- сервисное обслуживание- топовые инженерные решения- премиальная архитектура здания- лучшие дизайнерские решенияАрхитектураЗдание высотой 22 этажа со стеклянными светоотражающими фасадами. Панорамное остекление создает хорошее освещение внутри помещений. Внутри офисов отделка выполнена в едином стиле.Инфраструктураотделения банков: Райффайзенбанк, Локо-банк,госкорпорация по ОрВД, общественный фонд МФСЭПИ,рестораны и кафе: Виват пицца, Ibis, Кофемания, Гио, Черетто,медицинские центры: ДНКОМ, Dentaire Avenir Clinique,салоны красоты: Пол Митчелл, Укротители волос.ПарковкаТрехуровневый подземный паркинг на 13 мото-мест, 297 машино-мест, 15 машино-мест для электрокаров. Есть 9 станций подзарядки для электрокаров.Инженерияприточно-вытяжная система вентиляции,центральное двухзонное отопление,автоматическая система пожаротушения,центральное кондиционирование,круглосуточная охрана,система видеонаблюдения.Транспортная доступность8 минут пешком до м. Петровский парк,9 минут пешком до м. Динамо,10 минут пешком до м. ЦСКА,12 минут пешком до м. Аэропорт,удобный выезд на Ленинградский проспект.
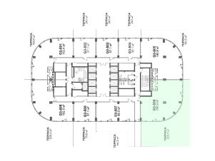
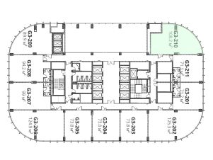
202 м2
- Показать контакты
- Добавить в избранное
202 м2
85 050 000
420 000 /м2
