4-к, Варшавское шоссе, 170е корп. 4 Показать на карте
Москва
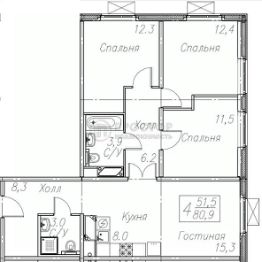
Номер в базе: 4861764. О ДОМЕ:Дом 26-этажный монолитный 2023 года постройки в составе ЖК комфорт-класса ''Зеленая Вертикаль'' (район Чертаново Южное, ЮАО). В доме 1 подъезд, всего 250 квартир. Дом оборудован двумя грузовыми и одним пассажирским лифтом. Благоприятное состояние дома и его инфраструктуры позволит вам наслаждаться всеми преимуществами городской жизни.О КВАРТИРЕ:- Отделка White box — стяжка пола, разводка электрики, установка щитка, розеток и выключателей, разводка труб горячей и холодной воды, канализации, выравнивание и оштукатуривание стен. - Окна на три стороны: одно окно на восток, одно окно на запад, три окна на север- Комнаты изолированные 14,7 м², 14,7 м², 11,9 м², 11,9 м²- Кухня-гостиная 16,6 м²- Две застеклённых лоджии по 3,4 м²- Два санузла 3,5 м², 1,7 м²О ЛОКАЦИИ:Здесь есть всё, что нужно семье: тихий, зелёный район, вся инфраструктура в пешей доступности (школы, сады, поликлиники, ТЦ). Дом расположен в пешей доступности от станции метро ''Лесопарковая'' (около 340-500 метров), до ''Аннино'' — 900 м пешком. До центра — быстро! Для автовладельцев — удобный выезд на Варшавку и МКАД + наземный паркинг во дворе. Прямо за окном Битцевский лесопарк. Свежий воздух, тишина, пробежки и прогулки с детьми — без выходных и без пробокО ДОКУМЕНТАХ:2 взрослых собственника. Первичные документы. Юридическая чистота. Обременений нет. Полная стоимость в ДКП. Быстрый выход на сделку.ДЛЯ ПОКУПАТЕЛЕЙ с агентством ''ЭТАЖИ'': * финансовая гарантия до 25 000 000 рублей на 3 года , * содействие в получении положительного ипотечного решения в банках с пониженной % ставкой, * юридическое сопровождение и гарантия безопасной сделки.ДОБАВЬТЕ объявление в избранное, чтобы сохранить ссылку (нажмите сердечко)ЗВОНИТЕ, готов ответить на ваши вопросы и организовать оперативный просмотр!Код пользователя: 194342
101 м2
22 / 26 этаж
Монолит
- Показать контакты
- Добавить в избранное
101 м2
22 / 26 этаж
Монолит
24 990 000
245 481 /м2
