4-к, Долгоруковская, 25а Показать на карте
Менделеевская, 8 мин
Москва
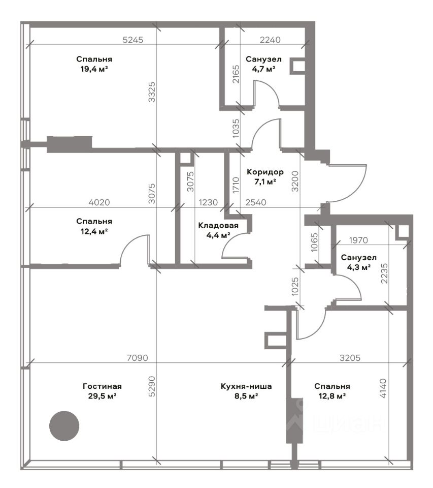
Арт. 126401469 Ваша резиденция в небе. Единственный пентхаус в клубном доме ''Долгоруковская, 25''Не просто целый этаж. Это — персональная высота в самом сердце Москвы, где эталоном является не количество этажей, а безупречность окружения и абсолютная приватность.Представьте: вы въезжаете в охраняемый двор тихого, элегантного клубного дома, где всего несколько избранных семей. Ваш лифт ведет не в общий холл, а в приватный вестибюль, который открывает мир ваших 460 квадратных метров, раскинувшихся на всем верхнем уровне. Это пентхаус-резиденция, где сходятся все преимущества: панорамный охват города, свет с четырех сторон и камерная атмосфера закрытого сообщества.Почему этот пентхаус уникален: Философия клубного дома: Малоэтажность — синоним приватности, безопасности и спокойствия. Здесь нет суеты и анонимности больших комплексов. Вы покупаете не только площадь, но и окружение. Абсолют всего этажа: Полная монополия на уровень. Никого над вами, только небо. Ни соседей по площадке — только ваш личный лифт и ваше пространство. Адресная элитарность: Долгоруковская улица — это тихий престиж в пяти минутах от Садового кольца. Исторический центр, лучшие рестораны и галереи — за порогом вашего дома. Готовность к жизни высшего уровня: Предусмотрена чистовая отделка премиум-класса. Вам не нужно ждать — можно сразу расставлять мебель и искусство, создавая интерьер, достойный архитектурной оболочки. Все инженерные системы подготовлены для интеграции ''умного дома''. Панорама 360 с человеческого масштаба: Вы смотрите на Москву не со стометровой высоты, а с комфортного, ''клубного'' уровня, ощущая связь с городом, а не оторванность от него.Готовое пространство для избранного образа жизни: Приемы и уединение: Просторная гостиная-трансформер с высокими потолками и выходом на террасу — для блистательных вечеров. Уютные каминные зоны и библиотеки — для тишины и размышлений. Комфорт для семьи и гостей: Планировка позволяет создать 4-5 просторных спален-сюит с гардеробными и ванными, гостевой блок, кабинет. Терраса как продолжение дома: Ваш частный оазис наверху мира для завтраков, йоги, вечерних коктейлей или наблюдения за звездами. Технологии по желанию: Готовая инфраструктура для климат-контроля, мультирум-аудиосистемы, безопасности и зарядки электромобиля.Этот пентхаус — выбор для тех, кто прошел этап демонстрации статуса и достиг уровня, где ценятся подлинная приватность, безупречный вкус и осознанное комфортное проживание в самом центре мира.Владение этой резиденцией — это вступление в самый камерный и респектабельный клуб. Клуб, где этаж — это целая вселенная одного владельца.Конфиденциальный показ возможен только для серьезных покупателей, чьи запросы соответствуют уникальности объекта.
460 м2
5 / 5 этаж
Кирпич
- Показать контакты
- Добавить в избранное
460 м2
5 / 5 этаж
Кирпич
890 000 000
1 934 783 /м2
