4-к, Филевская М., 46 Показать на карте
Пионерская, 12 мин
Москва
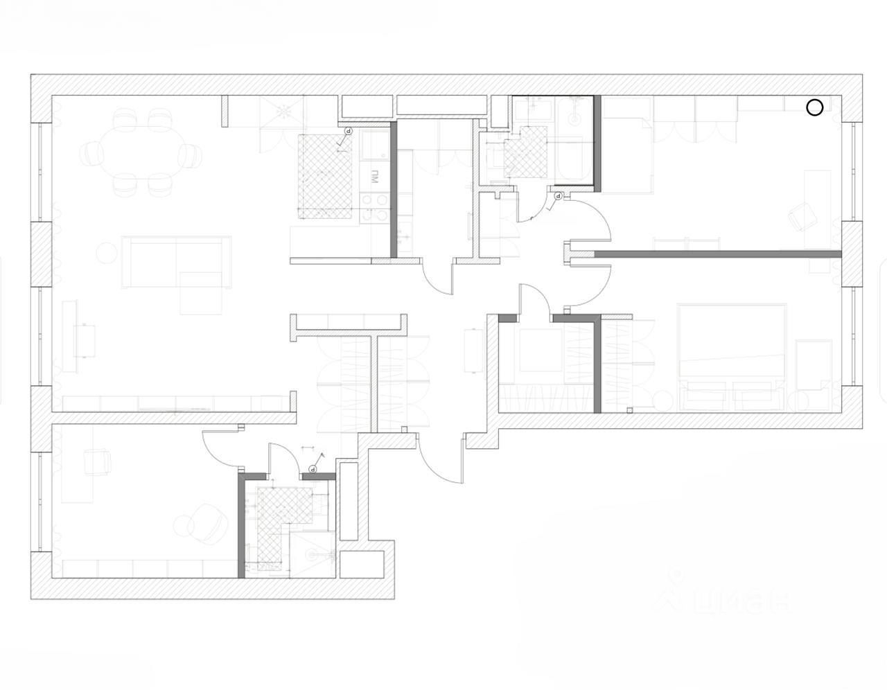
Четырехкомнатная велнес-резиденция площадью 184.8 кв. м. на 19 этаже с видом на двор и центр в доме премиум-класса Springs. В квартире выполнена чистовая дизайнерская отделка. Резиденция наполнена светом и воздухом, благодаря панорамному остеклению и высоким потолкам. На первом этаже дома расположены: - фитнес-центр с бассейном, - СПА с хаммамом, - бьюти-зона с массажным кабинетом. - ресторан. Все сервисы доступны исключительно для резидентов. Всего в 2 минутах ходьбы от дома находится заповедный парк Фили прекрасное место для спокойного и активного отдыха. Зеленый массив, набережная, велотропы и открытые зоны для йоги, а также шахматный клуб, летний кинотеатр, множество беседок и кофеен. До делового комплекса Москва-Сити всего 16 минут, а центр в 14 минутах езды по Кутузовскому проспекту. Удобный выезд к Рублёвскому шоссе — отличная возможность на выходных сбежать с детьми за город, потратив на дорогу меньше получаса. Концепция благоустройства Springs, разработанная студией Wowhaus, воплощает идею взаимного проникновения парка и озеленения внутренней территории: естественная растительность, дополненная акцентами из цветников, плавно вступает во двор. В сочетании с бионической архитектурой дом является органичным продолжением природного ландшафта парка.
184 м2
19 / 25 этаж
Кирпич - монолит
- Показать контакты
- Добавить в избранное
184 м2
19 / 25 этаж
Кирпич - монолит
262 970 400
1 423 000 /м2
Новостройка,
III-2027
III-2027
