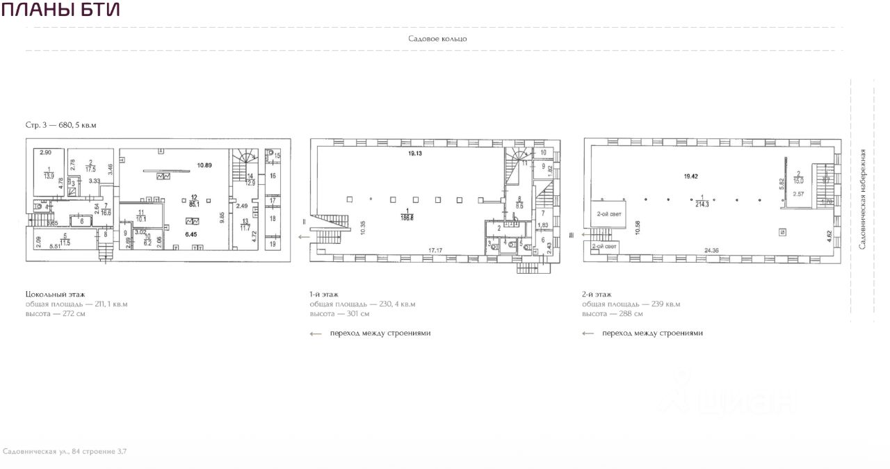
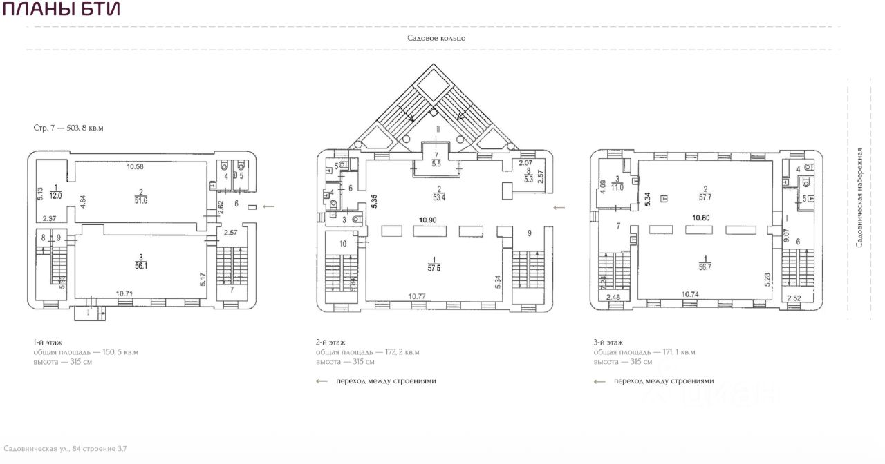
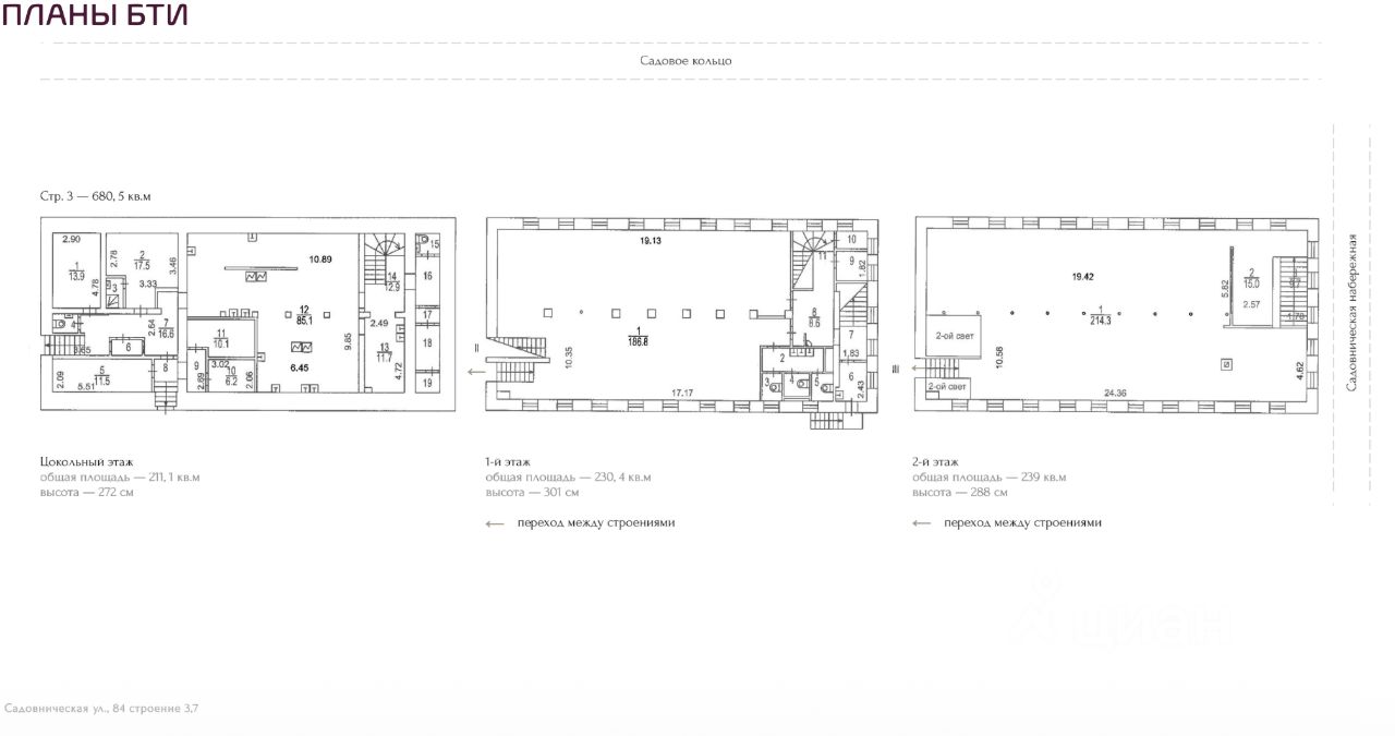
Предлагается к продаже Особняк с летней верандой на первой линии Садового кольца, площадью 1184,3 м2, расположенное на ул. Садовническая, д. 84, стр. 3,7.
- Ремонт: Чистовая отделка (за выездом арендатора),
- высота потолков стр. 3: 2,7-3 м, стр. 7: 3,15 м,
- парковка: 3м/м,
- ЗУ, м² ВРИ : 538 Предпринимательство (4.
Предлагается к продаже Особняк с летней верандой на первой линии Садового кольца, площадью 1184,3 м2, расположенное на ул. Садовническая, д. 84, стр. 3,7.
- Ремонт: Чистовая отделка (за выездом арендатора),
- высота потолков стр. 3: 2,7-3 м, стр. 7: 3,15 м,
- парковка: 3м/м,
- ЗУ, м² ВРИ : 538 Предпринимательство (4.0) (земельные участки, предназначенные для размещения объектов торговли, общ.питания и бытового обслуживания (1.2.5))
Здания находятся в центральной части города, на Садовом кольце, в 5 мин.пешком от станции метро Павелецкая, Павелецкого вокзала и ТРЦ Павелецкая Плаза. Рядом остановка общ. транспорта. Интенсивный пешеходный и автомобильный трафик. Торговое, культурное и деловое окружение. Исторически сложившийся плотный, жилой массив.