1/3
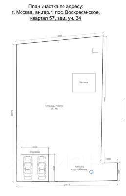
Земельный участок, Москва
Продается участок 600 кв.м. с каркасно-модульным домом площадью 35,9 кв.м. постройки 2018 г. Дом пригоден для круглогодичного проживания, удобства (совмещенный санузел: туалет, ванна) внутри. Сделана дополнительная наружная теплоизоляция, имеется дровяная печь-камин и сплит-система. Расположен в конце уч-ка, что удобно для возведения более крупного жилого объекта. Дом поставлен на кадастровый учёт, возможна московская прописка.Инфраструктура: электричество 15 кВт, газ по границе уч-ка. Водоснабжение автономное (колодец), есть возможность подключения к централизованному ВС. Установлен септик.Один взрослый собственник, обременения отсутствуют.
6 соток
10 000 000 ₽
