Коттедж, проезд Черничный Показать на карте
Москва
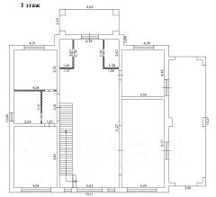
Коттеджный поселок Черничные Поля. Стильный современный коттедж площадью 330 кв. метров с панорамным остеклением. Планировка: на первом этаже гостиная, столовая, кухня с выходом на просторную веранду (40 кв. метров), гостевая спальня, санузел, котельная, на втором этаже 4 спальни, гардеробная комната, 2 санузла. Котельная. Все разводки отопления, теплый пол, электричество, горячее и холодное водоснабжение функционирует. Современные актуальные отделочные материалы, модные световые решения. Построен из пустотелого красного кирпича, снаружи облицовочный кирпич, все коммуникации центральные. Участок 10 соток, ИЖС. Участок по периметру огорожен забором с автоматическими въездными воротами. Выполнен дренаж. Залита площадка для стоянки автомобилей. Удобный круглогодичный асфальтированный подъезд. Закрытый коттеджный поселок с надежной охраной, асфальтированными дорожками, детскими и спортивными площадками. В пешей доступности магазин Перекресток, Загородный Клуб ''АлександрЪ'', аптека, строймаркет, пункт выдачи ОЗОН. Также к поселку примыкает железнодорожная станция МЦД Санино - 30 минут и вы в центре Москвы! Дом в процессе строительства. Готовность - начало сентября. Начата внутренняя отделка. Стоимость дома указана под чистовую отделку со всеми действующими коммуникациями (как на фото). Возможен обмен на квартиру в Хамовниках.Номер объекта: #1/537049/22448
330 м2
2 этажа
Кирпич
- Показать контакты
- Добавить в избранное
330 м2
2 этажа
Кирпич
49 000 000
148 485 /м2
