Дом, Заречная, 7 Показать на карте
Москва
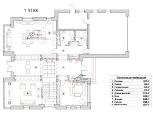
Уютный дом в Красных Горках, Внуково: природа рядом, Москва близко!Предлагаем к продаже дом на улице Заречной в посёлке Красные Горки (муниципальный округ Внуково, Москва) — идеальное сочетание тишины загородной жизни и удобной транспортной доступности.Один собственника. Есть обременение. Прямая продажа!Подходит под ипотеку и материнский капитал. Возможна прописка.О доме:Два этажа,Пять комнат: 20 кв.м, 8.02 кв.м, 14.63 кв.м, 15.09 кв.м, 9.4 кв.м,Материал дома: брус, кирпич, бревно, блоки,Облицовка- штукатурка,Фундамент: цоколь (бетон),Материал крыши- мягкая кровля,Есть подвал (полноценный цокольный этаж).Дом без ремонта - что дает простор вашему воображению.Кадастровый номер дома: 50:26:0170705:87Об участке:Площадь участка - 7,5 сотки,Размер участка: 29х26мСтатус участка- ИЖС,Межевание сделано,Участок правильной формы,Огражден: профлист и кирпичный забор,Кадастровый номер: 77:18:0170705:546 Коммуникации:Электричество - 15 кВт,Газ заведен в дом,Водопровод - скважина 70 метров,Канализация - септик Топас,Отопление - котел-газ,Дополнительно: Есть гараж, кладовая, тамбур.Откройте для себя преимущества жизни на природе без отказа от удобств мегаполиса! Предлагаем к продаже комфортабельный дом в живописном и экологически чистом районе Новой Москвы.Ключевые преимущества локации:сочетание загородной тишины и городской инфраструктуры,экологически чистый район с обилием зелёных зон,развитая транспортная сеть — легко добраться как на общественном транспорте, так и на личном автомобиле,перспективная территория в составе Новой Москвы с постоянным развитием инфраструктуры.Транспортная доступность:1523 км до МКАД (по Киевскому или Боровскому шоссе),15 минут пешком до остановки общественного транспорта,1 км до станции МЦД4 ''Крёкшино'',1,4 км до платформы ''Победа''.Звоните прямо сейчас, чтобы записаться на просмотр или получить подробную консультацию!Арт. 136054655
215 м2
2 этажа
Дерево
- Показать контакты
- Добавить в избранное
215 м2
2 этажа
Дерево
29 500 000
136 637 /м2
