2-к квартира Показать на карте
Москва
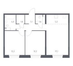
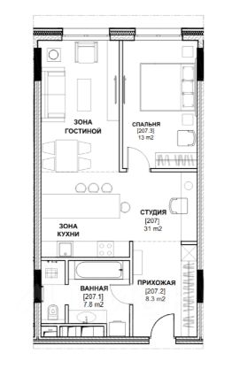
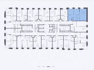
Цена указана с учётом скидки при 100%-й оплате, несубсидированной ипотеке, рассрочке (кроме программы ''Рассрочка 0%'').В северной части района Печатники продается 2-комнатная квартира площадью 50.30 кв.м с отделкой white box. Квартира расположена на 16 этаже 49-этажного корпуса 9 в жилом комплексе комфорт-класса Левел Южнопортовая (компания Level Group/Левел групп). Отличная транспортная доступность:- 10 мин. пешком до станции метро ''Кожуховская'',- 20 мин. пешком до станции МЦК ''Дубровка'',- 3 мин. на авто до ТТК,- 13 мин. на авто до Садового кольца,- 15 мин. на авто до Бульварного кольца. Продуманный архитектурный проект:- авторская архитектура от бюро СПИЧ,- уникальные виды на реку, парки и достопримечательности города,- высота потолков в квартирах до 6 м,- окна высотой до 1,87 м с высоким коэффициентом сопротивления теплоотдаче. Расположение:Жилой комплекс Левел Южнопортовая строится в северной части района Печатники - самой приближенной к центру. Здесь будет сформирован новый район ''Южный порт'', где построят крупный жилой и общественно-деловой центр, аналогичный Москва-Сити. В течение 10-12 лет в этом месте появятся не только жилые дома, но и развитая инфраструктура для жизни и работы. А еще совсем рядом находится набережная Москвы-реки, где планируется построить причалы для речных трамвайчиков и канатную дорогу.Уже сейчас вокруг жилого комплекса работают десятки магазинов и торговых центров, рядом расположено 6 парков, среди которых музей-заповедник ''Коломенское''. В 10 минутах пешком - 2 муниципальных и 2 частных детских сада, 7 общеобразовательных школ.Внутренняя инфраструктура:Для отдыха жителей в каждом корпусе предусмотрено лобби, оснащенное местами для отдыха, гостевыми санузлами и лапомойками, а в отдельных корпусах - камином. За счёт больших окон и высоких потолков пространства будут наполнены воздухом и светом.На первых этажах жилого комплекса откроются магазины, салоны красоты, фитнес-центр. Для детей строятся собственные детский сад и школа. Благоустройство:Внутренний двор комплекса разработан совместно с бюро GAFA. Основная идея - создать аналог Центрального парка в Нью-Йорке, гармонично сочетая высотные здания и большое изолированное парковое пространство.Вся площадь двора-парка будет огорожена и составит более 2 га, из которых 45% - озеленение. Одним из самых важных ландшафтных элементов здесь станет небольшая речка, наполняющаяся во время дождя. Вокруг неё появится сеть из островов, внутри которых расположатся тематические зоны спорта и отдыха. Технологии и инженерия:- автоматическая передача в управляющую компанию показаний квартирных счётчиков,- телефонная связь, телевидение и интернет на базе оптической мультисервисной сети,- гостевой Wi-Fi в лобби и на территории двора,- единый ключ доступа для входа на территорию комплекса.
50 м2
16 / 49 этаж
Монолит
- Показать контакты
- Добавить в избранное
50 м2
16 / 49 этаж
Монолит
22 250 643
442 359 /м2
Новостройка,
I-2029
I-2029
