logo
N1.RU — новая улучшенная версия Е1.Недвижимость
Чтобы вернуться на старый сайт Е1.Недвижимость, перейдите по ссылке в нижней части сайта N1.RU
  • Продажа
  • Аренда
  • Новостройки
  • Журнал
  • Компании
  • Шаблоны документов
  • Налоговый вычет
  • Еще
  • Личный кабинет
    • Регистрация на Циан
    • Москва
  • Добавить объявление
Тип недвижимости
Москва
Начните вводить или выберите объект в выпадающем списке
  • Метро
  • Район и микрорайон
Количество комнат
Цена
  1. Недвижимость в Москве
  2. Продажа
  3. Квартиры
  4. Без посредников
  5. 2668 объявлений

Продажа квартир без посредников в Москве

  • Вторичка2 340
  • Новостройки328
За все время
Сортировка по умолчанию
СпискомСписком
ТаблицейТаблицей
На картеНа карте
Открыть поиск по карте

По вашему запросу объявлений не найдено

1/9
1-к, Соколиной Горы 3-я, 19 Показать на карте
Шоссе Энтузиастов, 10 мин
Москва
Продам 1 комнатную квартиру. Метро шоссе Энтузиастов в 10 минутах пешком, автобусная остановка, трамвай, что позволяет быстро добраться в любую точку города! Рядом магазины, торговые центры, аптеки, детский сад и школа! собственник, без образований, документы готовы к сделке!
31 м2
4 / 5 этаж
Кирпич
  • Показать контакты
  • Добавить в избранное
31 м2
4 / 5 этаж
Кирпич
12 150 000 
391 935 /м2
1/13
1-к, Стройкомбината проезд, 1 Показать на карте
Москва
Продаётся светлая студия со свежим ремонтом в 2 минутах пешком от станции Очаково. Свободная продажа от собственника (квартира приобреталась напрямую у застройщика по ДДУ), без обременений. Никто не прописан и не был. Ипотека возможна. Готовность быстро выйти на сделку.Из техники и оснащения: встроенная кухня, холодильник, посудомоечная машина, 5-ти ступенчатый фильтр воды, индукционная варочная панель, вытяжка, стиральная машина, кондиционер. Можно заезжать и жить сразу.Дом 2024 года постройки — всё новое. Четыре лифта, без очередей. В доме есть подземная парковка и охрана. Классная закрытая дворовая территория.Вокруг всё для жизни: магазины, кофейни, ПВЗ, поликлиники. Удобный выезд в сторону области и центра.На звонки не всегда могу ответить. Пожалуйста, пишите в чат. Показ предпочтителен в выходные дни и/или в вечерние часы. Обсуждаемо :)P.S. Риелторы, пожалуйста, не беспокойте. Помощь в продаже не требуется.
20 м2
28 / 33 этаж
Монолит
  • Показать контакты
  • Добавить в избранное
20 м2
28 / 33 этаж
Монолит
13 500 000 
675 000 /м2
1/36
5-к, Мичуринский проспект, 5 Показать на карте
Москва
Предлагается уникальная 5-комнатная квартира в жилом комплексе Шуваловский, идеально подходящая для большой семьи. Комплекс расположен на Воробьёвых горах, в одном из самых экологически благополучных районов Москвы, при этом обладает прекрасной транспортной доступностью: 3 минуты до метро, 15 минут до Москва-Сити.Пространство объединяет две квартиры (95 м² и 75 м²), что формирует продуманную и функциональную планировку с разделением на приватную и гостевую зоны.Квартира расположена на высоком 12 этаже и имеет двустороннюю ориентацию: на Мичуринский проспект и в тихий внутренний двор. Приватный блок включает три спальни и кабинет-спальню с видом на благоустроенное зелёное пространство комплекса Шуваловский. Из кухни и просторной гостиной открывается панорамный вид на район Раменки. Все виды из окон — панорамные, без эффекта окна в окна.Квартира наполнена естественным светом и ощущением простора.На этаже всего три квартиры, что обеспечивает дополнительный комфорт и приватность. Входная группа с консьержем.Закрытый охраняемый двор с ландшафтным озеленением и современной детской площадкой. На территории комплекса расположены два детских сада и Шуваловская школа 1448, куда жильцы имеют приоритет при поступлении.Развитая инфраструктура: рестораны, фитнес-клубы, магазины, банки и аптеки — в шаговой доступности.В непосредственной близости — МГУ и природный парк Воробьёвы горы.
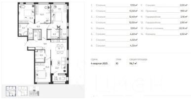
165 м2
12 / 17 этаж
Монолит
  • Показать контакты
  • Добавить в избранное
165 м2
12 / 17 этаж
Монолит
145 000 000 
878 788 /м2
1/12
3-к, Новоалексеевская, 16 корп. 5 Показать на карте
Алексеевская, 8 мин
Москва
Продаётся трёхкомнатная квартира от собственника с эксклюзивным видом. Расположена в престижном жилом комплексе бизнес-класса Серебряный Фонтан (премия Лучший проект 2023 от Правительства Москвы) в Алексеевском районе — в 15 минутах пешком от парка Сокольники и в 20 минутах от ВДНХ.Архитектура комплекса в стиле промышленной готики спроектирована всемирно известным архитектором Сергеем Чобаном.На уникальной территории ЖК расположены исторические здания XIX века, старинный фонтан Уоллеса и вековая липовая аллея. И на все это роскошество открывается прямой вид из ваших окон. Дизайн в стиле неоклассики гармонично сочетается с окружающими видами. Здесь ритм большого города замирает, неспешность и тишина, в сочетании с прекрасной логистикой, придает объекту особую уникальность.Функциональная планировка: просторная кухня-гостиная, две изолированные спальни, гардеробная, два санузла.Выполнена премиальная отделка в стиле современной классики.Высокие потолки (3,1 м) создают ощущение пространства и объёма.Продуманная инженерная система.Премиальные немецкие окна Schco.Качественные трубчатые радиаторы.Высокие межкомнатные двери итальянского производства (2,3 м).Паркет французская ёлка Coswick Select (дуб).Бытовая техника Asko, De Dietrich.Дизайнерский интерьер выполнен по авторским эскизам с использованием натурального дерева и эмалированного МДФ. Использованы решения европейских и премиальных российских производителей.ЖК отличается удобной транспортной доступностью: быстрый выезд на проспект Мира, Садовое и Третье транспортное кольцо. До станции метро Алексеевская — 10 минут пешком.На территории комплекса — множество зон для спорта и отдыха. Работают пункты выдачи Ozon, Wildberries и Яндекс, супермаркет ВкусВилл, аптеки, салоны красоты, кафе. В шаговой доступности — фитнес-клуб World Class. На территории — два частных детских сада. Рядом большой выбор школ и детских садов, есть высокорейтинговые.ТВся территория находится под круглосуточной охраной. Шикарные входные группы в стиле артдеко с мягкой зоной ожидания. Внутренние дворы с ландшафтным дизайном. Двухуровневый подземный паркинг.Продажа от собственника. В услугах риэлторов не нуждаюсь.
111 м2
2 / 11 этаж
Кирпич - монолит
  • Показать контакты
  • Добавить в избранное
111 м2
2 / 11 этаж
Кирпич - монолит
105 000 000 
945 946 /м2
1/24
2-к, Лазоревый проезд, 5 корп. 5 Показать на карте
Москва
Продаётся 2-комнатная квартира с дизайнерским ремонтом в современном жилом комплексе, в 3 минутах пешком от метро Ботанический сад.Продуманная планировка, потолки 3,1 м, качественная шумоизоляция и высокий уровень отделки создают ощущение уюта и приватности. Главная ценность — просторная приватная терраса:личное пространство для отдыха, утреннего кофе, садоводства или безопасных игр ребёнка. Подходит для семей: рядом сильные школы и лицеи, парки, бассейны и фитнес-клубы. Комфорт для спокойной жизни: безбарьерная среда, тишина, медицинская инфраструктура в шаговой доступности.Подходит для пожилых: в окружении 6 парков, тихие соседи и отсутсвие текущих ремонтов. Невысокий этаж и три скоростных лифта. Современный дом с подземным паркингом и лифтами. Обратите внимание, машино-место не включено в стоимость квартиры. Сбалансированная локация: зелёные зоны, магазины, удобная транспортная доступность.Прямая продажа от собственника. Два взрослых собственника, общая совместная собственность. Дата регистрации 26.07.2019. Право основания ДДУ от застройщика от 2015г. Перехода прав не было. Без материнского капитала, обременений, ограничений, арестов, запретов, парвопритязаний. Никто не прописан. Не было перепланировок. Полная стоимость в договоре. В квартире никто не проживает - свободная продажа. Обратите внимание, что площадь лоджии 11 кв м. Следовательно площадь квартиры без лоджии составляет 48.9 м2. Два окна ориентированы на террасу, одно окно спальни на дорогу. Вид из окна спальни представлен на последнем фото. Мебель и техника включена в стоимость квартиры и переходит новому владельцу Показы проводятся в дневное время — чтобы вы могли в полной мере оценить свет, пространство и атмосферу.Уважаемые риэлторы, меня зовут Екатерина и я прошу придерживаться ряда правил:1. Не беспокоить вопросами про сотрудничество, я не оплачиваю комиссию2. Не уточнять про торг - этот вопрос обсуждается только с самим покупателем и на этапе внесения аванса3. Не записываться на просмотр без клиента4. Не задавать вопросы дублирующие информацию из объявления.5. Не спамить сообщениями/звонками6. В случае отмены просмотра - своевремменно информировать об этом.Соблюдение правил позволит более эффективно распределять Ваше время. В случае нарушения, прошу отнестись с пониманием к отказу в просмотре квартиры.Фото в объявлении реальные и сделаны мной, копирование фото без моего письменного согласия категорически запрещено.
59 м2
4 / 27 этаж
Монолит
  • Показать контакты
  • Добавить в избранное
59 м2
4 / 27 этаж
Монолит
32 500 000 
542 571 /м2
1/30
5-к, Льва Толстого, 23 корп. 1 Показать на карте
Москва
Двухуровневая квартира в Хамовниках с дизайнерским ремонтом. Качественная отделка с использованием дорогих материалов. Кухня и встроенная мебель Julia Novars. Паркет, подогреваемый пол, натуральный камень, встроенная техника Miele, холодильник Liebherr side-by-side, фильт питьевой воды, в каждом санузле установлен бойлер, Сплит-система Mitsubishi с отдельными блоками на каждую комнату. Первый этаж: гостевой санузел, сезонная гардеробная, постирочная комната, просторная кухня-гостиная. Второй этаж: две изолированные детские спальни (с балконом) с большими встроенными шкафами от Julia Novars, детский санузел, холл, кабинет, изолированная мастер-зона со спальней, огромной гардеробной и санузлом. Элитный тихий ЖК Литератор с закрытым пешеходным двором. В непосредственной близости от ЖК детские сады, рейтинговые школы, салоны красоты, рестораны, Усачевский рынок, парк Трубецких, усадьба Льва Толстого, сквер Девичего поля.
236 м2
2 / 7 этаж
Кирпич - монолит
  • Показать контакты
  • Добавить в избранное
236 м2
2 / 7 этаж
Кирпич - монолит
391 000 000 
1 656 780 /м2
1/13
2-к, Красногвардейский 1-й проезд, 22 ст1 Показать на карте
Москва
ПИШИТЕ В ЧАТ, на звонки не всегда могу ответить. Апартаменты в Neva Towers | панорамный вид на МосквуВысокий этаж. Панорамное остекление.Функциональная планировка: кухня-гостиная + спальня.— Авторский дизайнерский интерьер— Полностью укомплектованы мебелью и техникой— Формат под ключ, без дополнительных вложенийИдеально как для личного проживания, так и для инвестиции под аренду.Ликвидный объект в одном из самых статусных комплексов Москва-Сити.Инфраструктура комплекса:— фитнес-клуб и SPA— бассейн— круглосуточная охрана и сервис уровня 5Быстрый выход на сделкуГотов к предметному диалогуАктуально при оперативном решении
66 м2
32 / 68 этаж
  • Показать контакты
  • Добавить в избранное
66 м2
32 / 68 этаж
47 500 000 
710 015 /м2
1/31
2-к, Староалексеевская, 5а Показать на карте
Алексеевская, 7 мин
Москва
Уважаемые агенты по недвижимости, комиссию не плачу, прошу вас без клиентов не беспокоить. Продается стильная, светлая евротрёшка в современном 30-этажном доме по адресу: Москва, Староалексеевская улица, 5А. Общая площадь квартиры составляет 69 кв. м, из которых 25 кв. м отведено под жилую зону, а просторная кухня-гостинная занимает 20 кв. м.с хвостиком. Высота потолков — 2,9 метра, что создает ощущение простора и света. До станции метро ''Алексеевская'' всего 10 минут пешком.Квартира оформлена в дизайнерском стиле и готова к немедленному заселению. В интерьере использованы современные материалы и цветовые решения, создающие уютную и гармоничную атмосферу. Санузел совмещенный и оборудован качественной сантехникой. Окна квартиры выходят на улицу, что обеспечивает хорошую освещенность и вид.Дом был построен в 2022 году и находится в отличном состоянии. В нем предусмотрены один пассажирский и два грузовых лифта, поэтому можно комфортно добраться до нужного этажа. Для автомобилей жильцов есть подземная парковка, поэтому ваш транспорт всегда будет в безопасности.Район отлично развит и предлагает все необходимое для комфортной жизни: рядом находятся школы, детские сады, клиники и магазины. Удобная транспортная доступность позволяет быстро добраться до центра города, ВДНХ, парка Сокольники и других районов.Квартира продается от собственника, что упрощает процесс оформления сделки. Все документы готовы к проверке. Без обременений и дополнительных комиссий.Приглашаем вас на просмотр этой замечательной квартиры. Звоните и мы покажем вам в удобное для вас время, чтобы могли оценить все преимущества этого предложения лично!
69 м2
13 / 30 этаж
  • Показать контакты
  • Добавить в избранное
69 м2
13 / 30 этаж
39 890 000 
578 116 /м2
1/7
4-к, 328-й кв-л, 1 Показать на карте
Москва
Продается шикарная, видовая четырёхкомнатная квартира на 11-м этаже в премиальном ЖК ''Остров - 8''.В проекте изначально предусмотрены:Большая кухня-гостинаяТри спальниТри санузлаОкна выходят юго-восток, открывается прекрасный вид на парковую зону и Москва-реку. При покупке квартиры будет предложено приобрести удобное и близко расположенное к лифту машиноместо на -2 этаже площадью 14.3 кв.м.Оба объекта предлагается приобрести по цене 70.00 млн. рублей без возможности их деления либо какого-либа торга.Один взрослый собственник, объекты без обременений, быстрая готовность выхода на сделку.Ввод дома в эксплуатацию планируется на 4кв. 2026 года.Агентов и агентства категорически не беспокоить !!!
91 м2
11 / 19 этаж
  • Показать контакты
  • Добавить в избранное
91 м2
11 / 19 этаж
64 900 000 
706 202 /м2
Новостройка,
IV-2026
1/20
4-к, Льва Толстого, 23 корп. 1 Показать на карте
Москва
Продается двухуровневая квартира как из Пинтерест с абсолютно новым ремонтом в легендарном тихом ЖК Литератор. Расположена в самом центре Столицы в Хамовниках. Придомовая охраняемая территория без машин, подземный паркинг. Светлая квартира с панорамными окнами, выходящими во внутренний двор. Ремонт выполнен из премиум материалов: паркет, высота межкомнатных дверей 2,70, сантехника VitrA, Villeroy and Boch, плитка Zodiac. Сплит-система с отдельными блоками в каждой комнате. Во всех санузлах установлены бойлеры.Первый этаж: просторная кухня-гостиная, гостевой санузел, гардеробная. Второй этаж: мастер-спальня со своим санузлом и просторной гардеробной, две детских спальни, санузел и постирочная комната. Квартира имеет свой собственный выход во внутренний двор. Патио.Отдельно можно приобрести 2 машиноместа по 19 метров в подземном паркинге. Принадлежит одному собственнику, обременений нет. В договоре указывается полная стоимость.
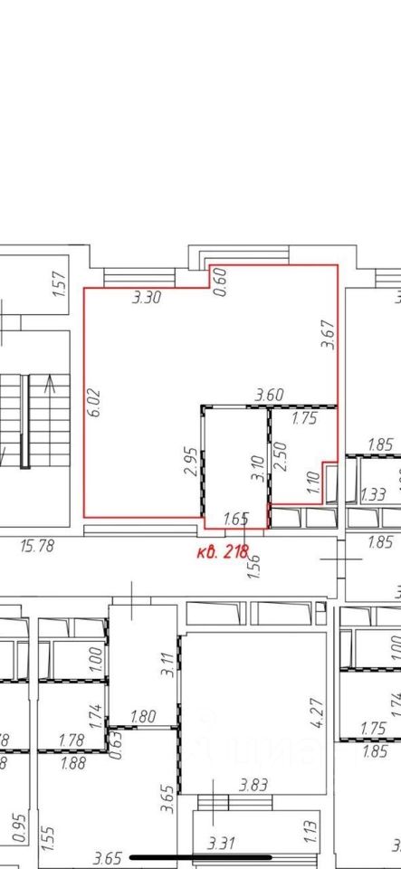
204 м2
1 / 6 этаж
Кирпич
  • Показать контакты
  • Добавить в избранное
204 м2
1 / 6 этаж
Кирпич
435 000 000 
2 132 353 /м2
1/42
3-к, Родионовская, 18 корп. 1 Показать на карте
Москва
Красивый дизайнерский ремонт и крайне удобная и функциональная планировка. Три комнаты - мастер спальня, детская и кухня-гостиная. Три гардеробной - при каждой спальне и при входе. Три санузла - при каждой спальне и гостиной. Хозяйственный блок - отдельные постирочная и кладовая комнаты. Абсолютно вся бытовая техника - стиральная, посудомоечная, кондиционеры и тп. Полностью мебилирована. Огорожненная территория ЖК из трех домов, все дома в ЖК малоэтажные -5 этажей, соответственно никаких проблем с парковкой непосредственно у дома никогда. Свободная продажа от первого собственника, цена в договоре полная, расчеты через банк без наличных и расписок. Агенты, риелторы, агентства, помощники, рекламщики, маркетологи, ПОЖАЛУЙСТА НЕ БЕСПОКОЙТЕСЬ - помощь не нужна!!! Общение только с реальным покупателем,.
115 м2
2 / 5 этаж
Панель
  • Показать контакты
  • Добавить в избранное
115 м2
2 / 5 этаж
Панель
37 500 000 
326 087 /м2
1/17
4-к, Ленинградский проспект, 37/5 Показать на карте
ЦСКА, 11 мин
Москва
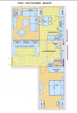
агентствам просьба не звонить, а писать в сообщения. В продаже уникальная семейная квартира с готовым премиальным ремонтом по эксклюзивному дизайн-проекту в корпусе Gorky Park Tower жилого квартала Prime Park.Ремонт делали для себя с большим вниманием к деталям и качеству, поэтому проект и работы заняли 2,5 года, а в отделке и обустройстве использованы только самые высококачественные и дорогие материалы и техника.Но изменились планы. В квартире никто не жил.Планировка: кухня-гостиная с островом, мастер-спальня с ванной комнатой и гардеробной, детская с санузлом, кабинет (или третья спальня), гостевой санузел, постирочная, гардеробная при входе и дополнительная гардеробная в мастер-блоке. Относительно планировочного решения от застройщика сделана небольшая перепланировка для дополнительного комфорта: добавлены гардеробная для верхней одежды при входе, гардеробная при мастер-спальне с дополнительной дверью, гостевая ванная комната и постирочная. Укладка пола выполнена из инженерной доски-техномассива дуба (с укладкой дополнительного фанерного слоя снизу), в прихожей, санузлах и кухне-гостиной более пяти сортов премиального керамогранита. Кухонный гарнитур и остров выполнены на заказ с обрамлением кварцевым агломератом Sapienstone dark marquina. Установлена бытовая техника от элитного бренда Kuppersbusch. В ванных смесители и сантехника от ведущих иностранных брендов.В квартире сделана собственная приточно-вытяжная вентиляция, чего нет в других квартирах в большинстве корпусов жк! Есть система климат-контроля с забором свежего воздуха с фасада.Оборудованы самые современные и высококачественные инженерные системы разводки воды и электричества с продуманным и удобным доступом. Разводка электричества выполнена под потолком в кабель-каналах. Сделана защита от протечек, а также шумоизоляция в спальнях (внешние стены). Теплые полы в прихожей, санузлах и в зоне кухни. Высота потолков 3,1 м.Покупателю будет передан готовый дизайн-проект со всей информацией и материалами для финализации дизайн-решений на свое усмотрение. Квартира имеет удачное расположение на высоком этаже и ориентирована в сторону центра города (Юго-Восток) и Москва-Сити (Юго-Запад), благодаря чему не только имеет отличные видовые характеристики на красивую панораму города, но также обеспечена естественным солнечным светом на протяжении всего дня! Prime Park — один из самых современных комплексов столицы у Петровского парка. Проект международного бюро Dyer с закрытой охраняемой территорией в 5,5 га, частным ландшафтным парком с аллеями, фонтанами и арт-объектами, консьерж-сервисом, валет-паркингом и развитой инфраструктура премиум-уровня. В комплексе предусмотрен фитнес с 25-метровым бассейном и СПА.
137 м2
37 / 41 этаж
  • Показать контакты
  • Добавить в избранное
137 м2
37 / 41 этаж
135 000 000 
978 970 /м2
1/13
1-к, Адмирала Лазарева, 28 Показать на карте
Москва
Продается уютная однокомнатная квартира площадью 35.6 кв. м, расположенная в панельном доме 2001 года постройки. Квартира находится на первом этаже 12-этажного дома.В квартире выполнен косметический ремонт. Санузел раздельный. Район предлагает все необходимое для комфортной жизни: рядом находятся школы, детские сады, поликлинники и магазины.Один взрослый собственник, без обременений.
35 м2
1 / 12 этаж
Панель
  • Показать контакты
  • Добавить в избранное
35 м2
1 / 12 этаж
Панель
12 300 000 
345 506 /м2
    1/22
    1-к, Старокрымская, 15 корп. 2 Показать на карте
    Москва
    Коллеги и покупатели вашему вниманию видовая однушка рядом с лесом. Куплена у застройщика, один взрослый собственник, никто не прописан. Продажа с мебелью и техникой. На оставшиеся вопросы отвечу по телефону или в сообщениях.
    42 м2
    11 / 26 этаж
    Монолит
    • Показать контакты
    • Добавить в избранное
    42 м2
    11 / 26 этаж
    Монолит
    16 300 000 
    386 256 /м2
      1/12
      2-к, Авангардная, 14 Показать на карте
      Москва
      Один взрослый собственник. Прописанных нет, Свободная продажа, Квартира под ремонт В услугах агента не нуждаемся.
      40 м2
      5 / 5 этаж
      Кирпич
      • Показать контакты
      • Добавить в избранное
      40 м2
      5 / 5 этаж
      Кирпич
      13 900 000 
      344 059 /м2
        1/17
        1-к, Дмитровское шоссе, 169 корп. 3 Показать на карте
        Москва
        Продаётся светлая и функциональная 1-комнатная квартира.Отличный вариант как для проживания, так и для инвестиций. Единственный собственник. В квартире:— сделан ремонт— удобная планировка— окна c видом на парк, нет шума дорог— есть утеплённая лоджия, подведён тёплый пол. использовалась как рабочий кабинет даже в сильные морозы— организованы места хранения за пределами квартиры (стеллаж и кронштейн для велосипеда)общее состояние: 5-. Можно жить прямо сейчас. Кухня:— кухонный гарнитур— варочная панель Electrolux— духовой шкаф Indesit— холодильник Whirlpool— встроенная посудомоечная машина Bosch Дом:— чистый подъезд— установлен домофон— парковка во дворе, есть опция платной парковки: 5к в месяц у частника и 3,5к в месяц от города. Рядом:— магазины, школы, детские сады— ТЦ с с фитнес-залом DDX— недавно отремонтированный парк Транспорт:— удобный выезд на Дмитровское шоссе— до метро Физтех: 10 минут пешком Прошу связаться со мной в любом из мессенджеров . Звонок может не пройти антиспам.
        34 м2
        15 / 17 этаж
        Монолит
        • Показать контакты
        • Добавить в избранное
        34 м2
        15 / 17 этаж
        Монолит
        15 300 000 
        444 767 /м2
          1/12
          2-к, Волжский бульвар, 13 Показать на карте
          Москва
          В продаже двухкомнатная квартира в отличном состоянии (евроремонт). Комнаты изолированы, 2 балкона на обе стороны, большая кухня и просторный коридор. Чистый подъезд с консьержем, грузовой и пассажирский лифт. Отличная местоположение, вся инфраструктура в шаговой доступности. Магазины, школа, детский садик, детские и спортивные площадки, торговый центр, МФЦ, полиция, поликлиника, прогулочная зона, пункты выдачи интернет товаров. Остановки общественного транспорта возле дома. во дворе всегда найдётся место для парковки. В 10 минутах на машине Лемана Про, кинотеатр и парк Кузьминки. До метро Текстильщики 12 минут пешком. Обременений нет, один взрослый собственник. Просмотр по предварительной договоренности. Собственник. В помощи агентов не нуждаюсь.Звонить и писать с 9 до 21.
          56 м2
          8 / 17 этаж
          Панель
          • Показать контакты
          • Добавить в избранное
          56 м2
          8 / 17 этаж
          Панель
          18 500 000 
          330 357 /м2
            1/23
            2-к, Островитянова, 30 корп. 2 Показать на карте
            Москва
            Уютная светлая тихая 2х комнатная квартира в отличном районе 2 минуты до метро Коньково! Супер локация! Хорошие соседи! Чистый ухоженный подъезд с ремонтом, новый лифт, чистый двор. Вблизи дома много магазинов, кафе, пунктов выдачи, аптеки, школы. Отлично подойдёт для проживания небольшой семье или отличный вариант для сдачи в аренду. Документы ДКП в собственности 10 лет, 1 взрослый собственник, юридически чистая квартира, материнский капитал не использовался, быстрая сделка!Просьба!! писать в сообщениях! Для конкретно заинтересованных покупателей свяжемся в удобных для вас мессенджерах
            44 м2
            3 / 9 этаж
            Панель
            • Показать контакты
            • Добавить в избранное
            44 м2
            3 / 9 этаж
            Панель
            19 500 000 
            441 176 /м2
              1/28
              2-к, Парковая 16-я, 55 корп. 1 Показать на карте
              Москва
              Уютная двухкомнатная квартира рядом с м.Щелковская с дизайнерским ремонтом, 2 совершеннолетних собственника.Вся мебель ОСТАНЕТСЯ в квартире, заберемтолько технику.Косметический ремонт сделан в 2023 году, полы, батареи, трубы отопления и мебель меняли в 2025. Ремонт делали под себя, поэтому квартира максимально уютная. 2 изолированные комнаты, в зале огромный диван и рабочее место, в спальне - большая кровать, шкаф для двоих, туалетный столик, много места для хранения вещей.На этаже тихие соседи, подьезд чистый и светлый. Двор после ремонта, с новой детской и спортивной площадкой.Квартира в хорошем благоустроенном районе, рядом школы и детские сады, магазины, пункты выдачи, напротив дома - торговый центр с магазинами, кинотеатром и фуд-кортом. В 2 минутах ходьбы автобусная остановка, от которой можно за 7-10 минут доехать до м. Щелковская и за 20 до м. Черкизовская и мцк Локомотив.Звоните до 22.
              48 м2
              8 / 9 этаж
              • Показать контакты
              • Добавить в избранное
              48 м2
              8 / 9 этаж
              17 000 000 
              349 076 /м2
                1/5
                1-к, Усадебный Парк, 1 Показать на карте
                Москва
                Студия 19,9 м² с мебелью и техникой у леса — Московская прописка!О квартире:Новая студия на комфортном 3 этаже. косметический ремонт, мебель и техника включены в стоимость — заезжайте сразу или сдавайте в аренду (спрос высокий!). Окна выходят во двор — тишина и чистый воздух гарантированы.Преимущества локации:Природа: ЖК окружен Валуевским лесопарком. Идеально для прогулок и спорта.Транспорт: Остановка в 1 минуте пешком. 15 минут до метро Филатов Луг. Удобные выезды на Киевское и Калужское шоссе.Всё рядом: На территории ЖК уже работают школа, детский сад, сетевые магазины, аптеки и пункты выдачи (Ozon, WB).
                19 м2
                3 / 10 этаж
                Монолит
                • Показать контакты
                • Добавить в избранное
                19 м2
                3 / 10 этаж
                Монолит
                7 950 000 
                399 497 /м2
                  1/8
                  1-к, Генерала Белобородова, 12 Показать на карте
                  Москва
                  Продается однокомнатная квартира под ремонт.Расположение отличное, рядом есть абсолютно все от Глобуса до Серфинга.Чистый подъезд, тихие соседи и окна выходящие в благоустроенный двор с детской. Прямая продажа от собственника, все документы готовы к быстрому выходу на сделку. В квартире наполовину выполнены черновые работы по капитальному ремонту с имеющимся дизайн-проектом. Новые радиаторы, электрика и входная дверь.Посредников не беспокоить.
                  36 м2
                  9 / 17 этаж
                  Панель
                  • Показать контакты
                  • Добавить в избранное
                  36 м2
                  9 / 17 этаж
                  Панель
                  13 400 000 
                  366 120 /м2
                    1/35
                    1-к, Дмитровское шоссе, 70 Показать на карте
                    Москва
                    Всего 3 минуты пешком от метро Верхние Лихоборы (Люблинско-Дмитровская линия). Выход из дома — и вы в городе, но окна не выходят на шумную магистраль. Площадь: 39.6 кв.м — просторная кухня 9,8 кв.м. и комната 19,5 кв.м. Этаж: 2 (идеальный баланс: не высоко, но и не сырой 1-й).. Высота потолков 2,7м. Окна во двор: Здесь всегда тихо. Нет гула трассы и пыли от дороги. Большая лоджия (остеклена). Есть два отдельных выхода: из кухни и из комнаты. • В доме есть мусоропровод. Юридическая чистота: Один собственник (взрослый дееспособный человек). Полная стоимость квартиры будет указана в Договоре купли-продажи (ДКП). Никаких завышенных кадастровых цен и скрытых доплат. Готов к показу! Звоните, приходите смотреть! В помощи услуг риелтора не нуждаюсь!
                    39 м2
                    2 / 25 этаж
                    Бетонные блоки
                    • Показать контакты
                    • Добавить в избранное
                    39 м2
                    2 / 25 этаж
                    Бетонные блоки
                    20 000 000 
                    505 051 /м2
                      1/10
                      1-к, Планерная, 14 корп. 2 Показать на карте
                      Москва
                      Продаётся уютная однокомнатная квартира в Москве, в шаговой доступности от метро Планерная (2 минуты).В квартире выполнен косметический ремонт. Установлены пластиковые окна.Дом находится в тихом и зелёном районе с развитой инфраструктурой: рядом магазины, школы, детские сады, поликлиники и зоны для прогулок. Чистый подъезд, доброжелательные соседи. Во дворе есть парковочные места.Идеальный вариант как для собственного проживания, так и для сдачи в аренду.В помощи продажи квартиры не нуждаемся. Огромная просьба риэлторов и различных помогаторов не беспокоить.
                      32 м2
                      6 / 9 этаж
                      Панель
                      • Показать контакты
                      • Добавить в избранное
                      32 м2
                      6 / 9 этаж
                      Панель
                      13 300 000 
                      407 975 /м2
                        1/14
                        3-к, Ильменский проезд, 14 корп. 3 Показать на карте
                        Москва
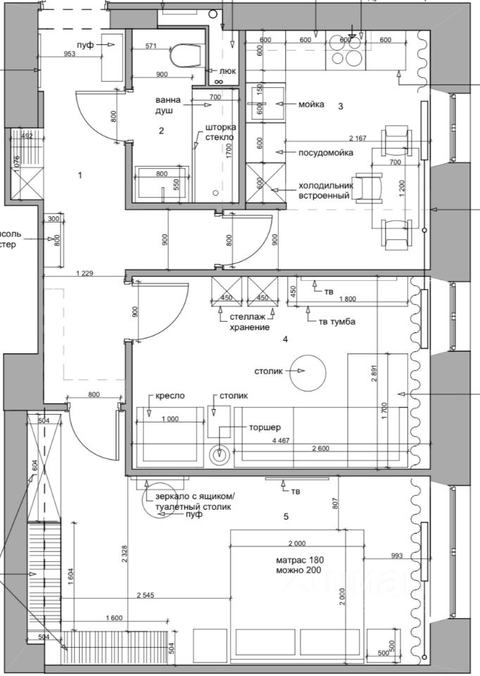
                        Продаётся светлая и теплая 3-х комнатная квартира от собственника! Без мат капитала, взрослые собственники, полная цена в договоре!38/45 этаж, две изолированные комнаты и большая кухня-гостиная. В квартире панорамное остекление, прекрасные виды на Дмитровское шоссе и во двор. Сделан дизайнерский ремонт с использование качественных материалов (испанский керамогранит, немецкий ламинат). В квартире остаётся премиальная бытовая техника, мебель различные европейских марок.Для комфортного проживания в квартире установлена система Умный дом, позволяющая управлять светом/водой/радиаторами с мобильного устройства. Дополнительно в комнатах функционирует тёплый пол. Жилой комплекс Селигер Сити входит в десятку лучших ЖК для семей с детьми. На территории имеется большой декоративный водоем. Допуск на территорию ограничен и производится по биометрическим данным. Придомовая территория оснащена всем необходимым для игр детей разных возрастов, зеленые и просторный двор занимает 2,5 га. В пешей доступности метро Селигерская, более 7 продуктовых магазинов, аптеки, фитнес-клубы (в т.ч. с бассейном), пункты выдачи заказов различных маркетплейсов, два больших торговых центра. В доме имеется несколько сетевых кофейн и булочная. Напротив ЖК парк Святослава Фёдорова, в пешей доступности парк Ангарские пруды.ия и праздничные мероприятия для детей.
                        64 м2
                        38 / 43 этаж
                        Монолит
                        • Показать контакты
                        • Добавить в избранное
                        64 м2
                        38 / 43 этаж
                        Монолит
                        35 200 000 
                        547 434 /м2
                          1/18
                          2-к, Высоковольтный проезд, 1 корп. 7 Показать на карте
                          Москва
                          Просторная светлая квартира в тихом районе. В квартире свежий ремонт из качественных материалов, новая мебель, встроенные шкафы-купе в гостиной и спальне. В кухне выделен остров с плитой и вытяжкой, барная стойка. Новая кухонная техника (индукционная плита, посудомойка, духовка, стиральная машина). С кухни выход на просторную лоджию со встроенным шкафом.В квартире установлено 2 кондиционера, хорошее освещение, большое количество розеток. Санузел оснащен теплым полом, имеется бойлер на период отключения горячей воды.Функциональная прихожая.Квартира в хорошем монолитном доме, опрятная входная группа, консьерж и видеодомофон. В шаговой доступности магазины, остановка общественного транспорта, школы, детские клубы и сады. Большое количество парковочных мест. В пешей доступности шикарный экопарк Яуза, близко до Ботанического сада и ВДНХ.Квартира без обременений, один взрослый собственник, свободная продажа.
                          58 м2
                          7 / 25 этаж
                          Монолит
                          • Показать контакты
                          • Добавить в избранное
                          58 м2
                          7 / 25 этаж
                          Монолит
                          21 500 000 
                          365 025 /м2
                            • 1
                            • 2
                            • 3
                            • 4
                            • 5
                            • Следующая
                            Распечатать
                            Продажа квартир в Москве
                            • по районам
                            • Замоскворечье
                            • Тверской
                            • Хамовники
                            • Войковский
                            • Головинский
                            • Молжаниновский
                            • Алексеевский
                            • Марфино
                            • Свиблово
                            • Вешняки
                            • Измайлово
                            • Перово
                            • Капотня
                            • Лефортово
                            • Печатники
                            • Братеево
                            • Нагорный
                            • Чертаново Центральное
                            • Котловка
                            • Ясенево
                            • Можайский
                            • Ново-Переделкино
                            • Тропарёво-Никулино
                            • Фили-Давыдково
                            • Строгино
                            • Старое Крюково
                            • Красносельский
                            • Якиманка
                            • Дмитровский
                            • Савёловский
                            • Алтуфьевский
                            • Марьина Роща
                            • Северный
                            • Северное Медведково
                            • Восточный
                            • Косино-Ухтомский
                            • Преображенское
                            • Северное Измайлово
                            • Кузьминки
                            • Люблино
                            • Рязанский
                            • Даниловский
                            • Орехово-Борисово Северное
                            • Чертаново Южное
                            • Ломоносовский
                            • Северное Бутово
                            • Внуково
                            • Очаково-Матвеевское
                            • Куркино
                            • Хорошёво-Мнёвники
                            • Силино
                            • Мещанский
                            • Аэропорт
                            • Западное Дегунино
                            • Сокол
                            • Бабушкинский
                            • Бутырский
                            • Останкинский
                            • Южное Медведково
                            • Восточное Измайлово
                            • Метрогородок
                            • Соколиная Гора
                            • Марьино
                            • Текстильщики
                            • Донской
                            • Орехово-Борисово Южное
                            • Академический
                            • Гагаринский
                            • Обручевский
                            • Тёплый Стан
                            • Дорогомилово
                            • Проспект Вернадского
                            • Митино
                            • Щукино
                            • Крюково
                            • Арбат
                            • Пресненский
                            • Беговой
                            • Коптево
                            • Тимирязевский
                            • Ховрино
                            • Бибирево
                            • Лианозово
                            • Отрадное
                            • Ярославский
                            • Гольяново
                            • Новогиреево
                            • Сокольники
                            • Некрасовка
                            • Южнопортовый
                            • Зябликово
                            • Нагатино-Садовники
                            • Царицыно
                            • Зюзино
                            • Черёмушки
                            • Крылатское
                            • Раменки
                            • Покровское-Стрешнево
                            • Южное Тушино
                            • Матушкино
                            • Басманный
                            • Таганский
                            • Бескудниковский
                            • Восточное Дегунино
                            • Левобережный
                            • Хорошёвский
                            • Лосиноостровский
                            • Ростокино
                            • Богородское
                            • Ивановское
                            • Новокосино
                            • Выхино-Жулебино
                            • Нижегородский
                            • Бирюлёво Восточное
                            • Бирюлёво Западное
                            • Москворечье-Сабурово
                            • Нагатинский Затон
                            • Чертаново Северное
                            • Коньково
                            • Южное Бутово
                            • Кунцево
                            • Солнцево
                            • Филёвский Парк
                            • Северное Тушино
                            • Савёлки
                            • 10-й
                            • 11-й
                            • 12-й
                            • 14-й
                            • 15-й
                            • 16-й
                            • 17-й
                            • 18-й
                            • 19-й
                            • 2-й
                            • 20-й
                            • 21-й
                            • 22-й
                            • 23-й
                            • 3-й
                            • 4-й
                            • 5-й
                            • 6-й
                            • 7-й
                            • 8-й
                            • 9-й
                            • Внуковское
                            • Вороновское
                            • Воскресенское
                            • Восточный округ
                            • Город Зеленоград округ
                            • Град Московский
                            • Десёновское
                            • Западный округ
                            • Киевский
                            • Клёновское
                            • Кокошкино
                            • Краснопахорское
                            • Марушкинское
                            • Михайлово-Ярцевское
                            • Московский
                            • Московский
                            • Мосрентген
                            • Новая Москва
                            • Новомосковский округ
                            • Новофёдоровское
                            • Панфиловский
                            • Первомайское
                            • Первый Московский Город-Парк
                            • Роговское
                            • Рязановское
                            • Северный округ
                            • Северо-Восточный округ
                            • Северо-Западный округ
                            • Сосенское
                            • Троицкий округ
                            • Филимонковское
                            • Центральный округ
                            • Щаповское
                            • Щербинка
                            • Юго-Восточный округ
                            • Юго-Западный округ
                            • Южный округ
                            • по метро
                            • Авиамоторная
                            • Автозаводская
                            • Академическая
                            • Александровский сад
                            • Алексеевская
                            • Алтуфьево
                            • Аннино
                            • Арбатская
                            • Аэропорт
                            • Бабушкинская
                            • Багратионовская
                            • Баррикадная
                            • Бауманская
                            • Беговая
                            • Белорусская
                            • Беляево
                            • Бибирево
                            • Библиотека им. Ленина
                            • Новоясеневская
                            • Боровицкая
                            • Ботанический сад
                            • Братиславская
                            • Бульвар Адмирала Ушакова
                            • Бульвар Дмитрия Донского
                            • Бунинская аллея
                            • Варшавская
                            • ВДНХ
                            • Владыкино
                            • Водный стадион
                            • Войковская
                            • Волгоградский проспект
                            • Волжская
                            • Воробьевы горы
                            • Выхино
                            • Выставочная
                            • Динамо
                            • Дмитровская
                            • Добрынинская
                            • Домодедовская
                            • Дубровка
                            • Измайловская
                            • Калужская
                            • Кантемировская
                            • Каховская
                            • Каширская
                            • Киевская
                            • Китай-город
                            • Кожуховская
                            • Коломенская
                            • Комсомольская
                            • Коньково
                            • Красногвардейская
                            • Красносельская
                            • Красные ворота
                            • Крестьянская застава
                            • Кропоткинская
                            • Крылатское
                            • Кузнецкий мост
                            • Кузьминки
                            • Кунцевская
                            • Курская
                            • Кутузовская
                            • Ленинский проспект
                            • Лубянка
                            • Люблино
                            • Марксистская
                            • Марьино
                            • Маяковская
                            • Медведково
                            • Международная
                            • Менделеевская
                            • Молодежная
                            • Нагатинская
                            • Нагорная
                            • Нахимовский проспект
                            • Новогиреево
                            • Новокузнецкая
                            • Новослободская
                            • Новые Черемушки
                            • Октябрьская
                            • Октябрьское поле
                            • Орехово
                            • Отрадное
                            • Охотный ряд
                            • Павелецкая
                            • Парк Культуры
                            • Парк Победы
                            • Партизанская
                            • Первомайская
                            • Перово
                            • Петровско-Разумовская
                            • Печатники
                            • Пионерская
                            • Планерная
                            • Площадь Ильича
                            • Площадь Революции
                            • Полежаевская
                            • Полянка
                            • Пражская
                            • Преображенская площадь
                            • Пролетарская
                            • Проспект Вернадского
                            • Проспект Мира
                            • Профсоюзная
                            • Пушкинская
                            • Речной вокзал
                            • Рижская
                            • Римская
                            • Рязанский проспект
                            • Савеловская
                            • Свиблово
                            • Севастопольская
                            • Семеновская
                            • Серпуховская
                            • Смоленская
                            • Сокол
                            • Сокольники
                            • Спортивная
                            • Сретенский бульвар
                            • Студенческая
                            • Сухаревская
                            • Сходненская
                            • Таганская
                            • Тверская
                            • Театральная
                            • Текстильщики
                            • Теплый Стан
                            • Тимирязевская
                            • Третьяковская
                            • Трубная
                            • Тульская
                            • Тургеневская
                            • Тушинская
                            • Улица 1905 года
                            • Улица Академика Янгеля
                            • Улица Горчакова
                            • Бульвар Рокоссовского
                            • Улица Скобелевская
                            • Улица Старокачаловская
                            • Университет
                            • Филевский парк
                            • Фили
                            • Фрунзенская
                            • Царицыно
                            • Цветной бульвар
                            • Черкизовская
                            • Чертановская
                            • Чеховская
                            • Чистые пруды
                            • Чкаловская
                            • Шаболовская
                            • Шоссе Энтузиастов
                            • Щелковская
                            • Щукинская
                            • Электрозаводская
                            • Юго-Западная
                            • Южная
                            • Ясенево
                            • Краснопресненская
                            • Строгино
                            • Славянский бульвар
                            • Мякинино
                            • Волоколамская
                            • Митино
                            • Марьина роща
                            • Достоевская
                            • Шипиловская
                            • Зябликово
                            • Борисово
                            • Новокосино
                            • Пятницкое шоссе
                            • Алма-Атинская
                            • Жулебино
                            • Лермонтовский проспект
                            • Деловой центр
                            • Лесопарковая
                            • Битцевский парк
                            • Спартак
                            • Улица Сергея Эйзенштейна
                            • Выставочный центр
                            • Улица Академика Королева
                            • Телецентр
                            • Улица Милашенкова
                            • Тропарево
                            • Котельники
                            • Технопарк
                            • Румянцево
                            • Саларьево
                            • Фонвизинская
                            • Бутырская
                            • Хорошёво
                            • Зорге
                            • Панфиловская
                            • Стрешнево
                            • Балтийская
                            • Коптево
                            • Лихоборы
                            • Окружная
                            • Ростокино
                            • Белокаменная

                            Вместе с этим также ищут:

                            Продажа квартир в Москве Продажа однокомнатных квартир в Москве Продажа комнат в Москве Продажа гаражей в Москве Продажа вторички - квартиры в Москве Квартиры в новостройках в Москве

                            🏠 Как купить квартиру в Москве на N1?

                            • ✔ В поисках объявления о продаже или покупке квартир в Москве?
                            • ✔ На N1 размещены 2,67 тыс квартир
                            • ✔ Чтобы купить или продать недвижимость, воспользуйтесь формой поиска, фильтрами или быстрыми ссылками.

                            💸 Сколько стоит квартира в Москве?

                            • 🟢 Средняя цена продажи квартир - 27,09 млн ₽
                            • 🟢 Минимальная стоимость за 1 м2: 455,70 тыс ₽

                            📚 Какая площадь квартир?

                            • Наибольшая площадь: 329 м²
                            • Минимальная площадь: 11 м²