logo
N1.RU — новая улучшенная версия Е1.Недвижимость
Чтобы вернуться на старый сайт Е1.Недвижимость, перейдите по ссылке в нижней части сайта N1.RU
  • Продажа
  • Аренда
  • Новостройки
  • Журнал
  • Компании
  • Шаблоны документов
  • Налоговый вычет
  • Еще
  • Личный кабинет
    • Регистрация на Циан
    • Москва
  • Добавить объявление
Тип недвижимости
Москва
Начните вводить или выберите объект в выпадающем списке
  • Метро
  • Район и микрорайон
Количество комнат
Цена
  1. Недвижимость в Москве
  2. Продажа
  3. Квартиры
  4. 16501 объявление

Продажа двухкомнатных квартир в Москве

  • Новостройки9 343
  • Вторичка7 158
  • Без посредников569
За все время
Сортировка по умолчанию
СпискомСписком
ТаблицейТаблицей
На картеНа карте
Открыть поиск по карте

По вашему запросу объявлений не найдено

1/7
2-к, Волоколамское шоссе, 97 Показать на карте
Трикотажная, 5 мин
Москва
Арт. 127350721 Продается 2-комн. квартира, 39,5 м² , 6/53 этаж, в ЖК City Bay (Сити Бэй), квартал Атлантик. Мастер-спальня-11,6 кв. м. с санузлом, кухня-гостиная 21,1 кв.м. с изолированной нишей под кухню, гостевой санузел, высота потолков 3 метра и панорамное остекление в пол. Отделка-качественный White Box от застройщика. Свободная продажа.
39 м2
6 / 53 этаж
Монолит
  • Показать контакты
  • Добавить в избранное
39 м2
6 / 53 этаж
Монолит
17 500 000 
443 038 /м2
    1/15
    2-к, Мантулинская, 9 корп. 3 Показать на карте
    Москва
    Продается уютная квартира в премиальном ЖК City Park О квартире:Современный дизайн. Каждый сантиметр пространства спроектирован максимально функционально. Просторная гостиная с зоной кухни. Планировка максимально удобная.Преимущества ЖК:+ Всего 2 минуты пешком до парка ''Красная Пресня'' + Рядом Красногвардейские пруды (5 тематических зон), прогулочные аллеи с вековыми деревьями, летний кинотеатр, концерты классической музыки, фестивали.+ Благоустроенная внутренняя территория: террасные сады, велодорожки, беговые трассы, зоны отдыха.+ Близость к Москве-Сити , ЦМТ, ТРЦ ''Афимолл'', ресторанам, кофейням, спорт-студиям и бизнес-центрам.Транспортная доступность— В шаговой доступности: метро ''Деловой центр'' , ''Улица 1905 года'' , ''Киевская''— 5 минут до Москва-Сити— 5 минут до ТТК— 10 минут до Садового кольца— 15 минут до КремляКвартира продаётся без обременений.Все документы полностью готовы к сделке.Звоните! Быстро организую просмотром и отвечу на все Ваши вопросы
    57 м2
    7 / 10 этаж
    Монолит
    • Показать контакты
    • Добавить в избранное
    57 м2
    7 / 10 этаж
    Монолит
    55 000 000 
    964 912 /м2
      1/12
      2-к, Васильцовский Стан, 11 Показать на карте
      Москва
      В продаже 2-х комнатная квартира Васильцовский стан 11.площадь 61,4 в монолитном доме.комнаты 14,18, кухня 10 су раздельный, гардеробная, установлены кондиционеры , окна ориентированы во двор, консьерж, есть возможность аренды машиноместа в многоуровневом паркинге.Свободная продажа, 2 взрослых собственника ЖК Волжский построен в 2007гМетро - Кузьминки Текстильщики ,Окская Нижегородская- до всех примерно 20 мин пешком, есть много автобусов Три школы, детские садыВ жк городской спорткомплекс НИКА с бассейном баскетбольными залами
      61 м2
      2 / 23 этаж
      Панель
      • Показать контакты
      • Добавить в избранное
      61 м2
      2 / 23 этаж
      Панель
      19 900 000 
      324 104 /м2
        1/13
        2-к, Большая Садовая, 1 Показать на карте
        Маяковская, 7 мин
        Москва
        Арт. 127626693 Прислушайтесь! Здесь бьётся сердце столицы! Предлагаем Вам к покупке квартиру в исторической части города, на Большой Садовой в кирпичном доме 1939 года постройки. Эта улица - не только часть литературной и культурной жизни, но и ее важная историко-политическая сторона. Ведь Большая Садовая примыкает к Триумфальной площади, где ставились триумфальные ворота для встреч императоров и полководцев. Полностью обновленные коммуникации и дизайнерский ремонт.Окна в пол и 3 балкона! Театры, музеи, Патриаршие пруды, до Кремля 30 минут пешком! КУХНЯ - ГОСТИНАЯРазделена на 2 зоны, место для отдохновения от дел житейских и зона готовки.Здесь есть и кцхонный гарнитур и столовая группа. Есть место для вечерних посиделок с чашклй ароматного чая и, конечно, гордость этой квартиры - двойной балкон! Потолки - 3,2 м, окна в пол дают ощущение пространства и статуса, а вид на утреннюю (или вечернюю) Москву - приносит дзен. Есть система охлаждения. СПАЛЬНЯ Настояшее место силы! Спальный гарнитур и места для хранения из дерева, камин. И... третий балкон! Здесь можно насладиться бликами солнца, или вечерними звуками города под потрескивание камина. С/УПросторный санузел, здесь есть и места хранения и даже мини-постирочная. Можно принимать утренний душ под звуки любимой музыки! ПРИХОЖАЯЗдесь есть всё нужное. Как место для одежды и обуви, так и для чемоданов. Можно организовать отдельное место для питомца. Огороженная территория. Есть места для парковки. Свободная продажа. Один взрослый собственник.
        56 м2
        4 / 8 этаж
        Кирпич
        • Показать контакты
        • Добавить в избранное
        56 м2
        4 / 8 этаж
        Кирпич
        67 000 000 
        1 194 296 /м2
          1/12
          2-к, Кировоградская, 28 корп. 2 Показать на карте
          Москва
          Впервые в продаже двухкомнатная квартира требующая ремонта, в 3 минутах пешком от метро Пражская. Квартира очень теплая. Соседи приличные. Въезд во двор через шлагбаум. Показы по выходным. Также рассмотрим обмен на студию с ремонтом в любом районе Москвы в домах постройки от 2015 года.
          44 м2
          9 / 9 этаж
          • Показать контакты
          • Добавить в избранное
          44 м2
          9 / 9 этаж
          13 500 000 
          305 430 /м2
            1/3
            2-к, Василия Ланового, 3 Показать на карте
            Москва
            Продается уютная двухкомнатная квартира в новом доме, построенном в 2024 году. Общая площадь составляет 43 кв. м, кухня — 10 кв. м. Квартира расположена на 4 этаже 36-этажного дома. Окна выходят во двор, поэтому в квартире тихо и спокойно. Квартира без отделки, что дает вам возможность воплотить все свои дизайнерские идеи и создать интерьер по своему вкусу. Это отличный вариант для тех, кто хочет сделать ремонт именно под себя и создать уникальное пространство.Дом новый, с современными коммуникациями. В подъезде предусмотрены один пассажирский и один грузовой лифт, поэтому можно без проблем подниматься даже с тяжелыми вещами. Район обжитой, рядом есть все необходимое для комфортной жизни: школы, детские сады, клиники и магазины.Удобное расположение — всего 15 минут пешком до станции метро Аминьевская. Это позволит быстро добираться до работы или других районов города.Квартира продается без обременений, поэтому сделка будет быстрой и простой. Возможна ипотека, что открывает дополнительные возможности для покупки.Приглашаем вас на просмотр, чтобы лично оценить все преимущества этой квартиры. Записывайтесь на удобное время и приезжайте!
            43 м2
            4 / 36 этаж
            • Показать контакты
            • Добавить в избранное
            43 м2
            4 / 36 этаж
            30 000 000 
            697 674 /м2
              1/12
              2-к, Тайнинская, 14 Показать на карте
              Москва
              Чистая,светлая квартира.Комнаты из,окна стеклопакеты,два кондиционера,окна во двор.Один взрослый собственник,полная цена в договоре,возможна ипотека,без арестов,без долгов.Вся инфраструктура на районе,ключи на руках.Свободная продажа,быстрый выход на сделку.
              42 м2
              2 / 9 этаж
              Кирпич
              • Показать контакты
              • Добавить в избранное
              42 м2
              2 / 9 этаж
              Кирпич
              13 500 000 
              321 429 /м2
                1/21
                2-к, Ельнинская, 20 корп. 1 Показать на карте
                Москва
                Вашему вниманию представлена просторная двухкомнатная квартира с изолированными комнатами в современном доме 2006 года постройки в непосредственной близости от ст. м. Молодежная в экологически чистом, престижном и благоприятном районе ЗАО Москвы.Прекрасный зеленый двор с детскими и спортивными площадками, а также с огороженной площадкой для выгула собак. Высокий этаж, хорошая входная группа, консьерж, чистый подъезд, интеллигентные соседи.Просторные комнаты 19-14 кв.м, кухня 10 кв.м, вместительный холл, также имеется большой остекленный балкон из большой комнаты, раздельный санузел. В квартире выполнен качественный ремонт (делали для себя). В стоимость входит встроенный кухонный гарнитур, шкафы в холле и комнате. Развитая инфраструктура района, сочетающаяся с близостью к природе (рядом Суворовский и Солдатенковские парки с озером, усадьба Нарышкиных, спортивный Комплекс Крылатское, Гребной канал, природно исторический парк Москворецкий) и удобной транспортной развязкой.Полная стоимость в договоре, один взрослый собственник. Без обременений и перепланировок. Под ипотеку подходит.
                53 м2
                11 / 17 этаж
                Панель
                • Показать контакты
                • Добавить в избранное
                53 м2
                11 / 17 этаж
                Панель
                21 600 000 
                402 985 /м2
                  1/23
                  2-к, Донской 5-й проезд, 21 корп. 14 Показать на карте
                  Москва
                  Артикул: 540737Продаётся уютная 2-комнатная квартира на 1 этаже 5-этажного кирпичного дома в одном из самых престижных районов Москвы по адресу: 5-й Донской проезд, д. 21, к14.Редкое предложение для комфортной жизни и перспективного инвестирования.Если вы ищете квартиру в центре Москвы, но при этом цените тишину, зелень и статусную локацию — этот вариант точно заслуживает внимания.Чистый подъезд, спокойные соседи, ухоженный двор с детской площадкой и парковочными местами.Одна из самых культурных и престижных частей Москвы.Воробьёвы горы, Нескучный сад и набережная Москвы-реки — в шаговой доступности.Зелёно, тихо и при этом максимально удобно для жизни и работы в центре города.О квартиреКвартира чистая, ухоженная и полностью готова к проживанию.Ремонт выполнен в 2020 году, делали для себя. -изолированные комнаты -пластиковые окна -натяжные потолки -ламинат на полу -раздельный санузел -металлическая входная дверь -установлены счётчики воды -централизованный газ -мебель остаётся — заезжай и живиИнвестиционный потенциал: В настоящее время в доме проходит капитальный ремонт, что повышает общее состояние здания и его рыночную стоимость. Квартира также интересна со стороны инвестирования: возможна перспектива включения дома в программу реновации. Транспортная доступность: -10 минут пешком до метро *Ленинский проспект* и МЦК *Площадь Гагарина* -быстрый выезд на Ленинский проспект и ТТК -удобные маршруты автобусов 196, 317 и трамваев 14, 39, Т1 -быстрый доступ в центр города Всё рядом: -детские сад и школа 192 -детская и взрослая поликлиники -ТЦ ''Гагаринский'', магазины -вся городская инфраструктура в пешей доступности Легко купить: -1 взрослый собственник -без долгов и обременений -быстрый выход на сделку -показ в удобное для вас время -подходит под ипотеку, сертификаты, материнский капиталДоступна ипотечная ставка под 12.99 %Звоните — с удовольствием отвечу на вопросы и организую просмотр.Номер объекта: #1/540737/21771
                  42 м2
                  1 / 5 этаж
                  Кирпич
                  • Показать контакты
                  • Добавить в избранное
                  42 м2
                  1 / 5 этаж
                  Кирпич
                  16 500 000 
                  387 324 /м2
                    1/10
                    2-к, Маршала Бирюзова, 22 корп. 1 Показать на карте
                    Москва
                    Уютная, атмосферная двухкомнатная квартира в сталинском доме с высокими потолками. Полностью меблирована, мебель входит в стоимость квартиры. Один Собственник, полная стоимость в ДКП. Дом после ремонта, интеллигентные соседи, закрытый двор, всегда есть места для парковки.Лучшие школы, детские сады в шаговой доступности.Зоны для прогулок, парки.Лучший район для проживания.Небольшой торг предусмотрен.Возможен обмен на однокомнатную квартиру в этом районе.
                    48 м2
                    4 / 5 этаж
                    Кирпич
                    • Показать контакты
                    • Добавить в избранное
                    48 м2
                    4 / 5 этаж
                    Кирпич
                    19 400 000 
                    400 826 /м2
                      1/12
                      2-к, Бориса Пастернака (п Внуковское), 33 корп. 2 Показать на карте
                      Москва
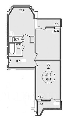
                      Никита Алексеевич. Квартира распашонка находится на 6 этаже 17-этажного панельного дома типовой серии П44К, построенного в 2017 году. Площадь квартиры составляет 59,4 кв.м, жилая площадь 33,2 кв.м, площадь кухни 12,9 кв.м., кухня с эркером, высота потолков 2,74 метра. Ремонт от застройщика. Окна пластиковые, металлическая дверь, 2 балкона застекленные. Свободная прямая продажа. 2 взрослых собственника. Более 5 лет в собственности. Полная цена в договоре. Документы собраны и готовы к сделке. Возможна ипотека. Никто не прописан и не проживает, квартира не сдавалась и не сдается в аренду. Хорошие тихие соседи.ЖК Переделкино Ближнее Город-парк. Новомосковский округ, район Внуково. Дом находится в отличном состоянии, оборудован пассажирским и грузовым лифтами, а также пандусом. Для автолюбителей предусмотрена наземная парковка. В доме подключён интернет.Район обладает развитой инфраструктурой: рядом находятся школы, детские сады, поликлиники, магазины Вкус Вилл, универсам и др., а также пруд и парк. Удобное транспортное сообщение. До станции метро ''Рассказовка'' можно дойти пешком.
                      59 м2
                      6 / 17 этаж
                      Панель
                      • Показать контакты
                      • Добавить в избранное
                      59 м2
                      6 / 17 этаж
                      Панель
                      16 500 000 
                      277 778 /м2
                        1/14
                        2-к, Салтыковская, 6/2 корп. 3 Показать на карте
                        Москва
                        Продается 2-х комнатная квартира, выполнен ремонт , никто не проживал свободная продажа.
                        51 м2
                        3 / 22 этаж
                        Монолит
                        • Показать контакты
                        • Добавить в избранное
                        51 м2
                        3 / 22 этаж
                        Монолит
                        16 500 000 
                        322 266 /м2
                          1/17
                          2-к, Филевский бульвар, 9 Показать на карте
                          Москва
                          Продается уютная 2-комнатная квартира общей площадью 58 кв. м, расположенная на 13этаже 22-этажного дома. Жилая площадь составляет 34 кв. м, а кухня — просторные 10.2 кв. м. Дом был построен в 1984 году и нажился на первой береговой линии р. Москвы с возможностью каждый день наслаждаться прогулками по зеленому скверу вдоль реки . В квартире можно заехать и жить , хорошее состояние . Из окон открывается вид на тихий двор, поэтому в квартире всегда будет спокойно и комфортно. Высота потолков — 2.64 метра, что создает ощущение простора. Санузел раздельный, что добавляет удобства жильцам.Дом в хорошем состоянии, с двумя пассажирскими и одним грузовым лифтом, что позволит легко добираться до квартиры. Есть мусоропровод и наземная парковка, поэтому можно не беспокоиться о месте для автомобиля. Рядом с домом находятся все необходимые объекты инфраструктуры: школы, детские сады и магазины. Это делает квартиру идеальным вариантом для семей с детьми.Два взрослых собственника, полная стоимость в договоре , легкая альтернатива , оперативный показ .
                          58 м2
                          13 / 22 этаж
                          Кирпич
                          • Показать контакты
                          • Добавить в избранное
                          58 м2
                          13 / 22 этаж
                          Кирпич
                          21 200 000 
                          365 517 /м2
                            1/11
                            2-к, Рижский проезд, 17 Показать на карте
                            Москва
                            Просторная двухкомнатная квартира в пешей доступности от лесопарка Сокольники. Потолки 3,2 м, кирпичный дом, окна во двор . Просторная лестничная площадка. Подъезд после отличного ремонта, есть пандус ,Великолепные соседи. Балкон, с/у раздельный. Газ.Квартира готова к продаже.УСЛУГИ РИЕЛТОРОВ НЕ НУЖНЫ!!!
                            54 м2
                            7 / 8 этаж
                            Кирпич
                            • Показать контакты
                            • Добавить в избранное
                            54 м2
                            7 / 8 этаж
                            Кирпич
                            22 600 000 
                            414 679 /м2
                              1/26
                              2-к, Юшуньская М., 3 Показать на карте
                              Москва
                              Продается по-настоящему уникальная квартира с неповторимым видом на Москву. ЖК Айвазовский, бизнес-класса с закрытой территорией, консьержем, видео наблюдением, подземным паркингом. Вся возможная инфраструктура в шаговой доступности, от магазина до шиномонтажа. Так же в шаговой доступности метро Каховская и метро Севастопольская.В квартире выполнен дизайнерский светлый ремонт в классическом стиле. Все продумано и функционально. Материалы использовались в основном европейского производства. Просторная кухня (14 кв.м), огромная гостиная (26 кв.м) и уютная спальня (13 кв.м) с выходом на панорамную лоджию с невероятным видом на город. Также в квартире имеются:- гардеробная (4,4 кв.м) с установленными системами хранения.- теплый пол на лоджии.- полный набор встроенной и классической мебели (в соответствии с проектом).- полный набор техники (в соответствующем стиле).- 3 кондиционера.- ip-видео для возможности наблюдения за квартирой в моменты отсутствия.- качественная дизайнерская кухня со столешницей из искусственного камня, выполненной воедино с подоконником.Документы первичные, от застройщика. 2 взрослых собственника (супруги). Продажа свободная, полная сумма в договоре. Максимально прозрачные документы.Владельцы не пенсионеры, жильё не единственное.
                              75 м2
                              23 / 30 этаж
                              Монолит
                              • Показать контакты
                              • Добавить в избранное
                              75 м2
                              23 / 30 этаж
                              Монолит
                              36 500 000 
                              486 667 /м2
                                1/27
                                2-к, Андрея Тарковского бульвар, 10 Показать на карте
                                Москва
                                Добрый день! Продается ПРОСТОРНАЯ и СВЕТЛАЯ во всех смыслах двухкомнатная квартира в ЖК РАССКАЗОВО! Самая УЮТНАЯ и ПОЛЕЗНАЯ площадь в этом ЖК!:) ПРО ДОКУМЕНТЫ: ОДИН взрослый собственник! ПОЛНАЯ стоимость в договоре! БЫСТРЫЙ выход на сделку!ПРО КВАРТИРУ:Просторная двухкомнатная квартира с шикарным и продуманным ремонтом, как и сама планировка! Все сделано для себя и для комфортной жизни в ней - вся мебель и техника остаются в квартире: кухонный гарнитур, столы, стулья, диван и кровать, шкафы, все заказывалось у лучших мебельных производителей. Посудомоечная машина, стиральная машина со встроенной сушилкой, система кондиционирования, а так же видеонаблюдения. В квартире так же установлена система от протечек. Хорошие соседи, практически все закончили ремонты. Просторная кухня - 16 кв.м., изолированные комнаты так же комфортной площади, в гостинной очень уютная и красивая лоджия для отдыха и перерыва на кофе или чай:)ПРО ДОМ и ИНФРАСТРУКТУРУ: Данный ЖК, можно сказать, построен в одном из лучших стилей архитектуры данного направления Москвы - фасады, красивые зоны для отдыха и прогулок. Здесь вы не встретите шумных компаний, потому что это место выбирают люди, любящие тишину и прогулки с семьей. Все необходимые магазины и кафе для релакса или отдыха тут тоже есть:) На территории ЖК есть красивый пруд, аллеи и благоустроенный лес для бега, катания на велосипедах.На данный момент есть действующий коммерческий детский сад, в школу детей отвозит организованный автобус у ЖК для школьников. Государственная школа и второй детский сад будут сданы и введены в эксплуатацию в следующем году. Помимо квартиры для вашего удобства у собственника так же в продаже есть подземный паркинг!Ждем вас на просмотры, проведем уютные и комфортные экскурсии по ЖК Рассказово, уверяем вас - вы влюбитесь в него)
                                62 м2
                                9 / 15 этаж
                                Монолит
                                • Показать контакты
                                • Добавить в избранное
                                62 м2
                                9 / 15 этаж
                                Монолит
                                23 550 000 
                                379 839 /м2
                                  1/21
                                  2-к, Банный переулок, 4 ст1 Показать на карте
                                  Проспект Мира, 6 мин
                                  Москва
                                  УЮТНАЯ КВАРТИРА в 5 минутах пешком от м. Проспект Мира в престижном ЦАО.ПРЕИМУЩЕСТВА КВАРТИРЫ: - КВАРТИРА ИДЕАЛЬНО ПОДОЙДЕТ ПОД ОФИС/ШОУРУМ и как объект под профессиональную деятельность для коуча, психолога, энергопрактика, так как в квартире есть зоны для работы и зоны для отдыха. - Капитальный ремонт квартиры делали с использованием качественных европейских материалов. Заменили всю электропроводку, установили качественные стеклопакеты, добротные двери, полы с подогревом по всей квартире.- Квартира укомплектована дорогой бытовой техникой и необходимой мебелью, что даст возможность покупателю комфортно проживать без дополнительных затрат на обустройство.- Квартиру можно использовать под арендный бизнес, на нее есть высокий спрос из-за удобной локации дома.- Рядом с домом находятся достопримечательности: Аптекарский огород, Екатерининский парк, Кремль (10 минут на машине), знаменитый фудкорт ''Депо''- место гастрономической тусовки жителей и гостей столицы.- Зелено и очень спокойно во дворе, нет ощущения суеты. - Развита инфраструктура: школы, детские сады, магазины и многое другое в шаговой доступности- Один собственник (26 лет)!- Документы: Договор купли-продажи 2010 года. Покупалась без мат.капитала и ипотеки.- Свободная продажа. Никто не зарегистрирован и не проживает.
                                  45 м2
                                  1 / 9 этаж
                                  Кирпич
                                  • Показать контакты
                                  • Добавить в избранное
                                  45 м2
                                  1 / 9 этаж
                                  Кирпич
                                  17 950 000 
                                  395 374 /м2
                                    1/23
                                    2-к, Тверская-Ямская 1-я, 2а Показать на карте
                                    Маяковская, 5 мин
                                    Москва
                                    ID: 8160.К продаже предлагается апартамент с новой качественной отделкой.Спланирована кухня-гостиная, спальня со своим санузлом, гостевой санузел.Из апартамента вы сразу попадаете в зимний сад с искусственным водоемом и приватными пространствами, где, сидя на комфортных диванах, можно помечтать и поработать, провести частную встречу. А отсюда пройти в зону СПА и фитнеса, чтобы снять напряжение дня.Vesper Residence (Фермонт) расположен на главной улице Москвы, в пешей доступности от Кремля, театров и бутиков, в самом центре культурной, гастрономической и ночной жизни Москвы.К удобству резидентов подземный паркинг, консьерж-сервис и собственная инфраструктура (welness клуб, торговая галерея, фитнес-клуб, ресторан). FS Property - участник ассоциации AREA.
                                    64 м2
                                    4 / 9 этаж
                                    Монолит
                                    • Показать контакты
                                    • Добавить в избранное
                                    64 м2
                                    4 / 9 этаж
                                    Монолит
                                    82 000 000 
                                    1 281 250 /м2
                                      1/20
                                      2-к, Нагатинская набережная, 10а Показать на карте
                                      Нагатинская, 12 мин
                                      Москва
                                      АГЕНТОВ ПРОСЬБА НЕ БЕСПОКОИТЬ Продаётся дизайнерская квартира в ЖК Level НагатинскаяСовременная, уютная и полностью укомплектованная мебелью и всей техникой квартира с дизайнерским ремонтом на 23 этаже жилого комплекса Level Нагатинская. Пространство организовано с вниманием к деталям и комфортной жизни. Планировка и особенности квартиры— Просторная кухня-гостиная- идеальное место для встреч и отдыха— Полностью меблирована и оснащена техникой, включая посудомоечную машину, свч-печь, индукционную плиту, вытяжку, кондиционери стиральная машина — Продуманные системы хранения: гардеробная при входе и гардеробная в спальне — Ремонт бизнес класса, с использованием качественных материалов и техники. — Несколько уровней подсветки О жилом комплексеЖК Level Нагатинская расположен на набережной Москвы-реки, в окружении зелени и уюта старой московской застройки. Рядом — Коломенский парк.Уже работают все необходимые магазины, включая продуктовый, пункты выдачи, кафе и аптеку. Стильные лобби, подземная парковка (не включено), закрытая территория и продуманный ландшафт делают проживание здесь особенно комфортным. Удобная локацияЖК находится вблизи центра Москвы, с быстрым выездом на Третье транспортное кольцо. Несмотря на близость к мегаполису, район сохраняет спокойную атмосферу и ощущение уюта — здесь нет эффекта ''муравейника''.
                                      46 м2
                                      23 / 26 этаж
                                      • Показать контакты
                                      • Добавить в избранное
                                      46 м2
                                      23 / 26 этаж
                                      28 300 000 
                                      611 231 /м2
                                      Новостройка,
                                      дом сдан
                                        1/30
                                        2-к, Скандинавский бульвар (Сосенское п.), 2 корп. 6 Показать на карте
                                        Москва
                                        Вашему вниманию предлагается уютная двухкомнатная квартира с ремонтом, который делался для себя.Удачное дизайнерское решение 2 изолированных комнаты правильной формы, стильная кухня Askona со встроенной техникой Борк. Кухня без окон, установлена в прихожей.Приятный вид из окна в любое время года, уютный парк, по которому можно прогуляться вечером и набраться энергией или погулять с детьми.Прекрасные соседи, готовые всегда придти на помощь и общедомовой чат, в котором все вопросы решаются оперативно.Развитая инфраструктура района: продуктовые магазины, детский сад и школа, рестораны и кафетерии, аптеки, барбершопы, йога и стоматолог - есть всё и под любой запрос)))Один взрослый собственник. Никто не зарегистрирован. Свободная продажа.
                                        42 м2
                                        11 / 17 этаж
                                        • Показать контакты
                                        • Добавить в избранное
                                        42 м2
                                        11 / 17 этаж
                                        13 700 000 
                                        326 190 /м2
                                          1/16
                                          2-к, Вилиса Лациса, 15 Показать на карте
                                          Москва
                                          Продаётся двухкомнатная квартира площадью 55,4 квадратных метра . Расположена на 11-м этаже 17-этажного монолитного дома, построенного в 2015 году.В квартире есть балкон, что позволяет наслаждаться видом на улицу и двор. Санузел раздельный, что удобно для семьи. Установлен кондиционер, который обеспечивает комфортное проживание в любое время года. Квартира с косметическим ремонтом, что позволит новым владельцам сразу заселиться и жить .Дом находится в хорошем состоянии, оборудован наземной парковкой .Расположение квартиры , обеспечивает удобный доступ ко всей необходимой инфраструктуре. Рядом с домом есть магазины, школы, детские сады и другие объекты социальной инфраструктуры. Это делает жизнь в этом районе комфортной и удобной.Не упустите возможность стать владельцем этой уютной и светлой квартиры. Она идеально подойдёт как для проживания, так и для сдачи в аренду.
                                          55 м2
                                          11 / 17 этаж
                                          Монолит
                                          • Показать контакты
                                          • Добавить в избранное
                                          55 м2
                                          11 / 17 этаж
                                          Монолит
                                          17 790 000 
                                          321 119 /м2
                                            1/15
                                            2-к, Николая Старостина, 10 корп. 1 Показать на карте
                                            Москва
                                            Продается двухкомнатная квартира в ЖК Мегаполис. , ул. Николая Старостина д. 10 к 1.Квартира в собственности! Ключи на руках.Без обременений и ограничений. Один взрослый собственник. Физически и юридически свободна. Общая площадь квартиры с учетом лоджии 60,8 кв.м., большая застекленная в пол лоджия. Квартира без отделки. Современный дом с огромной детской и спортивной площадкой во дворе, концепция двор без машин. В доме уже установлены Счетчики потребления отопления, холодной и горячей воды как общедомовые, так и на каждую квартиру индивидуальные, выведенные в квартиру коммуникации ТВ и интернет. Прекрасная планировка квартиры с большой кухней 11 кв.м.До метро Новокосино транспортом 10 минут. Рядом автобусная остановка, удобный выезд на МКАД. Развитая инфраструктура района, рядом с домом Ледовый дворец, бассейн. детские сады, школы, Салтыковский лесопарк, магазины и т.д. Хотим обратить внимание на то, что 9-й этаж это- Удобство в эксплуатации. Подъём на 9 этаж не критичен даже при временной поломке лифта — большинство людей могут без труда подняться. Торг уместен.
                                            60 м2
                                            9 / 24 этаж
                                            Монолит
                                            • Показать контакты
                                            • Добавить в избранное
                                            60 м2
                                            9 / 24 этаж
                                            Монолит
                                            15 100 000 
                                            248 355 /м2
                                              1/12
                                              2-к, Ташкентская, 14 корп. 2 Показать на карте
                                              Юго-Восточная, 5 мин
                                              Москва
                                              Код объекта: 1906452.Продается просторная, светлая 2-х комнатная квартира общей площадью 58,6 кв. м. , жилая 33 кв. м. , уютная просторная кухня, два санузла. Квартира находится на комфортном 18-ом этаже, 25 этажного домаМетраж комнат:Комната 1 Жилая комната (спальня)-15 кв. м.Комната 2 Жилая комната (спальня)- 18 кв. м.Санузел 1 (унитаз, раковина, ванная)- 4 кв. м. Санузел 2-гостевой (унитаз, раковина) - 2 кв. м.Прихожая - 6 кв.м. Кухня 11 кв. м.Лоджия- 4 м.В доме 4 лифта, все коммуникации новые, есть колясочная, хорошая звуко- теплоизоляция. много зеленых насаждений в пешей доступности вся необходимая инфраструктура, зоны отдыха, рядом с домом парк Кузьминки, во дворе дома большая новая детская площадка, есть места для занятия спортом. В настоящее время прописанных и проживающих лиц нет. Во дворе много парковочных мест. Окна и балконные двери со стеклопакетом, полы ломинат и с керамической плитки. В доме один подъезд. Ближайшие метро: Юго-Восточная 10 мин. пешком,Выхино 20 мин. пешком, Кузьминки 20 мин. пешком. Остановка общественного транспорта 185 метров.Один взрослый собственник, подходит под ипотеку, свободная продажа, быстрый выход на сделку.
                                              58 м2
                                              18 / 25 этаж
                                              Монолит
                                              • Показать контакты
                                              • Добавить в избранное
                                              58 м2
                                              18 / 25 этаж
                                              Монолит
                                              20 000 000 
                                              341 297 /м2
                                              Новостройка,
                                              дом сдан
                                                1/15
                                                2-к, Березовая аллея, 17 корп. 2 Показать на карте
                                                Ботанический сад, 15 мин
                                                Москва
                                                Продается уютная евродвушка с евроремонтом в современном доме. Общая площадь составляет 35.6 кв. м, жилая — 12 кв. м, а просторная кухня гостиная — 16 кв. м. Квартира находится на 12 этаже 19-этажного монолитного дома, построенного в 2018 году, с окнами, выходящими во двор. В квартире сделан качественный евроремонт, что создает уют и комфорт. Помещения продуманы до мелочей: просторная кухня позволяет легко организовать кухонное пространство. Санузел совмещенный и выполнен в современном стиле. Дом оборудован как пассажирским, так и грузовым лифтами. На территории имеется наземная парковка, что удобно для автовладельцев. Рядом с домом находятся все необходимые учреждения: школы, детские сады и магазины, что делает проживание здесь удобным и комфортным. До метро ''Ботанический сад'' и Владыкино всего 17 минут пешком, что позволяет легко добраться до любой точки города. Квартира продается без обременений и готова к сделке. Возможна продажа в ипотеку. Документы полностью готовы, что позволяет быстро оформить сделку.
                                                35 м2
                                                12 / 19 этаж
                                                Монолит
                                                • Показать контакты
                                                • Добавить в избранное
                                                35 м2
                                                12 / 19 этаж
                                                Монолит
                                                17 800 000 
                                                500 000 /м2
                                                  1/15
                                                  2-к, Вавилова, 84 корп. 4 Показать на карте
                                                  Новые Черемушки, 15 мин
                                                  Москва
                                                  Свободная продажа. Предлагается 2-х комнатная квартира , с большой застекленной лоджией. Встроенная кухня с техникой ( газовая панель , духовой шкаф , посудомоечная машина , холодильник). Дом после капитального ремонта , чистый подъезд. Окна в тихий, зеленый двор. Инфраструктура района развитая , школа, магазины , детский сад , метро - все в пешей доступности. Более 20 лет в собственности, полня стоимость в договоре, один взрослый собственник, без перепланировок, без обременений. Юридически свободна. Показы по договоренности.
                                                  50 м2
                                                  2 / 14 этаж
                                                  Бетонные блоки
                                                  • Показать контакты
                                                  • Добавить в избранное
                                                  50 м2
                                                  2 / 14 этаж
                                                  Бетонные блоки
                                                  19 940 000 
                                                  398 800 /м2
                                                    • В начало
                                                    • 21
                                                    • 22
                                                    • 23
                                                    • 24
                                                    • 25
                                                    • Следующая
                                                    Распечатать
                                                    Продажа двухкомнатных квартир в Москве
                                                    • по районам
                                                    • Замоскворечье
                                                    • Тверской
                                                    • Хамовники
                                                    • Войковский
                                                    • Головинский
                                                    • Молжаниновский
                                                    • Алексеевский
                                                    • Марфино
                                                    • Свиблово
                                                    • Вешняки
                                                    • Измайлово
                                                    • Перово
                                                    • Капотня
                                                    • Лефортово
                                                    • Печатники
                                                    • Братеево
                                                    • Нагорный
                                                    • Чертаново Центральное
                                                    • Котловка
                                                    • Ясенево
                                                    • Можайский
                                                    • Ново-Переделкино
                                                    • Тропарёво-Никулино
                                                    • Фили-Давыдково
                                                    • Строгино
                                                    • Старое Крюково
                                                    • Красносельский
                                                    • Якиманка
                                                    • Дмитровский
                                                    • Савёловский
                                                    • Алтуфьевский
                                                    • Марьина Роща
                                                    • Северный
                                                    • Северное Медведково
                                                    • Восточный
                                                    • Косино-Ухтомский
                                                    • Преображенское
                                                    • Северное Измайлово
                                                    • Кузьминки
                                                    • Люблино
                                                    • Рязанский
                                                    • Даниловский
                                                    • Орехово-Борисово Северное
                                                    • Чертаново Южное
                                                    • Ломоносовский
                                                    • Северное Бутово
                                                    • Внуково
                                                    • Очаково-Матвеевское
                                                    • Куркино
                                                    • Хорошёво-Мнёвники
                                                    • Силино
                                                    • Мещанский
                                                    • Аэропорт
                                                    • Западное Дегунино
                                                    • Сокол
                                                    • Бабушкинский
                                                    • Бутырский
                                                    • Останкинский
                                                    • Южное Медведково
                                                    • Восточное Измайлово
                                                    • Метрогородок
                                                    • Соколиная Гора
                                                    • Марьино
                                                    • Текстильщики
                                                    • Донской
                                                    • Орехово-Борисово Южное
                                                    • Академический
                                                    • Гагаринский
                                                    • Обручевский
                                                    • Тёплый Стан
                                                    • Дорогомилово
                                                    • Проспект Вернадского
                                                    • Митино
                                                    • Щукино
                                                    • Крюково
                                                    • Арбат
                                                    • Пресненский
                                                    • Беговой
                                                    • Коптево
                                                    • Тимирязевский
                                                    • Ховрино
                                                    • Бибирево
                                                    • Лианозово
                                                    • Отрадное
                                                    • Ярославский
                                                    • Гольяново
                                                    • Новогиреево
                                                    • Сокольники
                                                    • Некрасовка
                                                    • Южнопортовый
                                                    • Зябликово
                                                    • Нагатино-Садовники
                                                    • Царицыно
                                                    • Зюзино
                                                    • Черёмушки
                                                    • Крылатское
                                                    • Раменки
                                                    • Покровское-Стрешнево
                                                    • Южное Тушино
                                                    • Матушкино
                                                    • Басманный
                                                    • Таганский
                                                    • Бескудниковский
                                                    • Восточное Дегунино
                                                    • Левобережный
                                                    • Хорошёвский
                                                    • Лосиноостровский
                                                    • Ростокино
                                                    • Богородское
                                                    • Ивановское
                                                    • Новокосино
                                                    • Выхино-Жулебино
                                                    • Нижегородский
                                                    • Бирюлёво Восточное
                                                    • Бирюлёво Западное
                                                    • Москворечье-Сабурово
                                                    • Нагатинский Затон
                                                    • Чертаново Северное
                                                    • Коньково
                                                    • Южное Бутово
                                                    • Кунцево
                                                    • Солнцево
                                                    • Филёвский Парк
                                                    • Северное Тушино
                                                    • Савёлки
                                                    • 10-й
                                                    • 11-й
                                                    • 12-й
                                                    • 14-й
                                                    • 15-й
                                                    • 16-й
                                                    • 17-й
                                                    • 18-й
                                                    • 19-й
                                                    • 2-й
                                                    • 20-й
                                                    • 21-й
                                                    • 22-й
                                                    • 23-й
                                                    • 3-й
                                                    • 4-й
                                                    • 5-й
                                                    • 6-й
                                                    • 7-й
                                                    • 8-й
                                                    • 9-й
                                                    • Внуковское
                                                    • Вороновское
                                                    • Воскресенское
                                                    • Восточный округ
                                                    • Город Зеленоград округ
                                                    • Град Московский
                                                    • Десёновское
                                                    • Западный округ
                                                    • Киевский
                                                    • Клёновское
                                                    • Кокошкино
                                                    • Краснопахорское
                                                    • Марушкинское
                                                    • Михайлово-Ярцевское
                                                    • Московский
                                                    • Московский
                                                    • Мосрентген
                                                    • Новая Москва
                                                    • Новомосковский округ
                                                    • Новофёдоровское
                                                    • Панфиловский
                                                    • Первомайское
                                                    • Первый Московский Город-Парк
                                                    • Роговское
                                                    • Рязановское
                                                    • Северный округ
                                                    • Северо-Восточный округ
                                                    • Северо-Западный округ
                                                    • Сосенское
                                                    • Троицкий округ
                                                    • Филимонковское
                                                    • Центральный округ
                                                    • Щаповское
                                                    • Щербинка
                                                    • Юго-Восточный округ
                                                    • Юго-Западный округ
                                                    • Южный округ
                                                    • по метро
                                                    • Авиамоторная
                                                    • Автозаводская
                                                    • Академическая
                                                    • Александровский сад
                                                    • Алексеевская
                                                    • Алтуфьево
                                                    • Аннино
                                                    • Арбатская
                                                    • Аэропорт
                                                    • Бабушкинская
                                                    • Багратионовская
                                                    • Баррикадная
                                                    • Бауманская
                                                    • Беговая
                                                    • Белорусская
                                                    • Беляево
                                                    • Бибирево
                                                    • Библиотека им. Ленина
                                                    • Новоясеневская
                                                    • Боровицкая
                                                    • Ботанический сад
                                                    • Братиславская
                                                    • Бульвар Адмирала Ушакова
                                                    • Бульвар Дмитрия Донского
                                                    • Бунинская аллея
                                                    • Варшавская
                                                    • ВДНХ
                                                    • Владыкино
                                                    • Водный стадион
                                                    • Войковская
                                                    • Волгоградский проспект
                                                    • Волжская
                                                    • Воробьевы горы
                                                    • Выхино
                                                    • Выставочная
                                                    • Динамо
                                                    • Дмитровская
                                                    • Добрынинская
                                                    • Домодедовская
                                                    • Дубровка
                                                    • Измайловская
                                                    • Калужская
                                                    • Кантемировская
                                                    • Каховская
                                                    • Каширская
                                                    • Киевская
                                                    • Китай-город
                                                    • Кожуховская
                                                    • Коломенская
                                                    • Комсомольская
                                                    • Коньково
                                                    • Красногвардейская
                                                    • Красносельская
                                                    • Красные ворота
                                                    • Крестьянская застава
                                                    • Кропоткинская
                                                    • Крылатское
                                                    • Кузнецкий мост
                                                    • Кузьминки
                                                    • Кунцевская
                                                    • Курская
                                                    • Кутузовская
                                                    • Ленинский проспект
                                                    • Лубянка
                                                    • Люблино
                                                    • Марксистская
                                                    • Марьино
                                                    • Маяковская
                                                    • Медведково
                                                    • Международная
                                                    • Менделеевская
                                                    • Молодежная
                                                    • Нагатинская
                                                    • Нагорная
                                                    • Нахимовский проспект
                                                    • Новогиреево
                                                    • Новокузнецкая
                                                    • Новослободская
                                                    • Новые Черемушки
                                                    • Октябрьская
                                                    • Октябрьское поле
                                                    • Орехово
                                                    • Отрадное
                                                    • Охотный ряд
                                                    • Павелецкая
                                                    • Парк Культуры
                                                    • Парк Победы
                                                    • Партизанская
                                                    • Первомайская
                                                    • Перово
                                                    • Петровско-Разумовская
                                                    • Печатники
                                                    • Пионерская
                                                    • Планерная
                                                    • Площадь Ильича
                                                    • Площадь Революции
                                                    • Полежаевская
                                                    • Полянка
                                                    • Пражская
                                                    • Преображенская площадь
                                                    • Пролетарская
                                                    • Проспект Вернадского
                                                    • Проспект Мира
                                                    • Профсоюзная
                                                    • Пушкинская
                                                    • Речной вокзал
                                                    • Рижская
                                                    • Римская
                                                    • Рязанский проспект
                                                    • Савеловская
                                                    • Свиблово
                                                    • Севастопольская
                                                    • Семеновская
                                                    • Серпуховская
                                                    • Смоленская
                                                    • Сокол
                                                    • Сокольники
                                                    • Спортивная
                                                    • Сретенский бульвар
                                                    • Студенческая
                                                    • Сухаревская
                                                    • Сходненская
                                                    • Таганская
                                                    • Тверская
                                                    • Театральная
                                                    • Текстильщики
                                                    • Теплый Стан
                                                    • Тимирязевская
                                                    • Третьяковская
                                                    • Трубная
                                                    • Тульская
                                                    • Тургеневская
                                                    • Тушинская
                                                    • Улица 1905 года
                                                    • Улица Академика Янгеля
                                                    • Улица Горчакова
                                                    • Бульвар Рокоссовского
                                                    • Улица Скобелевская
                                                    • Улица Старокачаловская
                                                    • Университет
                                                    • Филевский парк
                                                    • Фили
                                                    • Фрунзенская
                                                    • Царицыно
                                                    • Цветной бульвар
                                                    • Черкизовская
                                                    • Чертановская
                                                    • Чеховская
                                                    • Чистые пруды
                                                    • Чкаловская
                                                    • Шаболовская
                                                    • Шоссе Энтузиастов
                                                    • Щелковская
                                                    • Щукинская
                                                    • Электрозаводская
                                                    • Юго-Западная
                                                    • Южная
                                                    • Ясенево
                                                    • Краснопресненская
                                                    • Строгино
                                                    • Славянский бульвар
                                                    • Мякинино
                                                    • Волоколамская
                                                    • Митино
                                                    • Марьина роща
                                                    • Достоевская
                                                    • Шипиловская
                                                    • Зябликово
                                                    • Борисово
                                                    • Новокосино
                                                    • Пятницкое шоссе
                                                    • Алма-Атинская
                                                    • Жулебино
                                                    • Лермонтовский проспект
                                                    • Деловой центр
                                                    • Лесопарковая
                                                    • Битцевский парк
                                                    • Спартак
                                                    • Улица Сергея Эйзенштейна
                                                    • Выставочный центр
                                                    • Улица Академика Королева
                                                    • Телецентр
                                                    • Улица Милашенкова
                                                    • Тропарево
                                                    • Котельники
                                                    • Технопарк
                                                    • Румянцево
                                                    • Саларьево
                                                    • Фонвизинская
                                                    • Бутырская
                                                    • Хорошёво
                                                    • Зорге
                                                    • Панфиловская
                                                    • Стрешнево
                                                    • Балтийская
                                                    • Коптево
                                                    • Лихоборы
                                                    • Окружная
                                                    • Ростокино
                                                    • Белокаменная

                                                    Вместе с этим также ищут:

                                                    Продажа квартир в Москве Продажа однокомнатных квартир в Москве Продажа комнат в Москве Продажа гаражей в Москве Продажа вторички - квартиры в Москве Квартиры в новостройках в Москве

                                                    🏠 Как купить двухкомнатную квартиру в Москве на N1?

                                                    • ✔ В поисках объявления о продаже или покупке квартир в Москве?
                                                    • ✔ На N1 размещены 16,50 тыс квартир
                                                    • ✔ Чтобы купить или продать недвижимость, воспользуйтесь формой поиска, фильтрами или быстрыми ссылками.

                                                    💸 Сколько стоит двухкомнатная квартира в Москве?

                                                    • 🟢 Средняя цена продажи двухкомнатных квартир - 34,05 млн ₽
                                                    • 🟢 Минимальная стоимость за 1 м2: 519,20 тыс ₽

                                                    📚 Какая площадь двухкомнатных квартир?

                                                    • Наибольшая площадь: 296 м²
                                                    • Минимальная площадь: 18 м²