2-к, Ивана Бабушкина, 3 Показать на карте
Москва
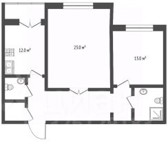
Номер в базе: 10888898. Продается просторная и светлая 2-комнатная квартира в одном из самых престижных и экологически чистых районов Москвы! Это идеальное место для комфортной жизни, где каждый день будет приносить только радость и уют. *СОСТОЯНИЕ КВАРТИРЫ*- квартира с косметическим ремонтом 54,1 кв.м., расположена на 9-м этаже 16-этажного дома, построенного в 1977 году. Две просторные, светлые, изолированные комнаты 17,8 кв.м. и 14,4 кв.м,. Санузел раздельный, оснащён всем необходимым. Просторная кухня 9,4 кв.м.,. Полноценная прихожая 7,9 кв. м., Незастеклённый балкон. Окна выходят во двор. Высота потолков 2,65 м. В квартире выполнен косметический ремонт, что позволяет вам переехать без лишних затрат.- чистый и просторный подъезд, оснащенный двумя лифтами (грузовой и пассажирский) и мусоропроводом, создаст дополнительные удобства. Во дворе имеется наземная парковка, что избавит вас от проблем с поиском места для автомобиля*ТРАНСПОРТНАЯ ДОСТУПНОСТЬ*- 7 мин. пешком до м. Академическая- 17 мин. пешком до м. Профсоюзная- 4 мин. на авто до м. Вавиловская- удобные выезды на Профсоюзную улицу, улицу Вавилова, Нахимовский проспект, что позволяет быстро добраться до центра или в другие районы *РАЗВИТАЯ ИНФРАСТРУКТУРА*- в пешей доступности находятся поликлиника, детские сады и школы, ВУЗы, образовательные учреждения, что делает квартиру идеальной для семей с детьми- сетевые магазины, торговые центры, аптеки, салоны красоты, кафе и рестораны, что делает жизнь здесь максимально удобной и комфортной*ДОКУМЕНТЫ*- один взрослый собственник. Все документы готовы к сделке, полная стоимость будет указана в договоре- обременений и долгов нет Для наших покупателей мы предлагаем БЕСПЛАТНОЕ одобрение ипотеки с низкой ставкой от 12,9% годовых и финансовую гарантию. Не упустите шанс стать владельцем этой замечательной квартиры! Звоните прямо сейчас, чтобы записаться на просмотр и сделать первый шаг к вашей новой жизни!Код пользователя: 166935
54 м2
9 / 16 этаж
Панель
- Показать контакты
- Добавить в избранное
54 м2
9 / 16 этаж
Панель
21 100 000
390 018 /м2
