2-к, Наметкина, 10 Показать на карте
Москва
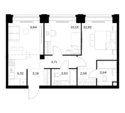
Этот лот вы можете приобрести с ПВ всего 30% в рассрочку под 0%.Продаются 2-к апартаменты площадью 49.6 кв.м. на 4-м этаже 29 этажного дома в ''NAMETKIN TOWER'' от ГК ОСНОВА.Есть возможность приобретения лотов с отделкой white box.Nametkin Tower с двухуровневым подземным паркингом и обширной инфраструктурой будет построен в районе Черемушки по адресу: ул. Намёткина, вл. 10, рядом с Битцевским лесопарком и Воронцовским парком. Архитектура от известного бюро Mecanoo из Нидерландов. Новый комплекс на Наметкина, 10 включает 4 секции переменной этажности 24-29 этажей, двухуровневый подземный паркинг. В каждой секции запроектированы лобби с мягкими рекреационными зонами, консьерж-сервисом 24/7, колясочными, комнатами для матери и ребенка и гостевыми санузлами. На 25 этаже расположится досуговая зона на открытом воздухе с выходом на тематические площадки. К услугам резидентов Nametkin Tower будет предоставлена максимально насыщенная внутренняя инфраструктура: ресторан, супермаркет, спортивный центр, зал для проведения мероприятий, теннисные и бильярдные столы, коворкинг, Sky Bar, а также собственный медицинский центр и SPA. Дополнением станет благоустройство по авторской концепции Mecanoo, разделенное на два пространства: общественное вдоль улицы Намёткина, где будут располагаться входы в ресторан и магазины, а также приватное дворовое пространство, выполненное в концепции ''''двор без машин''''. В основе проектирования всех лотов лежит принцип оптимальной эргономики пространства и большая площадь остекления с высотой оконных проемов 2,7 м.
49 м2
4 / 29 этаж
Монолит
- Показать контакты
- Добавить в избранное
49 м2
4 / 29 этаж
Монолит
15 873 240
320 025 /м2
Новостройка,
II-2026
II-2026
