2-к, Окружной проезд, 22/64 Показать на карте
Москва
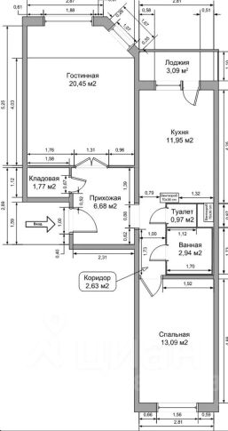
ВП - 2512. СВОБОДНАЯ ПРОДАЖА. 1 ВЗРОСЛЫЙ СОБСТВЕННИК. В СОБСТВЕННОСТИ БОЛЕЕ 3-Х ЛЕТ. КВАРТИРА ЮРИДИЧЕСКИ И ФИЗИЧЕСКИ СВОБОДНА. ОПЕРПТИВНЫЙ ПОКАЗ И БЫСТРЫЙ ВЫХОД НА СДЕЛКУ. Продаем двухкомнатную квартиру в районе Соколиная Гора, в пешей доступности от метро и МЦК, 15-20 минут прогулочным шагом. Выгодная локация, в пределах которой есть вся инфраструктура, необходимая для комфортного проживания- школа и детский сад, сетевые маркеты и ТЦ, поликлиника и медицинские центры, предприятия сферы обслуживания и социально значимые организации, спортивные и развлекательные центры. Рядом с домом, в 5-ти минутах ходьбы ПКиО Измайлово, где в любое время года, каждый может найти занятие по душе и настроению. Дом кирпичный, 1960 года постройки, теплый, с высокой шумоизоляцией, тихий уютный и зеленый двор с детской площадкой, презентабельная входная группа, дом после капитального ремонта. Квартира требует ремонта, без личных и лишних вещей, окна ПВХ, застекленный и утепленный балкон, квартира угловая и очень теплая за счет радиаторов в комнате, их вдвое больше, совмещенный санузел. Вам нет необходимости платить за чужой ремонт, полет Вашей фантазии, Ваши возможности и желание и Ваша новая Квартира готова для новой жизни. Подробности на фото и по телефону. ПОКУПАТЕЛЮ В ПОДАРОК юридическое сопровождение сделки. Окажем содействие в одобрении ИПОТЕКИ в ведущих Банках партнерах Компании.
42 м2
5 / 8 этаж
Кирпич
- Показать контакты
- Добавить в избранное
42 м2
5 / 8 этаж
Кирпич
11 900 000
282 660 /м2
