Если цена в объявлении изменится, мы сразу сообщим вам об этом на электронную почту.
Нажимая «Подписаться», вы соглашаетесь с правилами.
продам 1-к, Уланский переулок, 21 ст217 000 000 ₽
22 янв
Дата публикации объявления
Обн. 25 апр
Дата обновления объявления
2
Количество просмотров (+ просмотры за сегодня)
653 846 ₽/м²
Чистая продажа
Термин "Чистая продажа" означает, что в квартире никто не прописан или
есть куда выписаться и вывезти вещи. Это лучший вариант для покупателя.
Вероятность срыва сделки минимальна.
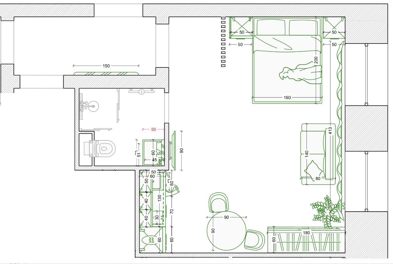
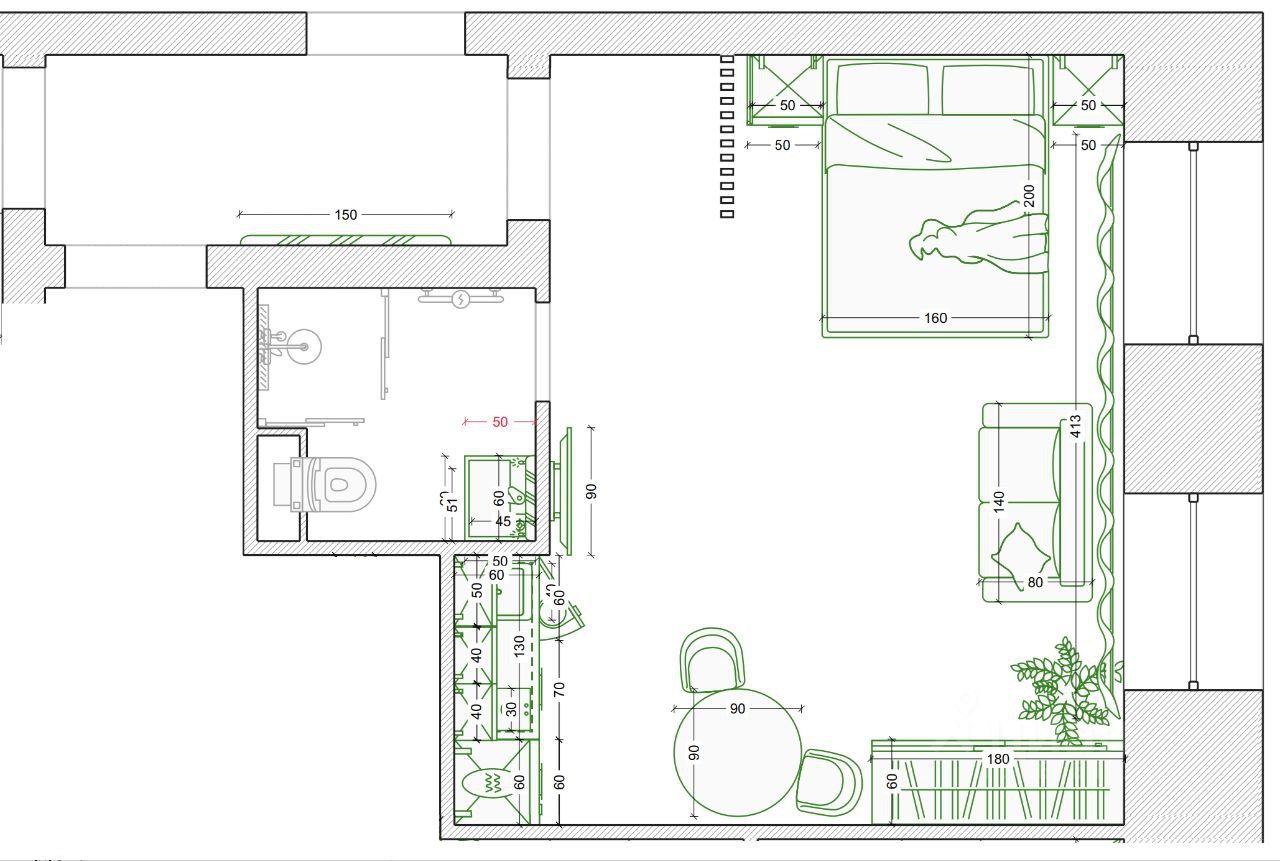
УСЛОВИЯ: + все мокрые точки согласованы + отдельный кадастровый номер + чистая продажа без обременений, физлицо.
ОТДЕЛКА:: + чистовая отделка 2025г. + подоконники шпон дуба + потолки 2,9 метра в чистовой отделке + теплый пол в с/у + входная дверь толщиной более 110 мм с повышенной шумоизоляцией + новые радиаторы отопления + выполнена разводка электрики, водоснабжения, канализации (100мм), + парковка во дворе
ОКРУЖЕНИЕ: + ЦЕНТР деловых событий и искусства) + 5 мин м. Тургеневская, 17 мин м. Лубянка, 20 мин м. Кузнецкий мост + 25 мин м Красная площадь , ГУМ, ЦУМ, Большой театр, Охотный ряд, ЦДМ, ТРЦ Seasons + 30 мин парк Зарядье, смотровая площадка над р.Москва + 20 мин Ильинский сквер + 10 мин Бульварное кольцо, Чистый пруд +парковка во дворе под шлагбаумом