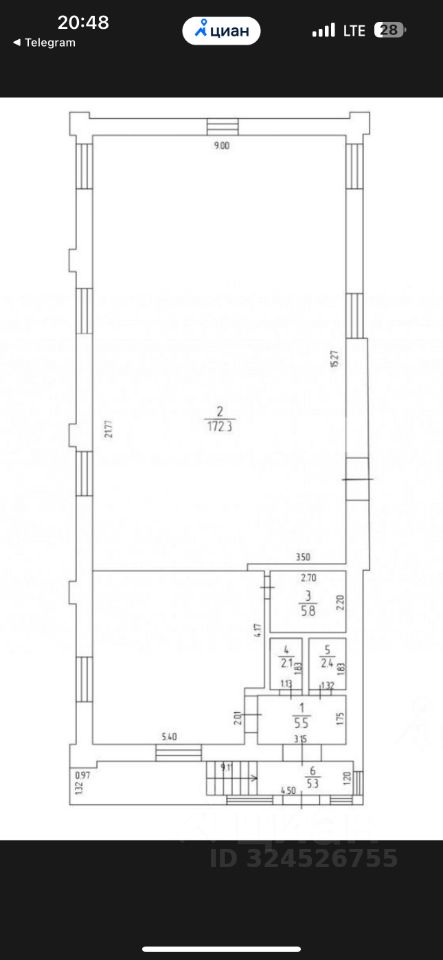
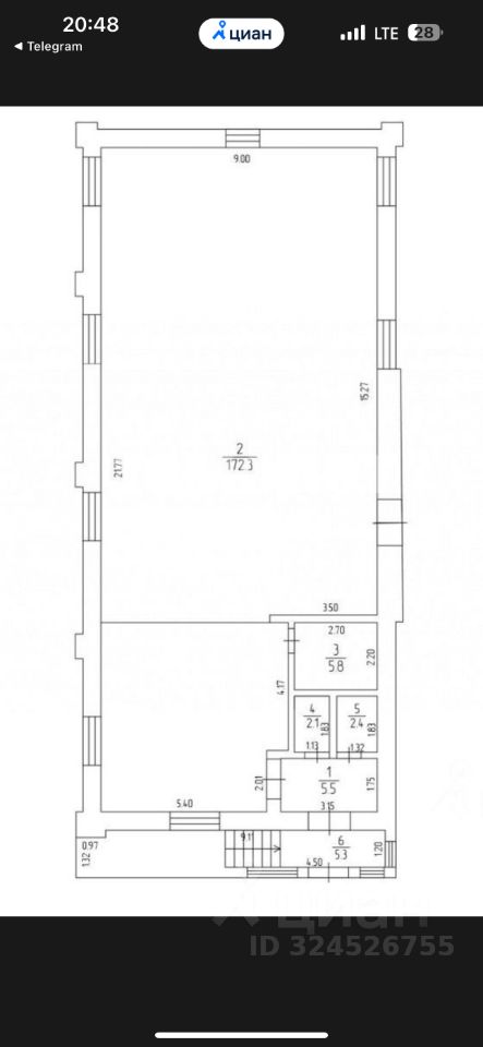
Продается отдельно стоящее капитальное здание общей площадью 277 кв.м. в пешей доступности от метро Шаболовская. Идеально для бизнеса, требующего пространства и полной свободы в планировке.
Преимущества:
Премиальная локация: ЦАО, 5 мин пешком от станции м. Шаболовская. Высокая проходимость и отличная транспортная доступность для клиентов и сотрудников.
Уникальное пространство: Два уровня, полностью свободные от перегородок (open-space).
Первый этаж: 200 кв.м. идеален для офиса открытого типа, торгового зала, фитнес-зоны, клиники и многого другого.
Цокольный этаж: ~70 кв.м. — может быть использован как склад, архив, технические помещения, комната отдыха персонала или быть полностью интегрирован в основную бизнес-зону.
Продается отдельно стоящее капитальное здание общей площадью 277 кв.м. в пешей доступности от метро Шаболовская. Идеально для бизнеса, требующего пространства и полной свободы в планировке.
Преимущества:
Премиальная локация: ЦАО, 5 мин пешком от станции м. Шаболовская. Высокая проходимость и отличная транспортная доступность для клиентов и сотрудников.
Уникальное пространство: Два уровня, полностью свободные от перегородок (open-space).
Первый этаж: 200 кв.м. идеален для офиса открытого типа, торгового зала, фитнес-зоны, клиники и многого другого.
Цокольный этаж: ~70 кв.м. — может быть использован как склад, архив, технические помещения, комната отдыха персонала или быть полностью интегрирован в основную бизнес-зону.
Объект готов к запуску: Полностью после капитального ремонта. Все необходимые коммуникации (электричество 180 кВт, вода, канализация) подведены и подключены. Выполнена качественная черновая отделка. Новая, надежная кровля — капитальные затраты минимизированы.
Собственная парковка: На территории установлен общий шлагбаум, что позволяет организовать парковку на 2-3 машиноместа.
Основные технические характеристики:
Общая площадь: 277 кв.м. Планировка: Свободная (open-space на двух уровнях). Состояние: Черновая отделка, все сети подключены. Кровля: Новая. Парковка: Места за шлагбаумом, + рядом платная городская парковка.
Инвестиционная привлекательность: Объект с высокой ликвидностью. Готовность коммуникаций позволяет начать ремонт и запуск бизнеса в кратчайшие сроки, экономя время и ресурсы.
Строительный мусор убран, помещения пустые. Продажа без НДС, от физического лица.