сдам офисное помещение, Обручева, 462 555 000 ₽ в месяц
15 ноя
Дата публикации объявления
Обн. вчера
Дата обновления объявления
28
Количество просмотров (+ просмотры за сегодня)
1000 ₽/м² в месяц
Параметры
Общая площадь2555 м2
Этаж1
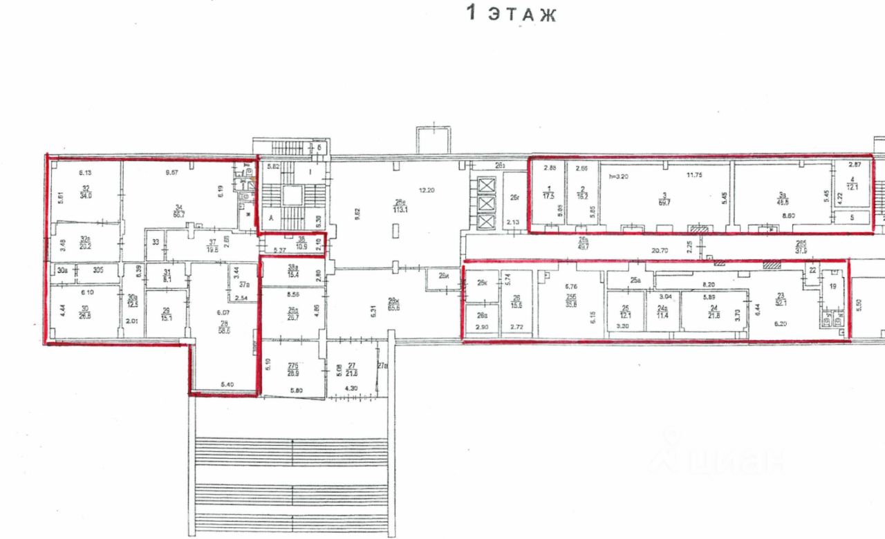
Предлагается в аренду (пересдача в СУБАРЕНДУ возможна) три этажа в офисном центре по адресу Обручева 46, в 8 минутах от метро Калужская.
1 этаж, 652м2 из них 304м2 отдельный блок с конференц залом + две линии кабинетов 354 м2 кабинетной планировки (смотреть планировку в границах красных линиях .
2 этаж, 1204м2 полностью два крыла левый блок правый и полностью лифтовой холл - офисы кабинетная планировка.
3 этаж, 700 м2 из них 624 м2 отдельный левый блок + два отдельный кабинета в правом блоке общей площадью 76 м2
В каждом офисе есть кондиционер, офисная отделка, частично мебелировка. Отделка офисная частично есть мебель смотреть фото и видео. Договор аренды от 3-5 лет. Возможна пересдача в субаренду.
Предлагается в аренду (пересдача в СУБАРЕНДУ возможна) три этажа в офисном центре по адресу Обручева 46, в 8 минутах от метро Калужская.
1 этаж, 652м2 из них 304м2 отдельный блок с конференц залом + две линии кабинетов 354 м2 кабинетной планировки (смотреть планировку в границах красных линиях .
2 этаж, 1204м2 полностью два крыла левый блок правый и полностью лифтовой холл - офисы кабинетная планировка.
3 этаж, 700 м2 из них 624 м2 отдельный левый блок + два отдельный кабинета в правом блоке общей площадью 76 м2
В каждом офисе есть кондиционер, офисная отделка, частично мебелировка. Отделка офисная частично есть мебель смотреть фото и видео. Договор аренды от 3-5 лет. Возможна пересдача в субаренду. НДС включен, коммунальные оплачиваются отдельно 165 руб. м2. Высокие потолки 3.2 м2.
На подробном видео можно посмотреть все помещения: Первый этаж , вторая часть с 2:21 минуты Второй этаж, первая часть с 5:54 минуты Второй этаж , вторая часть с 9:10 минуты Третий этаж с 10:55 минуты
В задание находится Россрестр по Московской области и ГБУ МО НИИПРОЕКТ. Охрана, пропускная система по карточкам. Есть парковка. Звоните пишите предложение актуально