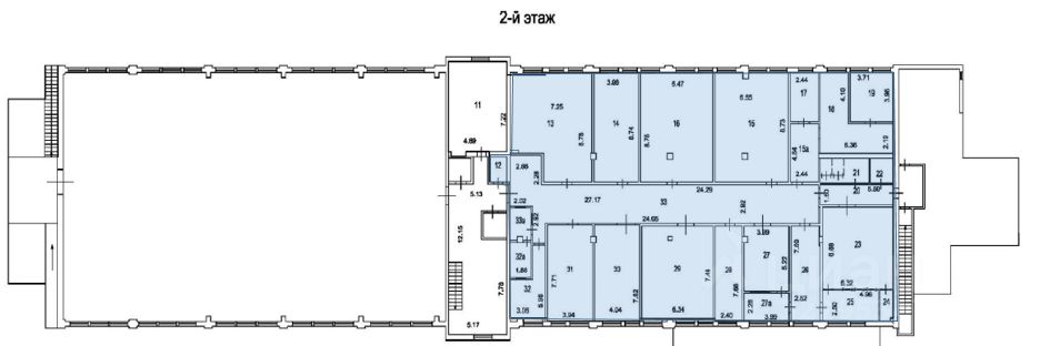
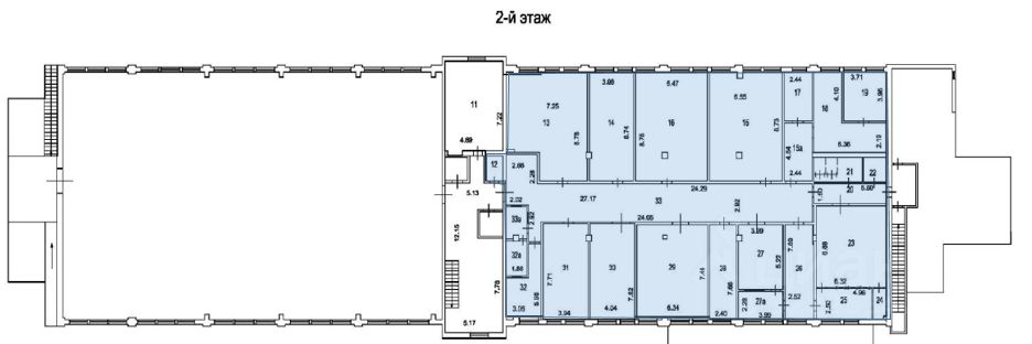
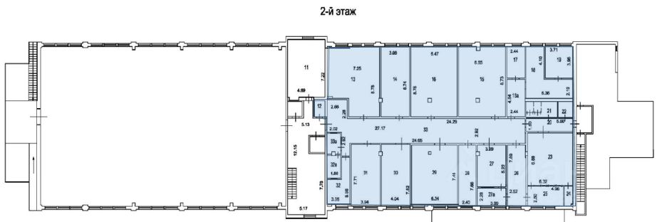
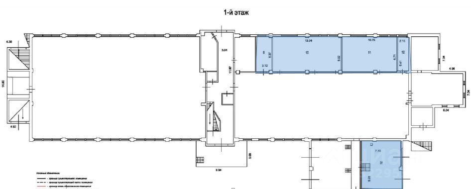
Помещение расположено на 1 и 2 этажах в
отдельностоящем здании.
Материал стен кирпич
Железобетонные перекрытия
Кровля монолитная ж/б плита
Централизованное отполение, водснабжение,
канализация
Электрическая мощность 50 кВт.
Заключен договор аренды с научно-производственной
компанией до 30 марта 2033 года
МАП- 608 000 рублей, УСН
ГАП 7 296 000 рублей
Коммунальные платежи полностью оплачивает арендатор






