Готовый бизнес
Энтузиастов 2-я, 5 корп. 7 Показать на карте
Энтузиастов 2-я, 5 корп. 7 Показать на карте
Авиамоторная, 13 мин
Москва
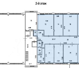
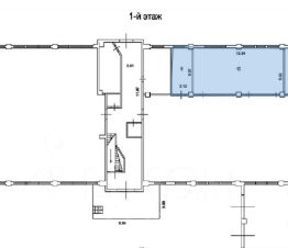
Рассрочка на 12+ месяцевПредлагается вашему вниманию полностью отреставрированное здание, общей площадью 1200 м2.Здание расположено в индустриальном кластере ''Компрессор'' вблизи ТТК, шоссе Энтузиастов, метро Авиамоторная и МЦД. Удобная транспортная доступность для сотрудников и грузового транспорта создает идеальную логистику.На территории кластера правительство Москвы реализует программу комплексного развития территории. До 2034 будет возведен Технопарк с современным деловым центром и торговыми галереями. Обновление инфраструктуры увеличит вдвое стоимость м2 в локации. В рамках КРТ объект сохраняется, дополнительной отделки фасада не требуется. Сейчас здание заполнено арендаторами, собственник здания готов арендовать для компании часть здания если покупатель рассматривает ГАБТекущие варианты использование здания:-Готовый арендный бизнес (ГАБ), арендный поток 30,5 млн в год, текущая заполняемость 70%-Light industrial офис, производство и шоу-рум-Собственный офис крупной компанииНа первом этаже 7 залов (open space) и помещений от 80 до 40 м2, 10 кабинетов от 3,5 до 25 м2, 5 санузлов и два подсобных помещения2 антресоли с 4 кабинетами от 12 до 30 м2 позволят комфортно разместиться ТОП менеджменту или использоваться как шоурумыНа втором этаже просторный зал 200 м2 и 11 кабинетов от 19 до 30 м2 и 4 санузлаМансарда оборудована двумя кабинетами по 30+ м2 и санузлом Дополнительный потенциал использования:-Перепрофилирование под IT-кластер или коворкинг-Оборудование пространства в офисы класса B-Редевелопмент с под особняк или гостиницу Один собственник (физ лицо более 10 лет), полная стоимость в договоре. Отсутствуют обременения. Документы полностью готовы к сделке. Есть возможность обмена вашей недвижимости по системе трейд ин.Звоните, не упустите шанс приобрести качественный инвестиционный проект.Арт. 136424891
1200 м2
- Показать контакты
- Добавить в избранное
1200 м2
214 900 000
179 083 /м2
