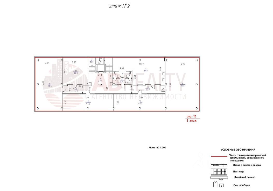
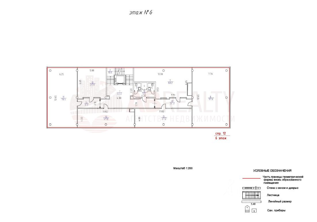
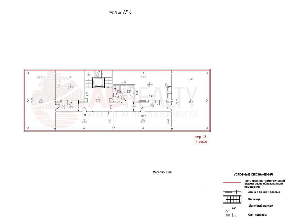
В ЮАО в бизнес-квартале Сириус Парк продается офисное 7-этажное здание площадью 2825 кв.м. Класс В+. Земельный участок в собственности. Деловой квартал состоит из 6 корпусов.
Здание в стиле хай-тек. Панорамное остекление. Высокие потолки. Качественная офисная отделка, функциональная планировка, установлены стеклянные перегородки, имеются кухни с зоной приема пищи.
Дополнительно о БЦ: - Стильная входная группа - Центральный ресепшн - Скоростные панорамные лифты - Современные инженерные коммуникации - Приточно-вытяжная вентиляция и центральное кондиционирование - Круглосуточная охрана и видеонаблюдение, пропускная система - Наземный охраняемый паркинг
Локация, р-н Нагатино-Садовники: 7-10 мин. пешком от м.
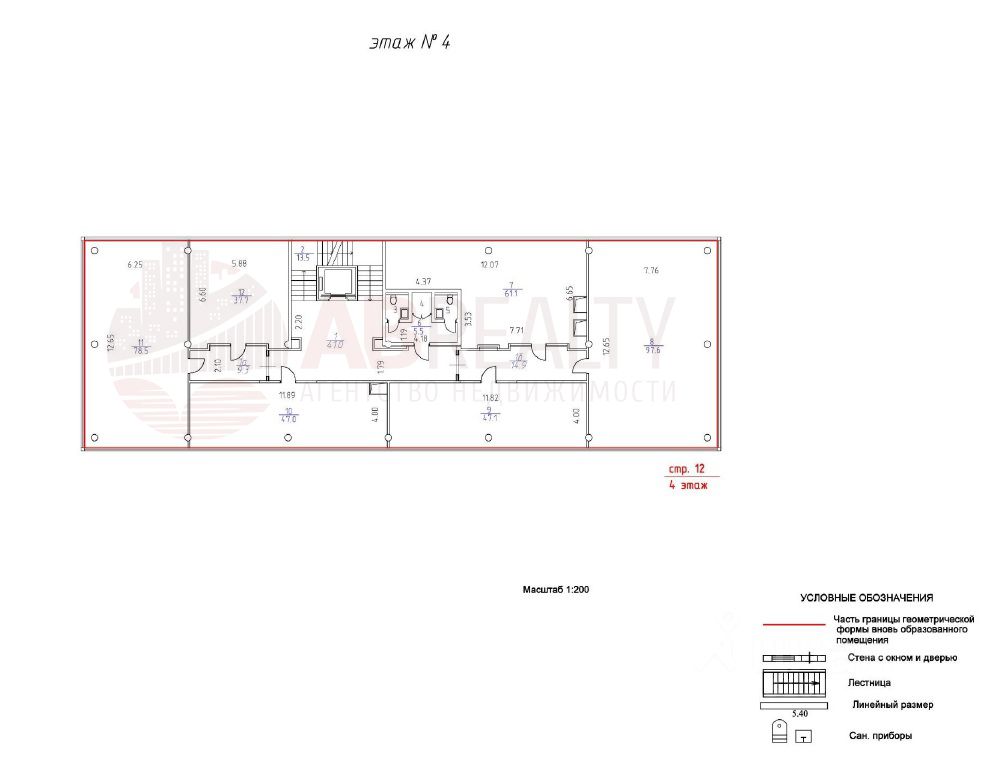
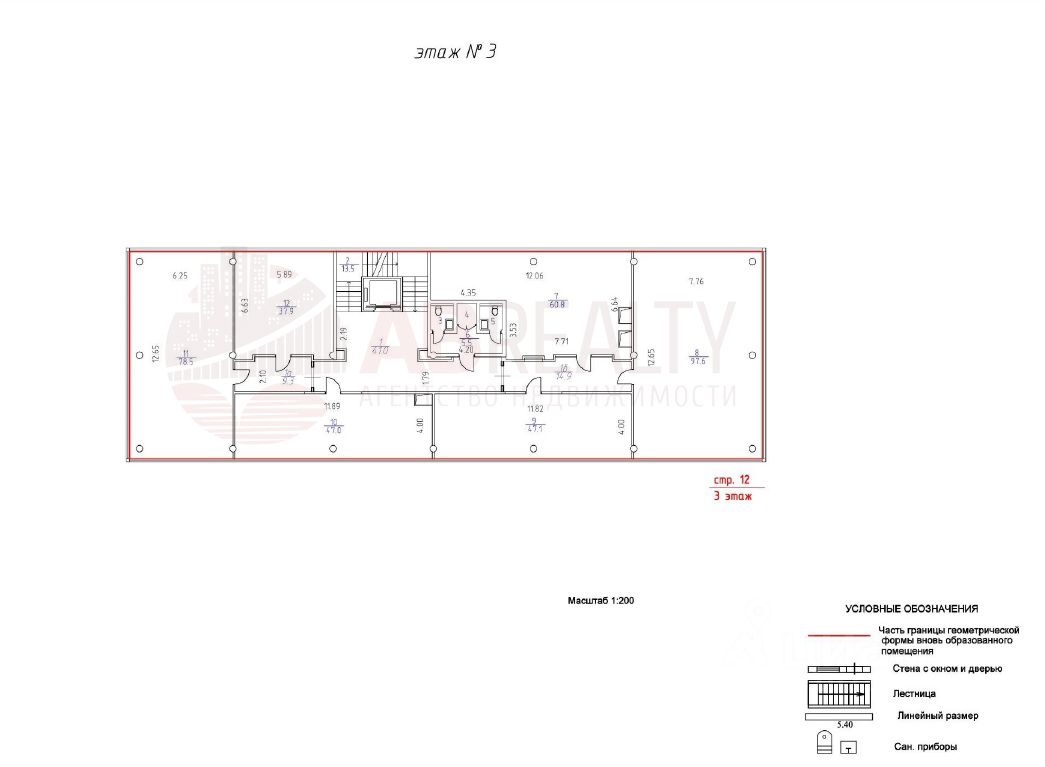
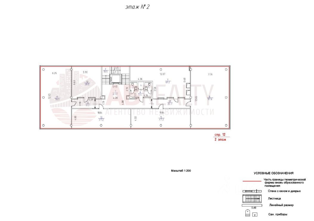
В ЮАО в бизнес-квартале Сириус Парк продается офисное 7-этажное здание площадью 2825 кв.м. Класс В+. Земельный участок в собственности. Деловой квартал состоит из 6 корпусов.
Здание в стиле хай-тек. Панорамное остекление. Высокие потолки. Качественная офисная отделка, функциональная планировка, установлены стеклянные перегородки, имеются кухни с зоной приема пищи.
Дополнительно о БЦ: - Стильная входная группа - Центральный ресепшн - Скоростные панорамные лифты - Современные инженерные коммуникации - Приточно-вытяжная вентиляция и центральное кондиционирование - Круглосуточная охрана и видеонаблюдение, пропускная система - Наземный охраняемый паркинг
Локация, р-н Нагатино-Садовники: 7-10 мин. пешком от м. Нагатинская, м. Коломенская. От м. Нагатинская до комплекса организованы бесплатные шаттлы. Близость главных кольцевых автодорог: 5 км. до ТТК, до МКАД - 12 км, до Садового кольца - 8 км. Прямая дорога по скоростной Каширской трассе позволит добраться за 40-50 мин. до аэропорта Домодедово.
Стоимость продажи здания 250 000 руб. за кв.м. НДС. Звоните, оперативный показ!