Складское помещение
Поляны, 73 Показать на карте
Поляны, 73 Показать на карте
Москва
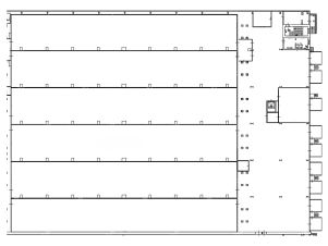
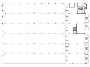
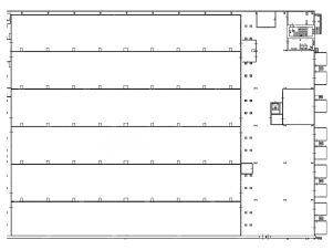
Арт. 108778485 Предлагается в аренду складское помещение от 600м2 (возможно увеличение)Общая зона 1000 м2 погрузки-разгрузки с большим количеством ворот: 4 под фуру, 8 под малотоннажную технику.Полы -АнтипыльПомещение оборудовано стеллажами,входят в стоимость аренды.Так же в стоимость аренды входит ОРЕХ (содержание территории, эксплуатационное содержание, обеспечение пропускного режима).Оплата коммунальных услуг -только за электроэнергию!Есть офисные помещения.Возможность использовать услуги складского оператора, находящегося на той же территории в том числе услугами по транспортной доставке. Удобное расположение складского комплекса в 20 минутах ПЕШКОМ от м. Бульвар Адмирала Ушакова, и м. Улица Горчакова.11 минут от МКАД.Так же рядом проходит Солнцево-Бутово-Варшавского шоссе- удобный выход на Калужское/Киевское шоссе не выезжая на МКАД.Рядом располагаются продуктовые магазины,кафе.
600 м2
- Показать контакты
- Добавить в избранное
600 м2
900 000 /мес.
1 500 /м2
