Универсальное помещение
Полянка Б., 26 ст2 Показать на карте
Полянка Б., 26 ст2 Показать на карте
Полянка, 5 мин
Москва
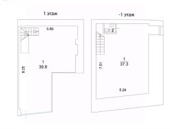
Лот 139430.Аренда торгового помещения, по адресу: ул. Большая Полянка, 26с2. ЦАО, район Полянка. 10 метров от метро Полянка. Прямая видимость от выхода из метро. Сверхинтенсивный пешеходный трафик в течении всего дня, особенно в часы пик. Отличная визуализация объекта при выходе из метро. Высокий рекламный потенциал. Сложившееся торговое окружение: Шоколадница, Cofix, Мята Lounge Полянка, Бургер Кинг, супермаркет Перекресток, книжный магазин Молодая гвардия. Технические характеристики:Общая площадь - 107,5 кв.м, мансарда, 1-ая линия нежилого 2-х этажного торгового здания. Общий вход с маникюром. Открытая планировка. Окна выходят на вход и выход из метро. Выделенная мощность электроэнергии 25 кВт. Высота потолков 2.5м в середине помещения, 1.17м со стороны окон в скате. Все коммуникации центральные. Свой с/у. Есть возможность арендовать соседний блок, расположенный зеркально 107кв.м (общая площадь будет 214 кв.м и получится изолированный блок с отд. входом от метро).Коммерческие условия:Ставка аренды в месяц - 500 000 руб. УСН.Ставка за 1 кв.м в мес.- 4 651 руб.Депозит 1 месяцКоммунальные платежи оплачиваются отдельно.
107 м2
- Показать контакты
- Добавить в избранное
107 м2
500 000 /мес.
4 651 /м2
