Офисное помещение
Ходынский бульвар, 20а/2 Показать на карте
Ходынский бульвар, 20а/2 Показать на карте
ЦСКА, 7 мин
Москва
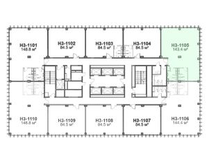
Офисное помещение 353.5 кв. м в бизнес-центре ''STONE Ходынка 2 G1''. Прямая продажа, без комиссии. Объект на стадии активного строительства, готовность ко въезду уточняется по запросу. Округ: Северный (САО). Район: Хорошевский. Характеристики:- Класс: A, - Разрешение на строительство: Да, - Арендопригодная площадь: 25900, - Высота потолков: 3.65 м, 8 м, - Наличие лифта: Есть. Стоимость: 182 759 500 руб. Финансовые условия: - В стоимость включено: НДС, - Налог: Включая НДС. Оформление сделки напрямую от собственника, без комиссии.Готовы оперативно организовать просмотр в удобное время, предоставить PDF-презентацию и план. Точное местоположение объекта можно найти по данным координатам: 55.789182,37.525199 ID = c_1611644
353 м2
- Показать контакты
- Добавить в избранное
353 м2
182 759 500
517 000 /м2
