4-к, Пречистенский переулок, 18 Показать на карте
Смоленская, 8 мин
Москва
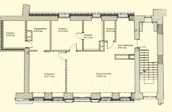
**ПРЕЧИСТЕНСКИЙ ПЕРЕУЛОК, 18**93 м² на последнем этаже исторического дома 1901 годаПосольский квартал Золотой милиРедкое предложение в самом камерном и статусном районе старой Москвы. Квартира площадью 93 м² расположена на пятом, последнем этаже дореволюционного дома начала XX века в Пречистенском переулке — одной из самых тихих и престижных улиц Хамовников.Здесь нет случайных прохожих и транзитного движения. Вокруг — посольства, отреставрированные особняки, клубные дома и атмосфера старой Москвы, которую невозможно воспроизвести в новом строительстве.Дом 1901 года сохранил главное, за что ценят подлинный исторический фонд: выразительный фасад, толстые кирпичные стены, крупные окна и редкое ощущение приватности. Небольшое число квартир и закрытый двор создают формат настоящего клубного дома.Главное достоинство квартиры — современная, редкая для старого фонда планировка:— просторная кухня-гостиная около 35 м²,— мастер-спальня 16 м²,— вторая спальня 15 м²,— отдельная ванная комната,— постирочная,— холл с местом под хранение.Планировка идеально подходит как для пары, так и для семьи с ребёнком или формата city residence в центре Москвы.Квартира предлагается в состоянии под ремонт — а значит, вы не переплачиваете за чужую отделку и получаете возможность создать интерьер именно под себя. Высокие потолки, правильная геометрия комнат и большие окна позволяют реализовать как современный минимализм, так и элегантную классику в духе старой Москвы.Из окон — мягкий свет и приватные виды на тихий переулок и внутренний двор. Последний этаж обеспечивает максимум тишины, отсутствие соседей сверху и редкое для центра ощущение уединения.В нескольких минутах пешком находятся Храм Христа Спасителя, Гоголевский бульвар, Остоженка и набережная Москвы-реки. Рядом — лучшие рестораны, галереи, музеи и частные школы центра Москвы.Почему это действительно редкий объект:• исторический адрес в посольском квартале Золотой мили,• дореволюционный кирпичный дом 1901 года,• последний, пятый этаж,• камерный формат дома и закрытый двор,• 93 м² с рациональной современной планировкой,• возможность создать индивидуальный интерьер без компромиссов,• крайне ограниченное предложение: квартиры такого уровня в Пречистенском переулке практически не выходят в открытую продажу.
93 м2
5 / 5 этаж
Кирпич
- Показать контакты
- Добавить в избранное
93 м2
5 / 5 этаж
Кирпич
80 000 000
860 215 /м2
