2-к, Полковая, 1 ст27 Показать на карте
Савеловская, 11 мин
Москва
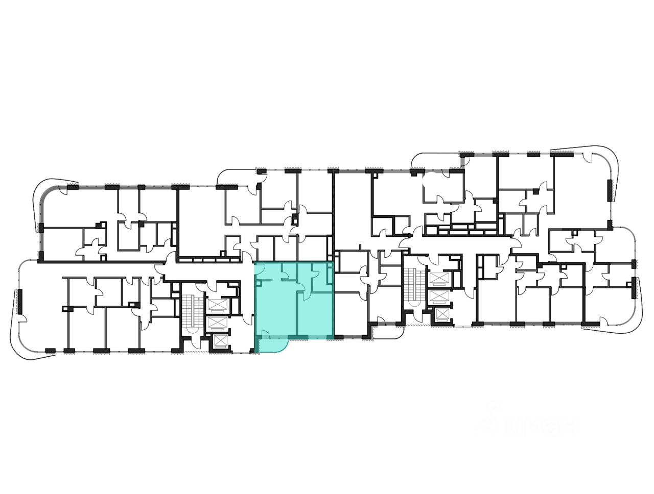
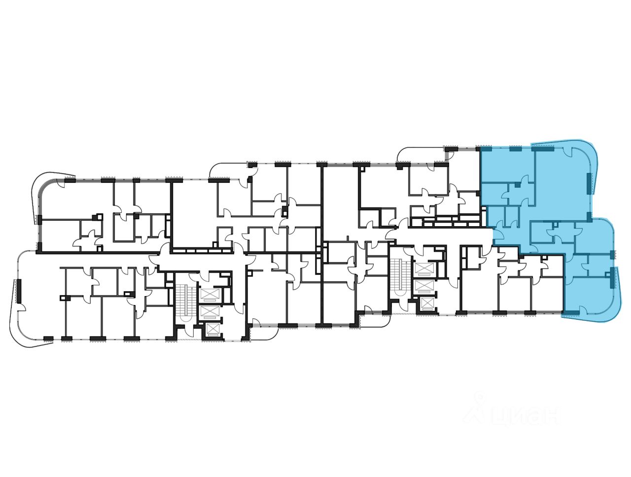
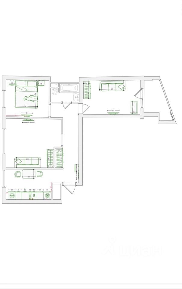
Переуступка от физлица. Корпус находится на стадии передачи ключей и оформления в собственность.Продается шикарная квартира площадью 47.2 кв. м с планировкой 2-евро в премиальном жилом квартале Pride. Преимущества квартиры: ровная прямоугольная планировка, панорамные окна, потолки высотой 3 метра, отсутствие несущих стен внутри квартиры, что дает простор для любых дизайнерских задумок. Расположение квартиры на 4 этаже является неоспоримым плюсом - безопасная и в то же время комфортная высота порядка 14 метров благодаря высокому первому этажу. Окна квартиры выходят на западную сторону, на тихую улицу Двинцева, где практически нет шума от машин. На противоположной стороне дороги идет строительство Бизнес-квартала Стоун Савёловская.Создатели комплекса позаботились о максимальном комфорте жителей. Закрытая охраняемая территория с видеонаблюдением, тематический двор без машин, рассчитанный на отдых жителей любых возрастов, яркая архитектура от известного дизайнерского бюро APEX, ландшафтный дизайн, просторные входные группы с местами для отдыха и отдельным входом через помещение для колясок, площадки для воркаута и активных занятий во дворе, просторная подземная парковкаПервые этажи отданы под многочисленные объекты инфраструктуры: сервисные службы, супермаркеты, кофейни, рестораны, салоны красоты, барбершопы - все бытовые потребности можно будет закрыть, не выезжая из квартала. Также на территории комплекса планируется строительство образовательного центра со школой и детским садом.Комплекс имеет удобную транспортную доступность: до метро Савеловская можно добраться пешком за 10 минут, до метро Марьина Роща - за 15.С радостью отвечу на все вопросы о квартире, звоните!
47 м2
4 / 22 этаж
Монолит
- Показать контакты
- Добавить в избранное
47 м2
4 / 22 этаж
Монолит
26 700 000
565 678 /м2
Новостройка,
дом сдан
дом сдан
