2-к, Миклухо-Маклая, 23 Показать на карте
Беляево, 13 мин
Москва
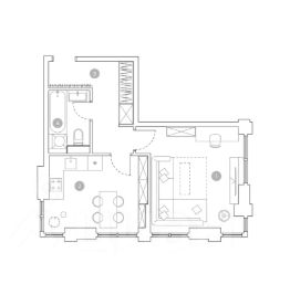
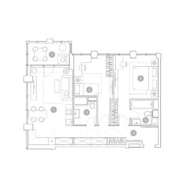
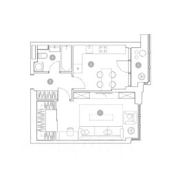
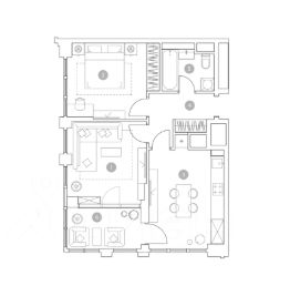
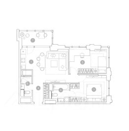
Продается 2-к квартира площадью 49.8 кв.м. на 12-м этаже Уникальная концепция проекта сочетает в себе все преимущества жизни стремительного мегаполиса и спокойного приватного отдыха в единении с природой. На закрытой благоустроенной территории предусмотрены: собственный подземный паркинг, разнообразная инфраструктура на первых этажах с дизайнерскими лобби, ресепшен-службой и комфортабельными зонами отдыха, хобби-комнатой, залом для проведения частных мероприятий, а также супермаркет, кафе и свой детский сад.
49 м2
12 / 19 этаж
Монолит
- Показать контакты
- Добавить в избранное
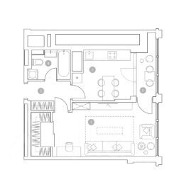
49 м2
12 / 19 этаж
Монолит
31 722 600
637 000 /м2
Новостройка,
дом сдан
дом сдан
