3-к, Полковая, 1 Показать на карте
Савеловская, 11 мин
Москва
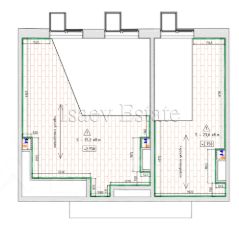
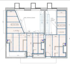
Арт. 118916945 Предлагается уютная и современная квартира формата Евро-3, расположенная в жилом комплексе PRIDE (Прайд). ''PRIDE (Прайд)'' — премиальный жилой квартал в историческом районе Марьина Роща, расположенный в 15 минутах от Цветного Бульвара. Некоторые особенности комплекса:Архитектура: яркая, с переменной высотность от 7 до 22 этажей, разработанная бюро APEX.Территория: делится на открытый просторный бульвар и два внутренних камерных двора, которые имеют тематические зоны для разных возрастов и активностей.Инфраструктура: первые этажи комплекса отведены под размещение инфраструктуры с сервисными службами, супермаркетами, ресторанами и кофейнями, барбершопом и spa-салоном.Безопасность: огороженный периметр, видеонаблюдение, пропускная и противопожарная системы, круглосуточная охрана, консьерж, охраняемая парковка и сигнализация.Образовательные объекты: на собственной территории квартала появится образовательный центр со школой на 257 учеников и детским садом на 112 мест.Основные характеристики:Площадь: 75,9 кв.мКомнаты: 3Этаж: 5Тип отделки: без отделкиКухня-ниша 13,2 кв.мСанузел: раздельныйБалкон/Лоджия: есть и балкон и лоджия.Особенности квартиры:Высокие потолкиСовременные окна с хорошей шумоизоляциейПродуманная планировка.Инфраструктура ЖК PRIDE (Прайд)Развитая транспортная доступностьДетские сады и школы в шаговой доступностиМагазины, аптеки, торговые центрыСпортивные и рекреационные зоныПарковочные местаУсловия продажиПереуступка прав по ДДУДокументы готовы к сделкеВозможна ипотекаОтличный выбор для тех, кто ценит комфорт, качество и развитую инфраструктуру.
75 м2
5 / 22 этаж
Монолит
- Показать контакты
- Добавить в избранное
75 м2
5 / 22 этаж
Монолит
43 250 000
569 829 /м2
Новостройка,
дом сдан
дом сдан
