1-к, Люблинский парк ЖК, 20 корп. 18 Показать на карте
Москва
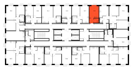
Продаётся квартира-студия площадью 19,8 кв.м на 25 этаже 25 этажного дома (Корпус 18-20, Секция 1) проекта ПИК Люблинский парк. Светлый просторный подъезд на уровне земли, функциональная планировка, большие окна, c отделкой. Жилой квартал ''Люблинский парк'' расположен на юго-востоке Москвы, в шаговой доступности от станции ''Братиславская''. На метро до центра ехать всего 30 минут. Также недалеко станция МЦД ''Перерва'', от которой можно уехать в Москву или в область. В проекте 54 жилых корпуса, три школы, семь детских садов, поликлиника. В районе есть все условия для комфортной жизни: торговые центры, школы, детские сады, поликлиники и спортивные центры. Рядом находятся усадьба Люблино, скверы и парки. Различные магазины, кафе и другие сервисы откроются на первых этажах, а на подземных будут паркинги с удобной навигацией. В зелёных дворах без автомобилей мы построим детские площадки и места для отдыха. А ещё ''Люблинский парк'' стал третьим проектом ПИК с большой игровой площадкой ПлейХаб, которая уже открылась между 1-м и 2-м блоками на безопасном расстоянии от дороги. Новое детское пространство ''Остров'' воплощает идею бесконечной игры. Ландшафт площадки — это ещё и игровой элемент, который помогает детям придумывать множество самых разнообразных игр. Здесь интересно детям разного возраста — от малышей до подростков. Жителям квартала Люблинский парк и их друзьям доступен проект ПИКСПОРТ — это бесплатные занятия с профессиональными тренерами. Тренировки по разным направлениям, например йога, фитнес, бег, воркаут, проходят как в группе на улице рядом с домом, так и онлайн. Артикул 604911 (Застройщик ООО СЗ ''Люблино Девелопмент'')
19 м2
25 / 25 этаж
Монолит
- Показать контакты
- Добавить в избранное
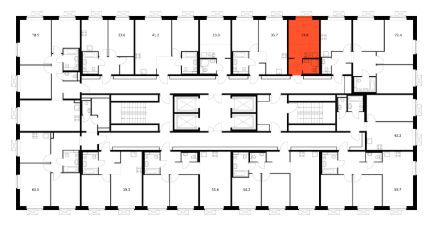
19 м2
25 / 25 этаж
Монолит
11 226 600
567 000 /м2
Новостройка,
IV-2027
IV-2027
