1-к, Шараповский проезд, 4 Показать на карте
Мытищи
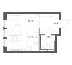
Продаётся студия 25.64 кв.м. без отделки в ЖК ''КИТ2'' на 19-м этаже 25 этажного дома.Жилой комплекс ''Кит 2'' спроектирован в урбанистической концепции ''Город в Городе''. Объект бизнес-класса предлагает рациональный подход к набору опций, необходимых для гармоничной жизни. Проект представляет собой два корпуса, которые образуют единую приватную территорию. Ее доминантой является двор с красивым ландшафтным дизайном и различными зонами, ориентированными на интересы жителей разного возраста.При создании пространства в приоритет ставился комфорт жителей. В шаговой доступности находятся: торговый центр, рестораны, кинотеатры, спортивный зал, образовательные учреждения и множество других объектов в сфере услуг. Преимущества проекта: - 3 корпуса для приватной жизни - Видовые характеристики (просматриваются Москва - Сити и Останкинская телебашня) - Широкая квартирография по всем типам квартир- Увеличенное остекление - 3 варианта отделки: БОРДО, СТОКГОЛЬМ, ОСЛО - Богатая развлекательная инфраструктура - Высокий уровень безопасности территории Расположение комплекса: - 2,2 км до Волковского шоссе - 2,8 км до Ярославского шоссе - 5,7 км до МКАД - 5 минут пешком до ж/д станции ''Мытищи'' и Автовокзала - 18 минут до станции метро ''Комсомольская'' - 30 минут до станции метро ''Медведково''
25 м2
19 / 25 этаж
Монолит
- Показать контакты
- Добавить в избранное
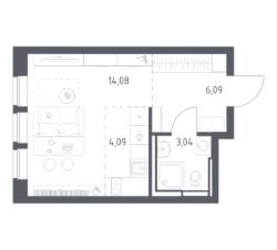
25 м2
19 / 25 этаж
Монолит
9 314 565
363 283 /м2
